Разработка программы испытаний компьютерной техникиРефераты >> Программирование и компьютеры >> Разработка программы испытаний компьютерной техники
Рисунок 3.2 – План размещения светильников в помещении сервисного центра
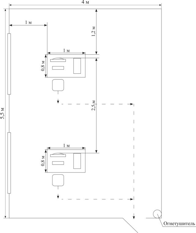
Каждое рабочее место в должно соответствовать требованиям ГОСТ 12.2.032-78. Рабочие места следует располагать относительно световых проемов так, чтобы естественный свет падал со стороны, преимущественно слева, при этом должны быть выдержаны следующие расстояния: от стен со световыми проемами до рабочего места – не менее 1 м, между боковыми поверхностями видеотерминалов – не менее 1,2 м, между тыльной поверхностью одного видеотерминала и экраном – не менее 2,5 м. План размещения рабочих мест представлен на рис. 3.3.
Правильный выбор параметров стола и, главное, сидения, позволяет снизить статические перегрузки мышц. Поэтому организация рабочего каждого места должна обеспечивать соответствие всех элементов рабочего места и их расположения эргономическим требованиям, а именно высота рабочей поверхности стола для ПК должна регулироваться в пределах 680-800 мм, ширина стола (должна обеспечивать возможность выполнения операций в зоне досягаемости моторного поля) – 600-1400 мм, глубина стола – 800-1000 мм. Рабочий стол должен иметь пространство для ног высотой не менее 600 мм и шириной не менее 500 мм. Если у оператора ноги не достают до пола, необходимо применить подставку для ног. Стул должен быть подъемно-поворотным, регулироваться по высоте, углу наклона как самого сидения, так и спинки, а также регулироваться по расстоянию спинки к переднему краю сидения и по высоте подлокотников. Его размеры должны быть: высота спинки 280-320 мм, ширина не менее 380 мм, глубина 260-400 мм.
Для уменьшения перегрузки зрительных анализаторов экран видеотерминала следует расположить на оптимальном расстоянии от глаз: при размере экрана по диагонали 15” – 600…700 мм, при 17“ – 700…800 мм, при 19” – 800…900 мм.
Кроме выполнения эргономических требований, для повышения производительности труда работающих и предотвращения преждевременного утомления очень важен оптимальный выбор режима труда и отдыха. Режим труда и отдых выбирается в соответствии с видом выполняемой работы по СанПиН 3.3.2-007-98. Рациональный режим труда и отдыха работающих на ПК должен включать в себя регламентированные перерывы в работе для психологической разгрузки, которые проводятся в специально оборудованных помещениях (согласно приложению 9 СанПиН 3.3.2-007-98).
Рисунок 3.3 – Схема размещения рабочих мест и эвакуации при пожаре
3.4 Пожарная профилактика
Согласно ДБН В.1.1.7-2002 «Защита от пожара. Пожарная безопасность объектов строительства», здание и помещение относится к первой степени огнестойкости, так как несущие и ограждающие конструкции выполнены из железобетона и искусственных каменных материалов. По пожароопасности здание относят к категории В, т.к. в помещении находятся сгораемые вещества и материалы. В помещении содержатся твердые горючие волоконные вещества, следовательно оно относится к классу П-IIа.
Горючей средой в помещении сервисного центра является пластмассовые детали ПК, бумага, дверные и оконные рамы, изоляция подводящих проводов и пр.
Причиной пожара в сервисном центре может быть: короткое замыкание электропроводки; неисправность ПК и другого электрооборудования; нагрев проводников; курение в неположенном месте.
Противопожарные мероприятия, проводимые в помещении, должны отвечать требованиям ГОСТ 12.1.004-91.
Организационные мероприятия по пожарной безопасности включают:
─ проведение инструктажа по технике пожарной безопасности не реже двух раз в год лицом, ответственным за пожарную безопасность;
─ разработку схемы эвакуации при пожаре;
─ назначение ответственного за пожарную безопасность лица;
─ соблюдение режима эксплуатации оборудования и электрических сетей;
─ осуществление периодического контроля изоляции, состояния электрооборудования и электропроводки.
Для тушения пожара в рабочем помещении используют первичные средства пожаротушения, к которым относятся водяные и воздушно-пенные пожарные стволы, песок, огнетушители. Однако при применении воды для тушения дорогостоящее электронное оборудование приходит в полную негодность. В данном случае наиболее приемлемый способ тушения пожара – применение порошковых огнетушителей. На помещение площадью 20 м2 необходимо не менее двух огнетушителей. Для данного помещения в 22
необходимы два огнетушителя ОУ-5. Подходы к средствам пожаротушения в сервисном центре должны оставаться свободными.
Пожарная сигнализация осуществляется автоматическими комбинированными извещателями, в которых используется сочетание дымового и теплового извещателя. Комбинированные извещатели реагируют как на возникновение дыма, так и на повышение температуры.
В помещении сервисного центра должны быть установлены два извещателя. Количество извещателей определяется площадью помещения из расчета два извещателя на 20 м2.
Для предотвращения пожара при коротком замыкании или чрезмерном нагреве подводящих проводов, на распределительном щите в помещении сервисного центра необходима установка плавких предохранителей или автоматических выключателей.
Помещение сервисного центра расположено на 1 этаже одноэтажного здания. В помещении имеется один выход шириной 0,91 м, который, согласно ДБН В.1.1.7-2002, используется как эвакуационный (расстояние от любого из рабочих мест до эвакуационного выхода меньше 25 м, работает два человека). Схема эвакуации должна размещаться на видном месте у выхода из помещения.
Схема эвакуации из помещения сервисного центра изображена на рис. 3.3.
3.5 Выводы
При гигиенической оценке труда отклонений от нормы не было обнаружено. Недостаточная освещенность рабочей зоны в 250 лк, наблюдаемая в помещении сервисного центра, ликвидирована путем установки четырех источников искусственного света (светильников).
После оценки технического и организационного уровня сделан следующий вывод: оборудование, используемое в сервисном центре, соответствует требованиям нормативно-технической документации, объему и характеру выполняемых работ. 4 ТЕХНИКО - ЭКОНОМИЧЕСКОЕ ОБОСНОВАНИЕ
4.1 Расчет сметной стоимости научно-исследовательской работы
Затраты на разработку программы для тестирования ПК имеют такие статьи калькуляции:
- заработная плата исполнителей НИР;
- страховые начисления на заработную плату;
- стоимость использованных материальных ресурсов;
- расходы на электроэнергию;
- стоимость использования основных устройств;
В разработке программы для тестирования ПК принимали участие 2 человека – ведущих инженера. Программа разрабатывалась 2,5 месяца. При этом инженеры посвящали разработке программы 60% своего рабочего времени.
В структуре себестоимости нематериальных продуктов значительная часть затрат приходится на заработную плату. Для её расчета необходимо определить трудоемкость выполнения НИР. Результаты сведены в табл. 3.1.
