Технология ремонта блока цилиндров автомобиля ВАЗ-2110Рефераты >> Технология >> Технология ремонта блока цилиндров автомобиля ВАЗ-2110
Вообще сущность любого метода хромирования заключается в переносе йонов металла на ремонтируемую поверхность детали, которая является катодом. Любые способы хромирования протекают в ваннах в растворах электролитов (холодных и горячих).
Хромирование саморегулирующемся электролите отличается от других видов тем, что при введении в электролит вместо серной кислоты трудно растворимых солей сернокислого стронция SrSO4 и кремнистого калия К2SiF6 в количестве, превышающем их растворимость, электролит становится устойчивым, так как автоматически поддерживается постоянная концентрация йонов SO4 и SiF6. При избытке в электролите указанных солей, превышающих их растворимость, часть солей будет находиться в растворе в виде диссоциированных йонов, а часть на дне ванны в виде твердой фазы. При изменении концентрации хромового ангидрида концентрация йонов SO4 и SiF6 будет автоматически поддерживаться постоянной за счет частичного растворения солей. Таким образом, необходимость в частых корректировках электролита отпадает. Применяется следующий состав электролита (г/л): хромовый ангидрид 200-300; сульфат стронция 5,5-6,5; кремнефторид калия 18-20. Плотность тока Dк=50-100 А/дм2; t=50-70° C; выход по току 17-18%.
В саморегулирующимся электролите можно получать все три вида хромовых осадков. Скорость отложения осадка при плотности 60 А/дм2 и t=55-65° C достигает 45-50 мкм/ч.
Вследствие агрессивности электролита свинцовая футировка ванны не пригодна из-за сильного растравливания. Хорошим материалом для ванн является нержавеющая сталь 1Х18Н9. В качестве материала для анодов применяют синцово-оловянистые сплавы, из которых лучшим является припой ПОС-10. По причине агрессивного действия электролита на металл необходима тщательная защита поверхности деталей, не подлежащих хромированию. Изоляционными материалами здесь могут быть винипласт, полихлорвинил, плестиглас, а также специальные составы.
В настоящее время разработаны и исследованы новые составы саморегулирующихся электролитов, значительно устраняющие недостатки сульфато-кремнефторидного электролита. Для примера привожу состав сульфато-кремнефторидного электролита с добавкой бихромата калия. (г/л): CrO3=250; SrSO4=6-8; K2SiF6=20; K2Cr2O7=110; режим хромирования Dк=30-100 А/дм2; t=40-70° C; выход по току 17-24%. При применении данного электролита получение блестящих осадков возможно при пониженных температурах и плотностях тока, коррозионная активность активногсть электролита значительно снижается. (5, c.234)
Необходимо проверит, не превышает ли износ цилиндров максимально допустимый 0,15 мм.
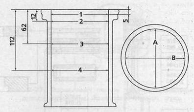
Рисунок 4. Измерение цилиндров нутромером:
1--нутромер; 2 - установка нутромера но ноль по калибру 67.8125.9502
Диаметр цилиндра измеряется нутромером (рис. 4) в четырех поясах, как в продольном, ток и в поперечном направлении двигателя (рис. 5). Для установки нутромера на ноль применяется калибр 67.8125.9502. 8 зоне пояса 1 цилиндры практически не изнашиваются. Поэтому по разности замеров в первом и остальных поясах можно судить о величине износа цилиндров. Если максимальная величина износа больше 0,15 мм, расточите цилиндры до ближайшего ремонтного размера, оставив припуск 0,03 мм на диаметр под хонингование. Затем отхонингуйте цилиндры, выдерживая такой диаметр, чтобы при установке выбранного ремонтного поршня расчетный зазор между ним и цилиндром был 0,025-0,045 мм.
Рисунок 5. Схема измерения цилиндров;
А и В — поправления измерений; 1, 2, 3, 4 — номера поясов
6. Разработка операционных технологий с обоснованием методов базирования, режимов обработки по переходам и применяемого контрольно-измерительного инструмента
Перед разработкой технологического процесса восстановления детали выбираю базы (см. карты эскизов). Проводим основные операции по подготовке детали к восстановления.
Разрабатываем схему технологического процесса. Последовательность операций устанавливваю с учетом особенностей своей детали.
7. Меры по безопасности труда и охране окружающей среды при выполнении ремонтных работ
Участок ремонта раз в неделю посещает инженер по охране труда. Все рабочие проходят следующие виды инструктажей по технике безопасности (далее ТБ):
· вводный инструктаж при приеме на работу;
· первичный инструктаж на рабочем месте с назначением наставника на 10 дней;
· повторный инструктаж с периодичность 3 месяца.
Рабочие места и оборудование для ремонта обеспечивает безопасную работу с ними. Но во избежание несчастных случаев надо знать и соблюдать следующие правила безопасности:
Запрещается нахождение посторонних лиц на участке;
Для осмотра места ремонта в темное время суток следует пользоваться переносным электрическим светильником с предохранительной сеткой, напряжением не выше 42 В или электрическим фонарем с автономным питанием;
Рабочее место рабочего на посту должно быть оборудовано вращающимся регулируемым по высоте стулом.
Контрольные приборы или места работы с ним должны иметь местное освещение, не слепящее рабочего;
Запрещается проводить работы с наличием топлива на детале;
Проводить влажную уборку помещений два раза вдень;
Работать только в специальной одежде и обуви;
К работе допускаются лица не моложе 18 лет, прошедшие специальную подготовку и имеющие соответствующее удостоверение;
Если при проведении ремонта создаются условия, не соответствующие требованиям ТБ, рабочий обязан прекратить работу о сообщить начальнику участка или инженеру по охране труда;
В темное время суток можно проводить работу только при хорошем искусственном освещении;
В смотровых ямах допускается применение переносных электрических ламп напряжением не выше 36 В;
Допускается работа только с исправным оборудованием;
При переносе крупных деталей или узлов необходимо надевать рукавицы, для предохранения рук от ранения;
Запрещается устранять неисправности, регулировать, смазывать при работающем оборудовании;
Попавший на кожу бензин обезвреживают, промыванием участка кожи керосином или теплой водой с мылом. При попадании в глаза, необходимо промыть их 2 % раствора пищевой соды или теплой водой и обратиться в больницу;
Запрещается переливать вредные жидкости без резиновых перчаток, засасывать ртом из шланга, а также курить и принимать пищу во время работы с ними;
После окончания работ запрещается оставлять детали на станках;
Для устранения пожаров, необходимо оборудовать участок:
· Одним ящиком с песком, лопатой и ведром;
· Двумя порошковыми огнетушителями;
· Двумя углекислотными огнетушителями;
· Куском брезента;
· Гидрантом с возможностью доступа пожарным командам.
При ремонте в почву и водоемы могут попасть нефтепродукты: топливо; масло.
