Техническое оснащение и охрана труда общественного питанияРефераты >> Технология >> Техническое оснащение и охрана труда общественного питания
Примером несоответствия конструкции аппарата требованиям технологического процесса является варка бульонов в котлах. Так, чрезвычайно важной технологической операцией при варке бульонов является периодический съем жира с поверхности бульона. Однако в пищеварочных котлах данная операция конструктивно не реализована. Это приводит к тому, что качество бульона резко ухудшается за счет большого содержания в нем эмульгированного жира, образуемого в процессе кипения.
К эксплуатационным требованиям относят соответствие режима работы, конструктивных особенностей машины или аппарата его рациональной эксплуатации. Эксплуатационные требования к аппаратам предусматривают в качестве непременного условия простоту их обслуживания с минимальной затратой труда; устойчивость к коррозии, которая может возникнуть при воздействии обрабатываемых продуктов, воздействии окружающей среды (кислорода воздуха) и моющих средств; доступность аппарата для осмотра, чистки, ремонта; высокая надежность и экологичность. Эксплуатационные требования предопределяют необходимость автоматизации контроля и регулирования параметров технологического процесса. Автоматизация обеспечивает более точное проведение технологического режима в аппарате (по сравнению с ручным), упрощает его обслуживание, ведет к уменьшению численности обслуживающего персонала, экономит энергию и способствует повышению качества кулинарной продукции.
Энергетические требования. Энергетические требования отражают возможность машины или аппарата затрачивать минимальное количество энергии на выполнение технологического процесса, т.е. аппараты должны быть энергосберегающими. Существенным резервом улучшения энергетических показателей тепловых аппаратов является снижение потерь теплоты. Одним из основных энергетических показателей работы аппаратов является удельный расход энергии на единицу готовой продукции.
Конструктивные требования. Сущность этих требований заключается в соответствии конструкции аппарата современным условиям машиностроения. Конструктивные требования, предъявляемые к аппаратам, связаны с их проектированием, изготовлением, транспортировкой и монтажом. Важными конструктивными требованиями являются:
* технологичность, т.е. соответствие конструкции технологическому процессу;
* унификация и нормализация деталей и узлов, максимальное использование стандартизированных деталей и изделий. Соблюдение этих требований позволяет организовать поточность производства и контроль качества;
* секционность, которая улучшает условия его эксплуатации, облегчает разборку, а при необходимости и замену, доступность при осмотре и ремонте;
* техническое совершенство, работоспособность и надежность. Техническое совершенство аппарата характеризуется периодом, в течение которого аппарат по своим основным показателям соответствует современному уровню развития техники.
Под надежностью машины или аппарата понимается их способность выполнять свои технологические функции, сохраняя эксплуатационные показатели в заданных пределах в течение требуемой наработки.
Наработка — продолжительность или объем работы машины или аппарата, измеряемые в единицах времени или весовых (объемных) единицах по перерабатываемому сырью.
Надежность машины или аппарата зависит от их безотказности, долговечности, ремонтопригодности и сохраняемости. Количественно она может быть оценена как произведение вероятности безотказной работы всех ее основных частей в течение заданного времени.
Безотказность характеризует способность машины или аппарата сохранять работоспособность в течение некоторой наработки без вынужденных перерывов.
Долговечность — это способность машины или аппарата сохранять работоспособность до предельного состояния с необходимыми перерывами для технического обслуживания и ремонта. Долговечность характеризуется ресурсом или сроком службы до одного из видов ремонта.
Ремонтопригодность характеризует приспособленность машины или аппарата к предупреждению, обнаружению и устранению отказов и неисправностей путем проведения плановых профилактических осмотров и ремонтов.
Сохраняемость отражает свойство машины или аппарата сохранять эксплуатационные показатели в процессе их транспортировки и хранения при соблюдении условий, рекомендуемых заводом-изготовителем.
Конструктивными достоинствами аппарата являются также простота его устройства, небольшая масса и габариты, изготовление из недорогих и доступных материалов, удобство эксплуатации.
Экономические требования. Данные требования отражают минимальные затраты на изготовление, монтаж и эксплуатацию машины или аппарата при сохранении их высоких технико-экономических показателей. К числу таких показателей относятся производительность, удельный расход энергии, коэффициент полезного действия, текущие расходы на обслуживание.
2. КОНСТРУКТОРСКИЙ раздел
2.1. Описание устройства и принципа действия линий самообслуживания
На предприятиях общественного питания при промышленных предприятиях, вузах, техникумах, школах и т.д. широко используются механизированные линии комплектаций и раздачи комплексных обедов ЛККО "Поток"; механизированная линия комплексных обедов МЛКО "Прогресс", механизированный прилавок самообслуживания МПСО; линия комплектации и накопления обедов ЛКНО "Эффект".
Линия ЛККО "Поток" предназначена для комплектации и отпуска одного вида комплексного обеда, в состав которого входят: первое блюдо, основное соусное или несоусное второе блюдо и гарнир; холодная закуска; сладкое блюдо или горячий напиток.
Первые блюда порционируются в фаянсовые тарелки диаметром 240 мм или в супницы из нержавеющей стали, вторые блюда — в тарелки диаметром 200 мм или в одно-порционные баранчики, холодные закуски — в салатники, сладкие блюда — в стаканы, хлеб — на пластмассовые лотки. Обед комплектуется на поднос, на который укладываются и столовые приборы.
Линия состоит из ленточного транспортера комплектации ТКШ и раздаточного передвижного оборудования, которое устанавливается группами и предназначается для выполнения определенных операций.
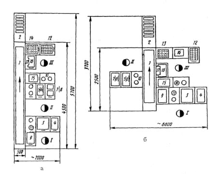
Линия выпускается в четырех вариантах: ЛККО-1 и ЛККО-2 (рис. 2.1) (300 обедов в час комплектуют три комплектовщицы), ЛККО-3 и ЛККО-4 (600 обедов в час комплектуют пять комплектовщиц).
Рис. 2.1. Линия комплектации комплексных обедов ЛККО "Поток":
а — с односторонним расположением раздаточного оборудования ЛККО-1, б — с двусторонним расположением раздаточного оборудования ЛККО-2
В линиях ЛККО-2 и ЛККО-4 передвижное раздаточное оборудование располагается по обе стороны от транспортера, в линиях ЛККО-1 и ЛККО-3 — с одной стороны.
При обслуживании линии ЛККО-1 выделяется три поста, на которых комплектовщицы выполняют определенные операции. Например, первая комплектовщица (пост I) берет суповые миски из тележки 11, порционирует первые блюда из мармитов 3 и 4, устанавливает миски на верхний поднос в тележке 9, а поднос с мисками — на ленту транспортера 1. Вторая комплектовщица (пост II) берет тарелки (или баранчики) из тележки 10, порционирует гарнир (простой) из мармита 7 или (сложный) из мармита 8, основное второе блюдо (соусное) — из мармита 5 или (несоусное) из мармита 6, устанавливает тарелки (баранчики) на поднос, перемещающийся по ленте конвейера.
