Сборка червячного редуктораРефераты >> Технология >> Сборка червячного редуктора
СОДЕРЖАНИЕ
1. Общая часть
Введение
2. Расчётная часть
2.1. Кинематический расчёт и выбор электрического двигателя.
2.2. Расчёт клиноременной передачи.
2.3. Расчёт зубчатой передачи редуктора.
2.4. Предварительный расчёт валов редуктора и выбор подшипников.
2.5. Конструктивные размеры корпуса редуктора.
2.6. Первый этап эскизной компоновки редуктора.
2.7. Проверка долговечности подшипников.
2.8. Второй этап эскизной компоновки редуктора.
2.9. Выбор посадок основных деталей редуктора.
2.10. Проверка прочности шпоночных соединений.
2.11. Уточненный расчёт валов.
2.12. Тепловой расчёт редуктора.
2.13. Выбор сорта масла.
2.14. Сборка редуктора.
Литература.
1. Общая часть
Введение
В основе работы большинства машин и механизмов лежит преобразование параметров и кинематических характеристик движения выходных элементов по отношению к входным. Наиболее распространенным механизмом для решения данной задачи является редуктор, который представляет систему зубчатых передач выполненных в герметично закрытом корпусе.
Заданием данного курсового проекта является спроектировать червячный редуктор общего назначения, предназначенный для длительной эксплуатации и мелкосерийного производства.
2. Расчётная часть.
2.1. Кинематический расчёт и выбор эл. двигателя
При выполнении кинематического расчёта и выборе эл. двигателя необходимо учитывать потери энергии, которые происходят временной передачи, в зацеплении зубчатых колёс с учётом потерь в подшипниках.
По таблице 1.1 [1] принимаем их КПД соответственно:
ременной передачи: ηрем 0,94 .0,96
зубчатой передачи (червячной): ηзуб = 0,85 (предварит.)
подшипников: ηпод 0,99
Общий КПД привода:
ηобщ = ηрем * ηзуб * η2подш = (0,94 .0,96) * 0,8 * 0,992 = 0,73 .0,85
Требуемая мощность эл. двигателя:
Рэл.тр. = Рвых / ηоб
Рэл.тр. = 4,2 / (0,73 .0,8) = 5,75 .5,25 кВт
Требуемая частота вращения вала эл. двигателя:
nэл.треб. = ивых * ирем * изубч
где ирем — передаточное число ременной передачи;
изуб — передаточное число зубчатой передачи.
По табл. 1.2 [1] принимаем:
ирем = 2 .4
изуб = 16 .50
nэтр = 45(2 .4)(16 .50) = 1440 .9000 об/мин.
По табл. 19.27 [1] выбираем эл. двигатель трёхфазный короткозамкн. закрытый обдуваемый единой серии 4А с асинхронной частотой вращения n1 = nэ = 1445 с мощностью эл. двигателя 5,5 кВт.
Тип двигателя 112М4 / 1445:
Рэ = Р1 = 5,5 кВт.
Общее передаточное число привода:
иобщ = nэ/ввых = n1/n3 = 1445 / 45 = 32,1
иобщ = ирем * изуб
принимаем ирем = 2.
Тогда
изуб = иобщ / прем = 32,1 / 2 = 16,05
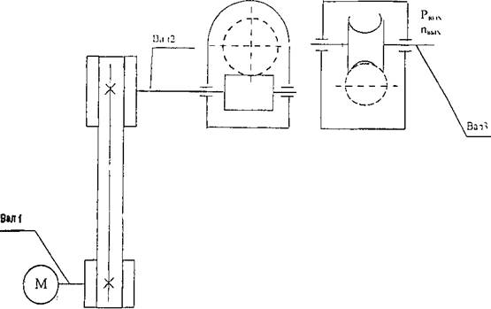
Частота вращения валов (см. рис. 1):
вала 1 — n1 = nэ = 1445
вала 2 — n2 = n1 / ирем = 1445 / 2 = 722,5 об/мин
вала 3 — n3 = nвых n3 = n2 / изуб = 722,5 / 16,05 = 45,0 об/мин
Угловые скорости валов:
вала 1 — v1 = π * n1 / 30 = 3,14 * 1445 / 30 = 151,2 рад/сек
вала 2 — v2 = π * n2 / 30 = 3,14 * 722,5 / 30 = 75,62 рад/сек
вала 3 — v3 = π * п3 / 30 = 3,14 * 45 / 30 = 4,9 рад/сек
Вращающие моменты на валах:
на валу 1 — T1 = 9550 * Р1 / n1 = 9550 * 5,5 / 1445 = 36,34 Нм
на валу 2 — T2 = T1 * ирем * ηрем = 42,95 * 2 * 0,96 = 69,79 Нм
на валу 3 — Т3 = 9550 * Р3 / n3 = 9550 * 4,2 / 45 = 891 Нм
вал 1 — вал эл. двигателя; 2 — вал шестерни; 3 — вал колеса.
|
№ вала |
Частота вращения об/мин |
Угловая скор v рад/сек |
Вращ. момент |
|
1 |
1435 |
151,2 |
36,34 |
|
2 |
722,5 |
75,62 |
69,79 |
|
3 |
45,0 |
4,9 |
897 |
Кинем. схема
2.2. Расчёт шинорем. передачи
Исходные данные для расчёта:
– передаваемая мощность — 5,5 кВт;
– частота вращения ведущего шкива — 1445 об/мин;
– передаточное число ирем = 2.
По номогра мме рисунок 5.2 ( ) в зависимости от частоты вращения n1 = 1445 об/мин и перед. мощности Рэл.дв. = 5,5 кВт принимаем сечение клинового ремня А.
Вращающий момент:
Ттр = Рэл.тр. / ω1
ω1 = πn / 30 = 3,14 * 1445 / 30 = 151,2с – 1
Ттp = 5,5 * 103 / 151,2 = 36376 Н мм
Диаметр меньшего шкива
d1 = (3 .4) 3√Tтр
d1 = (3 .4) 3√36376 = 99,4 .132,5
Согласно таб. 5.4 min f шкива 90 мм.
Принимаем d = 100 мм.
Диаметр большого шкива
d2 = upeм * d1 * (l – ε)
где ε = 0,015 — скольжение ремня
и = 2 — перед. число рем. перед.
d2 = 2 * 100(1 – 0,015) = 197
Принимаем d2 = 200 мм
Уточняем перед. число d2 / d1(1 – ε) = 200 / 100(1 – 0,015) = 2,03.
Окончательно принимаем диам. шкивов:
d1 = 100 мм; d2 = 200 мм.
Межосевое расстояние следует принять в интервале:
amin = 0,55 (d1 + d2) + Tо
аmax = d1 + d2
где То — высота сечения ремня
аmin = 0,55(100 + 200) + 8 = 173
аmax = 100 + 200 = 300 мм
Предварительно принимаем арем = 240 мм.
Расчетная длина ремня определяется по формуле:
Lp = 2apeм + 0,5π(d1 + d2) + (d2 – d1)2 / 4 * арем
Lp = 2 * 240 + 0,5 * 3,14(100 + 200) + (200 – 100)2 / 4 * 240 = 961,7 мм
Ближайшее стан. значение длины ремня по ГОСТ 12841-80 L = 1000 мм.
Условное обозначение ремня сечения А с расчетной длиной L = 1000 мм с хордной тканью в тянущем слое.
Ремень А — 1000Т ГОСТ 12841-80.
Уточненное значение межосевого расстояния aрем с учетом стандарт, длины ремня L считаем по формуле:
арем = 0,25[(L – ω) + √(L – ω)2 – 2y
где ω = 0,5π(d2 – d1) = 0,5 * 3,14(200 – 100) = 157,1
y = (d1 + d2)2 = (100 + 200)2 = 90000 мм2
арем = 0,25[(1000 – 157,1) + √(1000 – 157,1)2 – 2 * 90000 = 392,8 мм
Принимаем арем = 392 мм.
При монтаже передачи необх. обеспечить возможность уменьшения межосевого расст. на 0,01L = 0,01 * 1000 = 10 мм для обеспечения надевания ремней на шкивы и возможность увеличения его на 0,025L = 0,025 * 1000 = 25 мм для натяжения ремней.
Угол обхвата меньшего шкива опред. по формуле
L = 180° – 57° ((d2 – d1) / aрем)) = 180 – 57((200 – 100) / 392) = 165° 30'
Коэф. режима работы, учитыв. условия эксплуатации Ср = 1,0.
Коэф. учит, влияние длины ремня с1 = 0,98.
Коэф. учит. Влияние угла обхвата с1 = 0,98.
