Производство хлеба пшеничногоРефераты >> Технология >> Производство хлеба пшеничного
4.Архитектурно-строительные проектные решения
1. Расчет размерных параметров здания, выбор строительных конструкций.
Проектом предусматривается планировка и отделка помещений, решение фасадов, устройство перекрытия и кровли здания в соответствии с требованиями СНиП. За относительную отметку 0.000 принят уровень чистого пола пекарни. Здание II степени огнестойкости. Наружные и внутренние стены из естественного камня, внутренние перегородки из кирпича глиняного обыкновенного ГОСТ 530-80 с каменной штукатуркой наружных стен. Толщина стен 400. Кровля- листы металлопрофиля волнистые. По периметру более высокой части здания в уровне низа панелей перекрытия предусматривается устройство монолитного железобетонного пояса. Чердачное перекрытие выполняется из сборных железобетонных панелей. Панели опираются на стены и стальные балки перекрытия. Балки опираются на железобетонные опорные подушки. Несущие конструкции крыши выполнены в виде системы наклонных металлических стропил. Материал деревянных конструкции – сосна I категории. Деревянные конструкции следует антисептировать в соответствии с требованиями СНиП.
2. Разработка компоновочного решения помещения.
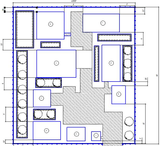
Доставка сырья проходит из склада в мукопросеиватель расположенный в около входа в склад. Далее идут против часовой стрелки машины работающие по принятой технологии приготовления теста. Водяной и солемерный бачок, дежа тестомесильной машины. Тестомес расположен таким образом что откатываемая дежа с готовым тестом подается к дежеопракидователю. Далее расположены тестоделитель и тестоокруглитель таким образом что готовые куски укладываются в формы и переходят в расстоячный цех где происходит расстойка и выпечка хлеба.
1 – просеиватель, 2 – водомерный бачок, 3 – солемерный бачок, 4 – тестомес, 5– дежеопрокидователь, 6 – тестоделитель, 7 – тестоокруглитель.
Рисунок 1 Схема цеха пекарни.
5.Разработка генерального плана
Генеральным планом называют проект расположения и взаимной увязки всех зданий, сооружении, инженерных сетей, железнодорожных путей и автомобильных дорог, необходимых для работы предприятия.
Проектирование генерального плана, которое начинают еще на стадии планирования площадки, является наиболее важной частью всего проектирования. При проектировании определяют взаиморасположение и связь сооружений, увязывают генеральный план со схемами генеральных планов примышленных узлов.
Расположение зданий и сооружений на генеральном плане должно обеспечивать наиболее экономичный и целесообразный производственный процесс на минимальной площади территории.
Технологические требования к генеральному плану заключаются в обеспечении поточности производственного процесса и в полной ликвидации встречных и пересекающихся направлений грузовых потоков, а транспортные требования — в правильном расположении сооружений. При этом должна быть предусмотрена подача зерна, топлива с сетей общего пользования непосредственно к пунктам переработки.
Требования пожарной безопасности при разработке генерального плана заключаются в установлении необходимых разрывов между зданиями и в обеспечении удобного и быстрого передвижения пожарных автомобилей ко всем объектам предприятия без пересечения с железнодорожными путями, а также в устройстве сети водопровода с пожарными гидрантами и резервуарами для воды.
Автомобильные дороги и подъезды рассчитывают на пропуск заданного количества автомобилей в часы наибольшего поступления сырья.
Дороги проектируют без пересечения потоков автомобильного транспорта, принимая ширину на два параллельных ряда автомобилей (5,5—6 м), с устройством погрузочных дворов и площадок для разворота автомобилей.
1 – КПП; 2 – Гараж;3 – Контора;4 – Пекарня;5 – Весовая;6 – Склад; 7 – Ремонтный цех; 8– Подсобное здание;9 – Пожарный гидрант.
Рисунок 2 Схема генерального плана пекарни.
6.Машина для просеивания муки МПМ-800
В кондитерских цехах предприятий общественного питания для приготовления кондитерских и хлебобулочных изделий применяют просеиватели муки и другое оборудование.
Просеивательные машины предназначены для удаления из муки посторонних примесей, а также для рыхления и обогащения кислородом воздуха. Готовые изделия из такого теста получаются более пышные и вкусные. Широкое применение на предприятиях получили просеиватели МПМ-800 и МС24-300 к универсальному приводу ПГ-0,6 и малогабаритный просеиватель МПМВ-300.
Просеивательные машины МПМ-800 предназначены для удаления из муки посторонних примесей, а также для рыхления и обогащения кислородом воздуха. Готовые изделия из такого теста получаются более пышные и вкусные.
Состав машины. Машина для просеивания муки МПМ-800. Она состоит из чугунной платформы, на которой установлен привод, загрузочный бункер, труба со шнеком и просеивающая головка.
Привод состоит из электродвигателя взрывобезопасного исполнения и двух клиноременных передач, которые приводят в движение шнек с ситом и крыльчатку в бункере.
Загрузочный бункер имеет предохранительную решетку, предохраняющую от попадания посторонних предметов в муку, крыльчатку, которая подает муку к вертикальной трубе и подъемный механизм для подачи мешков с мукой.
Внутри вертикальной трубы имеется шнек, который подает муку к просеивающей головке машины. Просеивающий механизм состоит из цилиндрического корпуса с разгрузочным лотком, сита с неподвижными лопастями и разгрузочного окна. Сверху установлена крышка с резиновой прокладкой и откидным закрепляющим болтом. У разгрузочного лотка
просеивающей головки имеется магнитная ловушка для удаления из муки магнитных примесей и легкоснимаемый рукав из плотной ткани, предупреждающий распыление муки при выходе ее из машины и поступления в тару.
Для включения машины установлены магнитный пускатель автоматический выключатель и кнопки управления.
Машина комплектуется двумя ситами с ячейками размером 1,4 и 1,6 мм для муки высшего сорта и муки 1-го и 2-го сорта.
Рисунок 1 – Машина для просеивания муки МПМ-800
1-труба, 2-рукав, 3-корпус, 4-магнитная ловушка, 5-откидной болт, 6-гайка,7-крышка, 8-опоры скребков, 9-шнек, 10-сито, 11-подъемник, 12-бункер, 13-решетки, 14-крыльчатка, 15-крестовина, 16-платформа, 17-стакан, 18-клиновой ремень, 19,20,21-шкивы
Принцип действия машины. Мука из загрузочного бункера подается крыльчаткой на шнек вертикальной трубы, по которому поступает внутрь просеивающей головки. Здесь под действием центробежной силы, мука разрыхляясь, проходит через сито в пространство между корпусом и ситом, опускаясь на дно и при помощи лопаток поступает в разгрузочный лоток. Непросеянная мука остается на дне сита и удаляется после остановки машины.
