Двухэтажный жилой дом в городе КалугаРефераты >> Строительство >> Двухэтажный жилой дом в городе Калуга
Содержание
Задание
Введение
1. Климатический паспорт района строительства
2. Объёмно-планировочное решение здания
3. Конструктивное решение здания
3.1 Основания и фундаменты
3.2 Стены и перегородки
3.3 Перекрытия
3.4 Лестницы
3.5 Крыша и кровля
3.6 Окна и двери
4. Наружная и внутренняя отделка
5. Инженерное оборудование
5.1 Элементы вентиляционной системы
5.2 Элементы отопительной системы
5.3 Санитарно-технические узлы
5.4 Электрооборудование
6. Теплотехнический расчёт стены
7. Технико-экономическая оценка здания
Список использованной литературы
ЗАДАНИЕ
План здания – схема №23
Фундаменты – ленточные сборные сплошные;
Перекрытия – по металлическим балкам;
Лестницы – сборные ступени по металлическим косоурам;
Стены – из силикатного кирпича (250х120х65);
Кровля – глиняная черепица;
Район строительства – г. Калуга.
ВВЕДЕНИЕ
Данная курсовая работа призвана научить самостоятельно разрабатывать объёмно – планировочные и конструктивные решения малоэтажных гражданских зданий, привить навыки архитектурно – строительного проектирования, закрепить знания, полученные при изучении соответствующей теоретической части курса.
Малоэтажные гражданские здания предназначены для строительства на окраине городов и в поселках городского типа.
1. Климатический паспорт района строительства
Климатический паспорт района строительства составлен на основании таблиц №1, 2, 3 [1] и стр. 46, 51, 136 [2].
Климатические параметры холодного периода года
Место строительства – г. Калуга;
Температура воздуха наиболее холодных суток, обеспеченностью 0,98 – "минус" 34°С;
Температура воздуха наиболее холодных суток, обеспеченностью 0,92 – "минус" 31°С;
Температура воздуха наиболее холодной пятидневки, обеспеченностью 0,98 – "минус" 30°С;
Температура воздуха наиболее холодной пятидневки, обеспеченностью 0,92 – "минус" 27°С;
Температура воздуха, обеспеченностью 0,94 – "минус" 15°С;
Абсолютная минимальная температура воздуха – "минус" 46°С;
Средняя суточная амплитуда температуры воздуха наиболее холодного месяца – 7,3°С;
Продолжительность, сут., и средняя температура воздуха, периода со средней суточной температурой воздуха £ 0°С :
- продолжительность – 142 сут.;
- средняя температура – "минус" 6,2°С;
Продолжительность, сут., и средняя температура воздуха, периода со средней суточной температурой воздуха £ 8°С :
- продолжительность – 210 сут.;
- средняя температура – "минус" 2,7°С;
Продолжительность, сут., и средняя температура воздуха, периода со средней суточной температурой воздуха £ 10°С :
-продолжительность – 228 сут.;
-средняя температура – "минус" 1,9°С;
Средняя месячная относительная влажность воздуха наиболее холодного
месяца – 83%;
Средняя месячная относительная влажность воздуха в 15 ч. наиболее
холодного месяца – 83%;
Количество осадков за ноябрь-март – 213 мм;
Преобладающее направление ветра за декабрь-февраль – Ю;
Средняя скорость ветра за период со средней суточной температурой воздуха £ 8 °С – 3,9 м/с.
Климатические параметры тёплого периода года
Республика, край, область, пункт –г. Калуга;
Барометрическое давление – 990 гПа;
Температура воздуха, обеспеченностью 0,95 – 21 °С;
Температура воздуха, обеспеченностью 0,98 – 25,2 °С;
Средняя максимальная температура воздуха наиболее теплого месяца – 23,4 °С;
Абсолютная максимальная температура воздуха – 38 °С;
Средняя суточная амплитуда температуры воздуха наиболее теплого месяца – 10,7 °С;
Средняя месячная относительная влажность воздуха наиболее теплого месяца – 76 %;
Средняя месячная относительная влажность воздуха в 15 ч наиболее теплого месяца – 59 %;
Количество осадков за апрель-октябрь – 441 мм;
Суточный максимум осадков – 89 мм;
Преобладающее направление ветра за июнь-август – СЗ;
Минимальная из средних скоростей ветра по румбам за июль – 0 м/с.
Средняя месячная и годовая температура воздуха, °С
Республика, край, область, пункт – г. Калуга;
Январь (I) – "минус" 10,1;
Февраль (II) – "минус" 8,9;
Март (III) – "минус" 3,9;
Апрель (IV) – 4,8;
Май (V) – 12,3;
Июнь (VI) – 16,2;
Июль (VII) – 18,0;
Август (VIII) – 16,5;
Сентябрь (IX) – 11,0;
Октябрь (X) – 4,7;
Ноябрь (XI) – "минус" 1,5;
Декабрь (XII) – "минус" 6,5;
Год – 4,4.
Зона влажности – Нормальная;
Климатический район II;
Климатический подрайон – IIв;
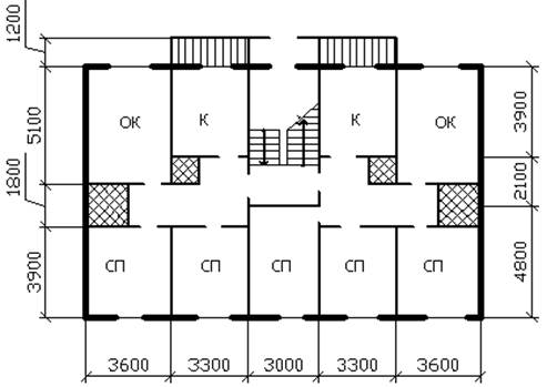
2. ОБЪЕМНО-Планировочные РЕШЕНИЯ ЗДАНИЯ
Проектируемое здание жилое – бескаркасное с поперечными несущими стенами.
Здание двухэтажное с высотой этажа 3 м.
Общая высота здания 10,5 м.
Здание в плане сложной конфигурации с размерами в осях 16,8х10,8 м.
Жилой дом односекционный.
Класс здания – II.
Степень огнестойкости – II.
За нулевую отметку принята отметка уровня чистого пола первого этажа.
Здание имеет чердачное техническое помещение. Система планировки квартирная. На каждом этаже располагается по 2 квартиры. Главный вход в здание располагается с фронтальной стороны и через тамбурное помещение соединяется с лестничной клеткой. Пространственная жёсткость здания обеспечивается наружными и внутренними стенами и диском перекрытия.
3. КОНСТРУКТИВНОЕ РЕШЕНИЕ ЗДАНИЯ
При разработке курсовой работы приняты конструктивные решения, соответствующие действующим инструкциям, ГОСТам, СНиПам, обеспечивающие безопасную эксплуатацию здания при предусмотренных мероприятиях по технике безопасности и пожаробезопасности.
3.1 Основания и фундаменты
Грунт в естественном состоянии не обладает достаточной несущей способностью, поэтому предлагается выполнить укрепление грунта, исходя из его физико-механических характеристик. Для этого необходимо увлажнить грунт и произвести поверхностное уплотнение.
Фундаменты в запроектированном здании ленточные сборные сплошные. В основание фундамента устанавливаются фундаментные плиты, на которые укладывают фундаментные блоки.
3.2 Стены и перегородки
Внешние и внутренние стены выполняются из глиняного кирпича, укладываемого на растворе М75 с перевязкой швов. Наружные стены имеют толщину 560 мм (смотри раздел 6), внутренние -400 мм.
Перегородки выполняются из кирпича и имеют толщину 160 мм.
По структуре стены однородные, выполняются двухрядной системой кладки с треугольной расшивкой швов с внутренней стороны стен для дальнейшего оштукатуривания.
Под оконными проёмами выполняются ниши глубиной 90 мм для установки радиаторов. Над оконными и дверными проёмами выполняются перемычки.
При кладке стен и перегородок в откосах дверных и оконных проёмов закладываются деревянные антисептированные пробки для крепления коробок.
