Керамическая плиткаРефераты >> Строительство >> Керамическая плитка
4. Технические требования к продукции
В соответствии с ГОСТ 6141–91 керамическая плитка для внутренней облицовки стен должна соответствовать следующим показателям.
4.1 Характеристики
Глазурованная плитка для внутренней облицовки стен должна соответствовать требованиям указанным в таблице.
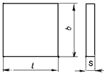
Таблица 1
|
Тип |
Форма |
Длина |
Ширина |
Толщина | |
|
l |
b |
s | |||
|
2 |
Квадратные плитки: без завала
|
150 |
150 |
5 |
6 |
По согласованию изготовителя с потребителем допускается изготовление плиток и фасонных деталей других размеров и формы.
Отклонения от номинальных размеров плиток должны быть%, не более:
по длине и ширине . ±0,8
по толщине:
для плиток длиной до 150 мм включ. ±10
св. 150 мм . ±8
Разница между наибольшим и наименьшим размерами плиток одной партии по длине и ширине не должна превышать 1,5 мм.
Разброс показателей по толщине плиток одной партии не должен превышать 1,0 мм.
Различие в толщине одной плитки (разнотолщинность) не допускается более 0,5 мм.
Цвет, оттенок цвета, рисунок и рельеф лицевой поверхности плиток и фасонных деталей должны соответствовать образцам-эталонам, утвержденным в установленном порядке.
Утвержденный эталон цвета может быть распространен на плитки и фасонные детали всех типов.
Допускается утверждение образцов в виде планшетов или каталогов.
Для плиток с неповторяющимся рисунком (мраморовидные и др.) утверждается только эталон цвета. Рисунок не эталонируется.
Цвет, оттенок цвета, рисунок и рельеф лицевой поверхности плиток, выпускаемых по отдельным заказам, должны соответствовать эталонам, согласованным с потребителем.
Отклонения от формы плиток не должны превышать значений, указанных в табл. 8.
Таблица 8
|
Наименование показателя |
Норма для плиток | |
|
I сорта |
II сорта | |
|
1. Кривизна лицевой поверхности, мм, не более |
0,8 |
1,1 |
|
2. Косоугольность, мм, не более: | ||
|
для плиток длиной до 150 мм включ. |
0,5 | |
|
для плиток длиной св. 150 мм |
1,0 | |
Показатели внешнего вида плиток должны соответствовать требованиям таблице 9.
Таблица 9
|
Вид дефекта |
Норма для плиток | |
|
I сорта |
II сорта | |
|
1. Отбитость со стороны лицевой поверхности |
Не допускается |
Допускается длиной не более2 мм в количестве не более2 шт. |
|
2. Щербины, зазубрины на ребрах со стороны лицевой поверхности |
Не допускаются |
Допускаются шириной не более1 мм общей длиной не более10 мм |
|
3. Плешина |
Не допускается |
Допускается общей площадью не более 10 мм2 |
|
4. Пятно |
То же |
Допускается невидимое с расстояния 2 м |
|
5. Мушки |
Допускаются невидимые расстояния: | |
|
1 м |
2 м | |
|
6. Засорка |
Не допускается |
Допускается невидимая с расстояния 2 м |
|
7. Наколы |
Допускаются невидимые с расстояния: | |
|
1 м |
2 м | |
|
8. Пузыри, прыщи и вскипание глазури |
Не допускаются |
Допускаются вдоль ребра плитки шириной не более 2 мм |
|
9. Волнистость и углубления глазури |
Не допускаются |
Допускаются невидимые с расстояния 2 м |
|
10. Слипыш |
Не допускается |
Допускается общей площадью не более 5 мм2 |
|
11. Просвет вдоль краев цветных плиток |
Не допускается |
Допускается вдоль края плитки шириной не более 2 мм |
|
12. Следы от зачистных приспособлений вдоль ребра лицевой поверхности |
Не допускаются |
Допускаются невидимые с расстояния 2 м |
|
13. Нарушения декора (разрыв краски декора, смещение декора, нарушение интенсивности окраски) |
Допускаются невидимые с расстояния: | |
|
1 м |
2 м | |
