Конструирование здания птичникаРефераты >> Строительство >> Конструирование здания птичника
– расчетное сопротивление древесины смятию под углом;
Rсм = 1,5 кН/см2 – расчетное сопротивление древесины смятию вдоль волокон;
Rсм.90 = 0,18 кН/см2 – расчетное сопротивление древесины смятию поперек волокон;
Rрα= 0,9 кН/см2 – расчетное сопротивление древесины растяжению под углом;
Проверка прочности внутренней сжатой зоны
Проверка прочности биссектрисного сечения не проходит, следовательно увеличиваем сечение:
Ширина сечения b = 210 мм; Размеры поперечного сечения рамы
h = 1600 мм, hоп = 480 мм, hк = 640 мм.
hd = h/соs39о=160/0,777=205,9 см- высота биссектрисного сечения;
Fd = b×hd =21∙205,9=4323,9 см2- площадь биссектрисного сечения;
Wd =(b×hd2)/6 = 21∙4323,92/6= 148381,84 см3-расчетный момент сопротивления;
– радиус инерции сечения;
- гибкость элемента цельного сечения;
- коэффициент продольного изгиба (при гибкости элемента l £ 70), коэффициент а = 0,8 для древесины;
– расчетное сопротивление древесины смятию под углом;
Проверка прочности внутренней сжатой зоны
кН/м2
Проверка прочности наружной растянутой зоны
кН/м2
Проверка прочности биссектрисного сечения выполняется
2.8 Проверка сечения рамы на устойчивость плоской формы деформирования
Проверку сечения рамы на устойчивость плоской формы деформирования производим по формуле
.
- для элементов, имеющих закрепление из плоскости деформирования.
Сжатая грань арки имеет раскрепление панелями через 100см.
Определяем гибкость
.
.
.
Проверка
2.9 Проверка сечения арки на скалывание по клеевому шву
.
Проверка
Прочность сечения обеспечена.
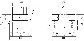
2.10 Расчет опорного узла
Стойка в опорном узле опирается непосредственно на бетонный фундамент.
Для обеспечения возможности поворота опорного сечения торец стойки кантуется на 40 мм с каждой стороны. Стойка фиксируется металлическими уголками.
Места контакта древесины с бетоном изолируются двумя слоями рубероида, склеенными битумной мастикой.
Рис. 8 Опорный узел рамы
1) Проверка на смятие вдоль волокон выполняется по формуле:
гдеN – усилие в стойке рамы, N = 130 кН;
Fсм – площадь смятия:
Fсм = b a = 21•36 = 756 см2;
Rсм= 1,5 кН/см2 – расчетное сопротивление древесины смятию вдоль волокон по табл. 3 [2]
Прочность на смятие вдоль волокон торца стойки выполняется.
2) Проверка на скалывание торца стойки от действия распора выполняется по формуле:
гдеH = 83 кН – распор в раме от действия вертикальной нагрузки;
– статический момент инерции сечения брутто;
– момент инерции сечения брутто;
Rск = 0,07 кН/см2– расчетное сопротивление древесины скалыванию по табл. 3 [2]
Прочность опорного узла на скалывание силой распора обеспечена.
Высота металлического башмака находится исходя из условия смятия поперек волокон древесины стойки рамы от действия распора
;
Принимаем h=160мм;
Уголки, фиксирующие стойку поперечной рамы, принимаются из условия расположения болтов. Согласно табл. 39 [3]: минимальные расстояния от центра болта до края уголка должны быть не менее 1,5d = 1,5•16 = 24 мм. Для обеспечения удобства монтажа принимаем уголок L160x12. Крепление траверсы (уголков) башмака к фундаменту предусматриваем 2-мя болтами d = 24 мм.
Напряжение анкерного болта на срез:
t =
= 9,2 кН/см2 < Rсрб = 19 кН/см2;
Металлический башмак фиксируется в стойке рамы конструктивным болтом диаметром 16 мм.
2.11 Расчет конькового узла
Коньковый узел выполняют торцевым упором ветвей ригеля с перекрытием стыка двумя деревянными накладками на болтах.
Коньковый узел рассчитывается на поперечную силу при несимметричной односторонней снеговой нагрузки:
где S – расчетная нагрузка от веса снегового покрова на 1 пог. м ригеля рамы, определяется по формуле: S = 3,2∙1∙4,5 = 14,4 кН/м
ℓ – пролет ригеля, ℓ = 15 м;
;
Принимаем диаметр болтов, скрепляющих ригели рамы через накладки, 20 мм.
Накладка рассчитывается как балка на двух опорах.
Согласно п.5.18 [1] расстояния между осями болтов вдоль волокон древесины S1, поперек волокон S2 и от кромки элемента S3:
S1 = 7d = 7∙2 = 14 см;
S2 = 3,5d = 3,5∙2 = 7 см;
S3 = 3d = 3∙2 = 6 см;
;
;
Следовательно, более нагруженные болты расположены ближе к месту стыка.
Количество болтов в одном ряду определяется по формуле:
;
где nc – количество плоскостей среза, nc = 2;
[T]б,min – минимальная несущая способность одного болта, принимается согласно п.5.13 [1]:
1) Несущая способность на смятие древесины среднего элемента под углом α:
Tc = 0,5 c d kα
здесьc – толщина среднего элемента, c = 21 см;
