Конструкция общественного зданияРефераты >> Строительство >> Конструкция общественного здания
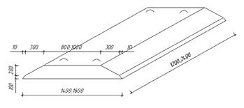
Блоки – подушки изготавливают толщиной 300 и 400 мм, шириной от 800 – 2800 мм, а блоки – стенки шириной 300, 400, 500, 600 мм, высотой 300, 600 мм, длиной от 800 до 2400 мм Плиты-подушки под наружные стены имеют ширину 1400 мм, а под внутренние - 800 мм. При проектировании размеры фундаментных плит-подушек приняты согласно ГОСТ 13580-85. Плиты-подушки укладываются с разрывами. В местах сопряжения продольных и поперечных стен плиты подушки укладываются впритык и места сопряжения между ними заделываются бетонной смесью. Поверх уложенных плит-подушек устраивается горизонтальная гидроизоляция и по ней сверху цементно-песчаная стяжка толщиной 30 мм, в которую укладывают арматурную сетку, что ведет к более равномерному распределению нагрузки от вышележащих блоков и конструкций. Диаметр стержней сетки - 6 мм. Шаг - 30 см. По завершении устройства цементной стяжки котлован засыпается до верха смонтированных железобетонных фундаментных подушек.
Затем укладываются бетонные фундаментные блоки с перевязкой швов в три ряда, поверх которых устраивается горизонтальный гидроизоляционный слой из двух слоев рубероида на мастике. Назначение гидроизоляционного слоя - исключение миграции капиллярной грунтовой и атмосферной влаги вверх по стене. Ширина фундаментных блоков под наружные стены равна 600 мм, под внутренни-400мм.
При проектировании размеры фундаментных стеновых блоков приняты согласно ГОСТ 13579-78.
Глубина заложения фундамента составляет 1,8 м, что превышает глубину промерзания грунтов.
Цоколь здания не выступает и не западает, образуя со стеной здания единую плоскость.
В практике строительства применяют железобетонные блоки толщиной 380 мм при толщине стен 380, 510, 640 мм. При такой конструкции прочность материала фундамента используется полнее и в результате получается экономия бетона. Этой же цели соответствует устройство прерывистых фундаментов. Прерывистые фундаменты монтируют из плит – подушек, укладываемых с разрывом 0,2 – 0,9 м друг от друга, промежутки между ними заполняются песком. Это сокращает расход материалов, уменьшает затраты труда, полнее используется несущая способность основания.
Фундаментные блоки: 1-шпонка заполняется бетоном класса В20, 2-ниша строповочной петли
Фундаментные плиты:
Защита подземной части здания от грунтовой сырости и грунтовых вод.
По всему периметру здания выполняется отмостка шириной 900 мм с уклоном i=0,030. Она предназначена для защиты фундамента от дождевых и талых вод, проникающих в грунт близ стен здания.
В бесподвальных зданиях в цоколе стен устраивают горизонтальную гидроизоляцию. Её выполняют из цементного раствора (состава 1:2) толщиной 20 – 30 мм или в виде двухслойного рулонного ковра из рубероида, наклеенного на выровненное основание битумной мастикой. Горизонтальную гидроизоляцию укладывают сплошной полосой в наружных и внутренних стенах, чтобы не допускать капиллярного подъёма влаги и вышележащие участки конструкции.
Стены и отдельные опоры.
Стены являются важнейшими конструктивными элементами зданий.
Стены должны удовлетворять следующим требованиям: быть прочными и устойчивыми; соответствовать степени огнестойкости здания, иметь группу возгорания и предел огнестойкости не ниже нормативных; обеспечивать поддержание необходимого температурно – влажностного режима в помещениях; обладать достаточными звукоизолирующими свойствами; быть экономичными, т.е. иметь минимальные расход материала, массу единицы площади, наименьшие трудозатраты и расход средств; отвечать архитектурно – художественному решению.
Стены классифицируют по следующим признакам: по местоположению: наружные и внутренние; по характеру работы: несущие, воспринимающие нагрузку от опирающихся на них конструкций покрытия или перекрытия; самонесущие, воспринимающие нагрузки от вышерасположенных стен; навесные, выполняющие только ограждающие функции; по конструкции и сбору возведения стены крупных камней (блоков), монолитные, крупнопанельные; по роду применяемых материалов: каменные, деревянные, из синтетических материалов.
Кладка из кирпича.
Кладкой называют конструкцию, выполненную из отдельных камней (естественных или искусственных), швы между которыми заполняются строительным раствором (известково-цементным, цементно-глиняным или цементным). Прочность кладки зависит от прочности камня и раствора, от системы перевязки вертикальных швов между камнями, а также от воздействия влаги, температур, ветра, коррозии.
Для правильной работы конструкции, размещения в ней камней должны отвечать трём правилам разрезки: камни в стене должны располагаться горизонтальными рядами, т.е. перпендикулярно основным действующим усилиям; камни в ряду должны отделяться вертикальными швами – продольными и поперечными; вертикальные швы в смежных рядах не должны совпадать, такое несовпадение называется перевязкой швов. Перевязка обеспечивает совместную работу камней в стене и равномерное распределение нагрузки.
Кирпичные стены выполняют из керамического и силикатного кирпича. Стандартный кирпич имеет размеры 120*65*250 мм. Применяют также полуторный кирпич, имеющий высоту 88 мм.
Боковую поверхность кирпича, имеющую размер 120*65 мм или 120*88 мм, называют тычком. Ряд кирпичей, уложенный этими поверхностями, называют тычковым. Поверхность кирпича, имеющую размеры 65*250 мм, называют ложком. Ряд кирпичей, уложенный этими поверхностями, называют ложковым. Поверхность кирпича, имеющую размеры 250*120 мм, называют постелью.
Толщина кладки определяется теплотехническим расчётом. Кладки стен бывают сплошные и облегчённые. Сплошная кладка стен полностью состоит из однородного материала. Стены из сплошной кладки тяжелы, трудоёмки и обладают низкими теплотехническими качествами.
Недостатком сплошной кладки из глиняного или силикатного полнотелого кирпича является её значительная теплопроводность. Однако по условиям прочности толщина стены может быть значительно меньше. Поэтому сплошная кладка наружных стен из полнотелого кирпича экономически целесообразна только при условии полного использования его прочности, т.е. в нижних этажах многоэтажных зданий. В малоэтажных зданиях, а также на верхних этажах многоэтажных зданий следует применять для кладки наружных стен пустотелый или лёгкий (пористый) кирпич или использовать облегчённую кладку. Исключение составляют стены влажных помещений (бань, прачечных), которые, как правило, выкладываются из полнотелого глиняного кирпича с защитным пароизоляционным слоем внутри. При сплошной кладке стремятся использовать более эффективные виды камней: пористые и пустотелые кирпичи, пустотелые бетонные блоки. Применение эффективных видов кирпича и мелких блоков позволяет уменьшить толщину стен.
Толщина кладки всегда кратна чётному или нечётному числу половинок кирпича. Кирпичные стены могут иметь толщину 120, 250, 380, 510, 640, 770 мм и более, что соответствует ½, 1, 1 ½, 2, 2 ½, кирпича и более. Горизонтальные швы выполняют толщиной 10 – 12 мм при высоте кирпича 65 мм; каждые 4 ряда составляют 300 мм, а при высоте 88 мм ряд кладки составляет 100 мм.
