Проектирование двухэтажного спального корпуса дома отдыха Меркурий здания в Омской областиРефераты >> Строительство >> Проектирование двухэтажного спального корпуса дома отдыха Меркурий здания в Омской области
1.Общая часть
1.1 Исходные данные для проектирования
Проект “спального корпуса” санатория “Меркурии” разработан для строительства в Омской области.
На основании задания на проектирование чертежи проекта и пояснительная записка выполнены в соответствии с действующими строительными нормами и правилами и государственными стандартами.
1.2 Климатические характеристики района строительства
Омская область относится к строительно-климатическому району I В.
Расчетная температура воздуха наиболее холодных суток -41ºС. Расчетная температура наиболее холодной пятидневки -37ºС.
Расчетная температура внутреннего воздуха +20ºС.
Относительная влажность внутреннего воздуха 55%.
Влажностный режим помещения - нормальный.
Преобладающее направление ветра ЮЗ.
Продолжительность отопительного периода 221 суток.
Средняя температура отопительного периода -8,4ºС.
Глубина сезонного промерзания грунта 2,20 м.
Нормативная снеговая нагрузка 70 кг/м².
Средняя скорость ветра 5 м/с.
Зона влажности района строительства – сухая.
1.3 Геологические данные площадки строительства
1 слой - почвенно-растительный, мощность 0,2-0,5 м
2 слой - суглинок твердый, мощностью 2,5-3,5 м
Коэффициент пористости - е=0,55
Удельный вес грунта - γ=18 кН/м³
Показатель текучести - IL=0,30
Модуль деформации - Е=17 МПа
Угол внутреннего трения грунта - φn=24º
Удельное сцепление грунта - Сn=0,015 МПа
3 слой – супесь твердая, мощностью 3,0-5,0 м
Коэффициент пористости - е=0,45
Удельный вес грунта - γ=19,3 кН/м³
Показатель текучести - IL=0,24
Модуль деформации - Е=16 МПа
Угол внутреннего трения грунта- φn=30º
Удельное сцепление грунта - Сn=0,021 МПа
Грунтовые воды скрыты на глубине 3,0м от поверхности земли. По отношению к бетону грунтовые воды агрессией не обладают. Тип режима грунтовых вод - террасовый, характер питания инфильтрационный, в связи, с чем уровень подземных вод подвержен сезонным колебаниям
1.4 Характеристики здания
Степень долговечности – III
Степень огнестойкости – II
Класс здания – III
Класс функциональной пожарной опасности – Ф 1.2
2. Генеральный план участка
Двухэтажный спальный корпус дома отдыха запроектирован на территории санатория “Меркурий”. Главный фасад здания обращен на березовую рощу. Проектируемый участок свободен от застройки.
Рельеф территории застройки ровный, спокойный; площадка для строительства спланирована с уклоном 5% для естественного стока атмосферных осадков.
Проектируемый спальный корпус расположен в сложившейся капитальной жилой застройке. Здание размещено с учетом розы ветров, инсоляции и противопожарных требований. Этажность проектируемого здания, конфигурация в плане, архитектурный образ не нарушают общего архитектурно-планировочного решения.
На участке запроектировано: площадка для автомобилей на 10 машин со стороны главного фасада. Покрытие проезда и площадок предусмотрено из щебня и песка по уплотненному грунту с верхним слоем из мелкозернистого асфальтобетона.
Площадка спального корпуса здания озеленена газонами, клумбами, деревьями, кустарника в виде живой изгороди.
Для защиты окружающей среды в проекте предусмотрены:
1. Защита почвы организованным отводом поверхностных вод.
2. Уменьшение пылеобразования применением твердых покрытий на проездах, площадках и устройствах газонов.
3. Объемно-планировочные решения
Размер здания в координационных осях 1-4 составляет 22,6м., а ширина в осях А-В составляет 11,1м.
Высота этажа составляет 2,8м. максимальная высота здания 10,3м.
Лестничные клетки располагается в осях 1-2,3-4 и А-Б, размеры лестничных клеток 2,4×2м.
Планировочная система – коридорно-рекреационная.
На первом этаже находятся следующие помещения:
Комната 1 (1-2,Б-В), комната 2 (2-3,Б-В) комната 3 (2-3,Б-В), комната 4 (2-3,Б-В), комната 5 (2-3,Б-В), комната 6 (2-3,Б-В), санузел (2-3,А-Б), комната 8 (2-3,А-Б), комната 9 (2-3А-Б), комната 10 (2-3 А-Б), санузел(2-3,А-Б), столовая (2-3 А-Б).
На втором этаже находятся следующие помещения:
Кино зал (1-3,Б-В), комната 15 (2-3,Б-В), комната 16 (2-3,Б-В), комната17 (2-3,Б-В), комната 18 (2-3,Б-В), комната 19 (2-,А-Б), комната 20 (2-3,А-Б), комната 20 (2-3,А-Б), подсобная(2-3,А-Б), Спорт зал (2-3,А-Б), санузел (2-4,Б-В). Каждое помещение в здание основное по функциональному назначению имеет оконный проем, площадь которого соответствует требованиям СНиП, оконный проем служит для освещения в здании естественным светом.
3.1 Технико-экономические показатели по зданию
Таблица №1. Т.Э.П. по зданию
|
№ |
Наименование |
Ед.изм. |
Количество |
|
1 |
Площадь застройки |
м² |
250,86 |
|
2 |
Строительный объём. |
м³ |
1730,93 |
|
3 |
Общая площадь здания |
м² |
501,72 |
|
4 |
Полезная площадь здания |
м² |
284,53 |
|
5 |
Нормируемая площадь здания |
м² |
237,15 |
|
6 |
Плоскостной коэффициент К1 |
_ |
0,64 |
|
7 |
Объёмный коэффициент К2 |
_ |
3,45 |
1. Fз=22,60∙11,10=250,86 (м²)
2. Vстр=250,86∙6,9=1730,93 (м³)
3. Fобщ =2∙(22,60∙11,10)=501,72 (м²)
4. Fпол=(12,42*3)+14,26+(10,53*5)+(12,42*3)+(14,26*2)+(10,53*6)+14,26+(16,56*2)+38,42=318,93 (м²)
5. Fнорм=318,93-16,56-16,56 -14,26=271,55 (м²)
6. K1=318,93/501,72=0,64
7. K2=1730,93/501,72=3,45
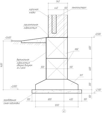
Сечение фундамента
4. Конструктивное решение
4.1 Конструктивная схема и конструктивные элементы здания
Конструктивная система проектируемого здания с продольными несущими стенами. Плиты перекрытия, опираясь на них, образуют жесткий пространственный каркас. Дополнительную пространственную жесткость зданию предают стены лестничной клетки.
ФУНДАМЕНТЫ ленточные сборные из железобетонных плит по ГОСТ 13580-68 и бетонных блоков по ГОСТ 13579-78
СТЕНЫ НАРУЖНЫЕ из обыкновенного глиняного кирпича ГОСТ 530-95 с эффектным утеплителем на гибких связях; Утеплитель – пенополистирол λ = 40 кг/м³
