Проектирование и расчет фундаментов мелкого и глубокого заложения одноэтажного производственного зданияРефераты >> Строительство >> Проектирование и расчет фундаментов мелкого и глубокого заложения одноэтажного производственного здания
Условие выполняется т.е. размеры фундамента подобраны верно.
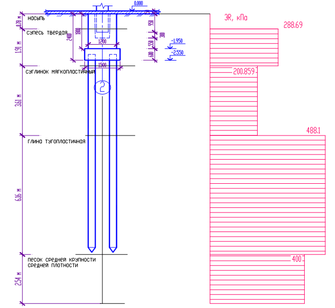
6. Расчет фундамента глубокого заложения.
Расчет фундамента под первое сечение.
Проектируем свайный фундамент с забивными железобетонными сваями и монолитным ростверком. Глубину заложения верха ростверка принимаем из конструктивных соображений 1.8 м. Высоту ростверка принимаем равной 0.6 м. Величина заделки сваи в ростверк принимаем 0.3 м. В качестве естественного основания принимаем глину тугопластичную.
Предварительно принимаем сваю С10 – 30 длиной 10 м квадратного сечения 0.3х0.3 м. Определим несущую способность одной сваи
кН
кНм
кН
кНм
кН
кН/м3
м
![]()
длина сваи
длина сваи без учета защемления в ростверке
несущая способность одной сваи
м
м
м
м
м
м
м
м
м
м
м
м
кПа
кПа
кПа
кПа
кПа
кПа
![]()
![]()
![]()
м2
м
кПа
м
кН
hi – мощность итого слоя.
zi – глубина заложения итого слоя с поверхности до середины слоя.
По т. 9.1 [2] R кПа.
По т. 9.2 [2] fi кПа
По т. 9.3 [2] gc = 1, gсR = 1, gcf = 1,
u – периметр одной сваи.
А – площадь поперечного сечения.
Определяем допустимую расчетную нагрузку на одну сваю
PCB=766.105 кН gg=1 - коэф. надежности по грунту.
Определяем необходимое число свай
n=3.508 шт.
принимаем
шт.
Определим нагрузку приходящуюся на каждую сваю во внецентренно нагруженном фундаменте.
![]()
кН - вес подколонника;
![]()
кН – вес ростверка;
![]()
- коэф. надежности по нагрузке;
![]()
м3
![]()
м3
![]()
м3
![]()
м3
![]()
кН/м3
![]()
кН
кН
кНм
![]()
кНм
м
м –расстояния от центра сваи до осей соответственно.
кН
кН
1.2×PCB=919.326 кН > Pmax
Неравенства выполняются, следовательно проверка условий работы крайних свай показала, что свайный фундамент запроектирован рационально.
Свайный фундамент с висячими сваями условно принимают за массивный жесткий фундамент глубокого заложения, контур которого ограничен размерами ростверка, свай и некоторым объемом грунта.
