Пятиэтажный 35-ти квартирный жилой домРефераты >> Строительство >> Пятиэтажный 35-ти квартирный жилой дом
• способы производства основных строительных и монтажных работ;
• потребность строительства или реконструкции объектов в материально-технических и трудовых ресурсах;
• строительные генеральные планы отдельных зданий и сооружений
применительно к основным этапам их возведения. Исходными материалами для составления проекта производства работ служат:
• задание на разработку, выдаваемое строительной организацией как заказчиком ППР;
• проект организации строительства;
• необходимая для разработки ППР рабочая документация (рабочие
чертежи и сметы);
. • условия поставки материально-технических ресурсов, обеспечение рабочими кадрами по основным профессиям;
• результаты материально-технического обследования действующих предприятий, зданий и сооружений при их реконструкции, а также требования к выполнению строительных, монтажных и специальных строительных работ в условиях действующего производства.
Порядок разработки ППР близок к порядку, присущему разработке ПОС, с тем отличием, что разработка ПОС осуществляется от общего к частному, а разработка ППР - от частного к общему.
Может быть рекомендован следующий порядок разработки проекта производства работ.
1. На основании рабочих чертежей, сведений о конкретных условиях строительства или реконструкции объекта определяются или уточняются объемы и способы производства работ.
2. На основании рабочих чертежей и сведений о мощности и механо-вооруженности бригад общий фронт работ (здание, сооружение) делится на частные (захватки, участки работ).
3. На основе производственных норм, сведений об объемах работ на каждом частном фронте и о бригадах, планируемых к производству работ, устанавливается последовательность, трудоемкость, продолжительность работ на каждом частном фронте (захватке, участке работ).
Разрабатываются технологические карты и (или) карты трудовых процессов на сложные работы и работы, выполняемые новыми способами, а на остальные работы - схемы организации работ с описанием последовательности и способов их производства с пересчетом потребности затрат труда, машин и механизмов.
4. В соответствии с принятой в ПОС структурой потоков производится сравнение и выбор наиболее целесообразного в конкретных условиях варианта организации работ.
При этом разработка организации работ осуществляется применительно к поточным методам: с непрерывным использованием ресурсов, с непрерывным освоением фронтов работ.
5. Составляются календарные планы производства работ по объекту или (при наложении связей) сетевые графики строительства или реконструкции объектов.
6. Уточняется потребность строительства во временных сооружениях и инженерных сетях и разрабатывается строительный генеральный план объекта применительно к разным этапам его возведения (нулевой цикл, возведение надземной части и др.).
7. Уточняются потребности, определяются сроки и составляются календарные графики обеспечения строительства необходимыми материально-техническими ресурсами (по номенклатуре, видам, маркам, типоразмерам).
При монтаже с транспортных средств составляются почасовые графики доставки к местам работ необходимых строительных конструкций, деталей, изделий и материалов.
8. Составляется пояснительная записка, содержащая необходимые обоснования принятых решений.
2. Календарный план работ
2.1 Подсчет объемов работ
|
№ п/п |
Наименование работ |
Формулы, эскизы |
Ед. изм. |
Кол-во | ||||||||||
|
Подготовительный период. | ||||||||||||||
|
1 |
Внутриплощадочные подготовительные работы. |
Берётся 5% от затрат на общестроительные работы: 0,05*4485,25=210,94-дн |
ч-дн |
210,94 | ||||||||||
|
Основной период. | ||||||||||||||
|
2 |
А. Подземная часть. I. Земляные работы. Срезка растительного слоя грунта бульдозером Д3-18. |
Объём грунта: V= S – площадь срезаемо грунта; h – высота срезаемого грунта; h=0.2 м (толщина срезаемого слоя) S= V= |
1000м3 |
0,61 | ||||||||||
|
3 |
Предварительная грубая планировка площадки бульдозером марки ДЗ-18. |
S= |
1000м2 |
3,05 | ||||||||||
|
4 |
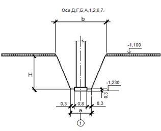
Разработка траншеи экскаватором марки на дизельном ходу с ёмкостью ковша 1,25 м2. |
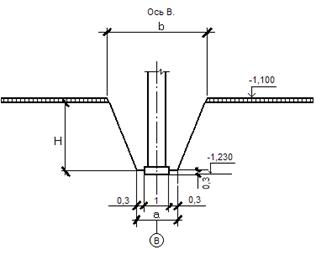
Траншеи по осям Д,Г,Б,А,1,2,6,7.
F= H= где 0,3-недобор грунта a= b= где m=0,25 при Н<1,5 м L=
| ||||||||||||
|
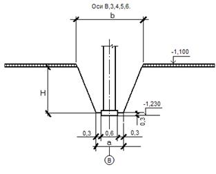
Траншея по оси В.
F= H= где 0,3-недобор грунта a= b= где m=0,25 при Н<1,5 м L=
Траншеи по осям В,3,4,5,6.
F= H= где 0,3-недобор грунта a= b= где m=0,25 при Н<1,5 м L=
| ||||||||||||||
|
а) на транспорт б) в отвал |
Т.к. объём разрабатываемого грунта меньше чем засыпки, то необходимо весь грунт укладывать в отвал.
|
100м3 100м 3 |
0 1,27 | |||||||||||
|
5 |
Ручная доработка грунта |
Объем доработки равен площади подошвы фундаментов умноженной на толщину доработки (0,3 м)
где h - Высота подошвы фундамента.
|
м3 |
36,9 | ||||||||||
|
6 |
Обратная засыпка грунта а) механизировано |
где
=
|
100м3 |
3,08 | ||||||||||
|
б) вручную |
|
м3 |
34,25 | |||||||||||
|
Основания и фундаменты. | ||||||||||||||
|
7 |
Укладка плит ленточных фундаментов массой: до 1.5т. |
Рассчитываем по спецификации.
|
100 шт. |
0,68 | ||||||||||
|
8 |
Укладка стеновых блоков массой: до 0,5 т. |
|
100 шт. |
0,3 | ||||||||||
|
до 1 т. |
|
100 шт. |
0,45 | |||||||||||
|
до 1,5т. |
|
100 шт. |
1,29 | |||||||||||
|
9 |
Устройство монолитных участков в плитах и блоках |
V= |
100 м3 |
0,12 | ||||||||||
|
10 |
Устройство гидроизоляции фундаментов: горизонтальной из 2-ух слоёв рубероида. |
S= |
100 м2 |
0,65 | ||||||||||
|
Надземная часть. | ||||||||||||||
|
Стены. | ||||||||||||||
|
11 |
Кладка наружных стен и технического этажа. |
где:
x
|
м3 |
683,97 | ||||||||||
|
12 |
Кладка парапета. |
|
м3 |
36,67 | ||||||||||
|
13 |
Кладка внутренних стен толщиной: а) 250мм |
|
м3 |
73,67 | ||||||||||
|
б) 380мм |
|
м3 |
353,73 | |||||||||||
|
Перекрытия и лестницы. | ||||||||||||||
|
14 |
Монтаж плит перекрытия и покрытия: площадью до 10м2 |
|
шт |
189 | ||||||||||
|
15 |
Устройство монолитных участков в перекрытиях. |
S= |
100м2 |
0,88 | ||||||||||
|
16 |
Монтаж лестничных площадок m более 1т. |
|
100шт |
0,2 | ||||||||||
|
17 |
Монтаж плит балконов площадью до 5 м2 |
|
100шт |
0,24 | ||||||||||
|
18 |
Установка экранов ограждений площадью до 10 м2 |
|
100шт |
0,24 | ||||||||||
|
19 |
Установка плит парапета m до 0,5 т |
37 |
100шт |
0,37 | ||||||||||
|
20 |
Монтаж лестничных маршей m более 1 т. |
|
100шт |
0,18 | ||||||||||
|
Перегородки. | ||||||||||||||
|
21 |
Установка кирпичных перегородок толщиной 120 мм (неармированных) |
S= |
100м2 |
8,35 | ||||||||||
|
Заполнение проёмов. | ||||||||||||||
|
22 |
Установка оконных блоков с деревянными коробками площадью до 2 м2 |
S= |
100м2 |
1,06 | ||||||||||
|
более 2 м2 |
S= |
100м2 |
0,66 | |||||||||||
|
23 |
Установка подоконных досок. |
l= |
100 м погон. |
1,28 | ||||||||||
|
24 |
Герметизация мест примыкания оконных и дверных блоков и блоков в кирпичных стенах полиуретановой пеной. |
P= |
100м |
5,92 | ||||||||||
|
Заполнение дверных проёмов. | ||||||||||||||
|
25 |
Установка дверных блоков в наружных и внутренних стенах с площадью проёма до 3 м2 |
S= |
100м2 |
0,99 | ||||||||||
|
26 |
Установка дверных блоков для перегородок |
S= |
100м2 |
2,79 | ||||||||||
|
Устройство кровли. | ||||||||||||||
|
27 |
Устройство пароизоляции из полиэтиленовой плёнки. |
S= |
100м2 |
3,66 | ||||||||||
|
28 |
Устройство теплоизоляции из плит |
S= |
100м2 |
3,66 | ||||||||||
|
29 |
Устройство цементно-песчаной стяжки толщиной 20мм. |
S= |
100м2 |
3,66 | ||||||||||
|
30 |
Устройство рулонной кровли. |
R=1.014 S= |
100м2 |
3,72 | ||||||||||
|
31 |
Отделка кровельной сталью |
|
100м2 |
0,19 | ||||||||||
|
Устройство полов. | ||||||||||||||
|
32 |
Уплотнение грунта щебнем. |
S= |
100м2 |
2,9 | ||||||||||
|
33 |
Устройство бетонной подготовки t=80 см. |
V= |
100м3 |
0,23 | ||||||||||
|
34 |
Устройство гидроизоляции полов. |
S= |
100м2 |
14,3 | ||||||||||
|
35 |
Устройство цементно-песчаной стяжки t=0,02 м |
S= |
100м3 |
14,3 | ||||||||||
|
36 |
Устройство полов из паркета. |
S= |
100м2 |
9,64 | ||||||||||
|
37 |
Устройство полов из керамической плитки. |
S=356,1 м2 |
100м2 |
3,56 | ||||||||||
|
Внутренняя отделка. | ||||||||||||||
|
38 |
Отделка потолков под окраску |
|
100м2 |
14,04 | ||||||||||
|
39 |
Улучшенная штукатурка поверхности внутренних стен и перегородок. |
S= = |
100м2 |
52,12 | ||||||||||
|
40 |
Улучшена штукатурка оконных и дверных откосов. |
S= = |
100м2 |
1,37 | ||||||||||
|
41 |
Облицовка стен |
См. технологическую карту. |
100м2 |
9,25 | ||||||||||
|
42 |
Масляная окраска стен |
S= |
100м2 |
7,44 | ||||||||||
|
43 |
Известковая окраска |
S= |
100м2 |
1,71 | ||||||||||
|
44 |
Масляная окраска дверных панелей |
S= = |
100м2 |
9,69 | ||||||||||
|
45 |
Масляная окраска металлических ограждений |
S= |
100м2 |
0,22 | ||||||||||
|
46 |
Клеевая окраска потолков |
S= |
100м2 |
8,32 | ||||||||||
|
47 |
Известковая окраска потолков |
S= |
100м2 |
2,73 | ||||||||||
|
48 |
Оклейка стен обоями |
S= |
100м2 |
27,25 | ||||||||||
|
49 |
Оклейка потолков обоями |
S= |
100м2 |
8,32 | ||||||||||
|
Наружная отделка. | ||||||||||||||
|
50 |
Устройство термошубы. |
S=1461-170,7=1290,3м2 |
100м2 |
12,9 | ||||||||||
|
51 |
Штукатурка цоколя |
L= |
100м2 |
1 | ||||||||||
|
Разные работы. | ||||||||||||||
|
52 |
Устройство основания под отмостку. |
S= V= |
м3 |
13,83 | ||||||||||
|
53 |
Покрытие отмостки асфальтобетонной смесью |
S= |
100м2 |
0,92 | ||||||||||
|
56 |
Благоустройство территории. |
0,067*4485,25=302,8ч-дн |
ч-дн |
302,8 | ||||||||||
|
57 |
Прочие неучтённые затраты |
0,058*4485,25=259,54ч-дн |
ч-дн |
259,54 | ||||||||||
|
Специальные работы. | ||||||||||||||
|
58 |
Сантехнические работы. |
| ||||||||||||
|
а) черновые |
|
ч-дн |
157 | |||||||||||
|
б) чистовые |
|
ч-дн |
68 | |||||||||||
|
59 |
Электромонтажные работы. |
| ||||||||||||
|
а) черновые |
|
ч-дн |
54 | |||||||||||
|
б) чистовые |
|
ч-дн |
23 | |||||||||||
|
60 |
Слаботочные работы |
|
ч-дн |
31 | ||||||||||
