Проект домаРефераты >> Архитектура >> Проект дома
Паспорт проекта 10-квартирного жилого дома в г. Гомеле.
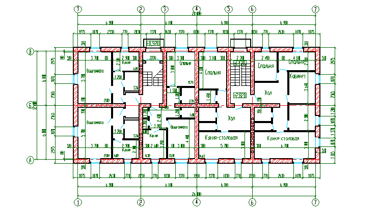
План 1-го этажа. План 2-го этажа.
1.Исходные данные для проектирования
1.1. Климатические данные пункта строительства
Гомель расположен во 2-м климатическом поясе. Этот район характеризуется умеренными температурами зимой и летом. Основные климатологические данные по городу Гомелю (СниП 2.01.01-82 «Строительная климатология) приведены в таблице 1.1.1.
Таблица 1.1.1.
| Климатологический район строительства | Расчетные температуры наружного воздуха, °С | Влажностно-климатологическая характеристика района строительства | |||
| Абсолютно минимальная температура | Средне – максимальное значение холодной пятидневки | Средне – минимальное значение нльное значение нх суток | Средняя температура за июль | ||
| ||В | -32 | -24 | -28 | 17,8 | Зона нормальная |
1.2 Санитарно-гигиенические требования
В соответствии со СНиП 2.08.01-89 «Жилые здания» здание должно быть оборудовано водопроводом, канализацией, горячим водоснабжением, центральным отоплением, вентиляцией, электроосвещением, газоснабжение и слаботочными устройствами (радио, телефон, телевидение).
Основные санитарно-гигиенические требования к помещениям квартир приведены в таблице 1.2.1.
Таблица 1.2.1.
|
Расчетная температура внутреннего воздуха в жилых помещениях, оC |
Относительная влажность внутреннего воздуха, % |
Минимальная высота помещений, м |
|
18 табл. 10 /2/ |
30-60 табл. 1 /3/ |
2,5 п. 1.1 /2/ |
В соответствии со СНиП [2] продолжительность инсоляции должна быть обеспечена в 1-2-3-комнатных квартирах не менее чем в одной комнате. В общежитиях должно инсолироваться не менее 60% жилых комнат.
Естественное освещение должны иметь жилые комнаты, кухни, входные тамбуры, лестничные клетки, общие коридоры в жилых зданиях. При этом отношение площади световых проёмов всех жилых комнат и кухонь к площади пола этих помещений не должно превышать 1: 5,5. Минимальное отношение не менее 1:8.
Помещение должно иметь проветривание через фрамуги или форточки.
Лестничные клетки должны быть освещены через окна в наружных стёклах каждого этажа, проветривание лестничной клетки должно быть обеспечено через открывающиеся остеклённые проёмы площадью открывания на каждом этаже не менее 1,2 м2.
При входе в секции должны быть предусмотрены тамбуры с двумя рядами дверей.
1.3. Характеристика класса здания
Заданием предусмотрено запроектировать здание 2 класса. По СНиП [2] жилые здания 2 класса должны быть запроектированы по долговечности и стойкости основных конструкций не ниже 2 степени. Требуемые грунты возгораемости и минимальные пределы огнестойкости основных строительных конструкций (в часах) приведены в табл. 1.3.1. (СНиП [4]).
Таблица 1.3.1.
|
Степень огнестойкости здания |
Основные строительные конструкции | |||
|
Несущие стены и стены лестничных клеток |
Лестничные площадки и марши в лестничных клетках |
Внутренние несущие стены и перегородки |
Конструкции междуэтажных и чердачных перекрытий | |
| || |
Несгораемые 2 |
Несгораемые 1 |
Несгораемые 1 |
Несгораемые 0,75 |
Заданием на проектирование предусмотрены стены кирпичные эффективной кладки, перекрытия и лестницы - железобетонные, перегородки – гипсобетонные. Фактические группы возгораемости и степень огнестойкости основных конструкций приведены в таблице 1.3.2.
Таблица 1.3.2.
|
Стены из обыкновенного глиняного кирпича d ³ 380 мм |
Лестничные площадки и марши из сборного железобетона |
Гипсобетонные перегородки толщина > 3 см |
Железобетонные сборные плиты(арматура из стали классов А-I; А-II; А-IV |
| Несгораемые || | Несгораемые 1,1 | Несгораемые 2,2 | Несгораемые 0,9 |
1.4. Требования функционального процесса
В нашем случае в квартирах должны быть предусмотрены следующие помещения:
- жилые – общая комната и спальня;
- подсобные – кухня, передняя, ванная, туалет, хозяйственная кладовая или шкаф, а также могут быть предусмотрены антресоли.
В квартирах следует предусматривать места для устройства встроенных шкафов для одежды и других предметов домашней утвари.
Площадь жилой комнаты и кухни должна быть не менее 8 м2. В однокомнатных квартирах допускается устройство совместных санузлов. Двери уборной, ванной и совмещённого санузла должны открываться наружу.
Вход в помещение, оборудованное унитазом, непосредственно из кухни и жилых помещений не допускается.
Не допускается размещение уборной и ванной непосредственно над жилыми комнатами и кухнями.
Ширина подсобных помещений квартир должна быть, м не менее:
кухня – 1,7 м; передняя – 1,4 м; внутриквартирные коридоры – 0,85 м;
уборные – 0,8 м;
Функциональное и акустическое зонирование помещений квартир должно обеспечивать комфортные наилучшие условия.
