Строительное материаловедениеРефераты >> Строительство >> Строительное материаловедение
Дегтебитумные рулонные кровельные материалы изготовляют пропиткой кровельного картона дегтепродуктами с последующим покрытием его с обеих сторон нефтяным битумом. В зависимости от вида посыпки они делятся на три вида: материалы марки ДБМ, представляющие собой подкладочный кровельный материал с мелкой минеральной посыпкой, глиняная черепица используемый в многослойных коврах и для пароизоляции; материалы марок ДБК и ДБЧ, имеющие соответственно крупнозернистую и чешуйчатую посыпки. Их применяют в наружных слоях многослойных плоских крыш, совмещенных и водоналивных крышах. Дегтебитумные материалы укладывают как на холодных, так и на горячих битумных, дегтевых и гудрокамовых мастиках.
Стеклорубероид (ГОСТ 15879-70)- материал на стекловолокнистой основе. Получают его путем двустороннего нанесения битумного вяжущего вещества на стекловолокнистый холст.
В зависимости от вида посыпки на лицевой стороне стеклорубероид разделяется на марки С-РК и С-РЧ, соответственно имеющие на лицевой стороне крупнозернистую и чешуйчатую посыпку. Он имеет на обеих сторонах мелкую пылевидную посыпку. Такую же посыпку на обратной стороне имеет рубероид С-РК и С-РЧ. Рубероид С-РК и С-РЧ используется в наружных слоях ковра, а рубероид С-РМ - во внутренних. Их выпускают в рулонах шириной 960 и 1000 мм.
Металлоизол представляет собой гидроизоляционный материал на основе отожженной алюминиевой фольги толщиной от 0,5 до 0,2 мм. Его покрывают защитным составом с обеих сторон. В качестве покровного слоя применяют битум БН-90/10.Данный вид рулонных кровельных материалов выпускают в виде лент шириной до 460 мм и длиной до 20 м.
Фольгоизол является разновидностью металлоизола; он представляет собой двухслойный рулонный сериал, состоящий из тонкой рифленой или гладкой фольги, покрытой с нижней стороны защитным составом из модифицированного резинобитумного вяжущего. Он может быть окрашен в различные цвета атмосферостойким лаком или краской. Его используют для покрытия плоских и водоналивных крыш жилых и общественных зданий, устройства пароизоляции и герметизации стыков на кровельном покрытии.
Стеклоткань представляет собой тканую сетку из прочных стеклонитей с размерами ячеек 4X4 мм. Стеклонити на прядильном станке свивают из тончайших стекловолокон. Промышленность выпускает данные рулонные кровельные материалы следующих марок: Т и Э. Это ткань теплостойка, биостойка, имеет большую механическую прочность. Стекловойлок ВВ-Г (МРТУ 6-11-3-64) представляет собой полотнище из произвольно расположенных стекловолокон. Для придания полотнищу механической прочности их обрызгивают клеящим лаком. В результате получают полотнище шириной 800-900 мм и толщиной около 0,3 мм.
Применяют их в качестве армирующих прокладок при устройстве кровель, выполняемых из различных эмульсий.
ЗАДАНИЕ 7
К лакокрасочным составам, образующим в совокупности декоративное покрытие, относятся грунтовки, шпатлевки, лаки, политуры, краски и эмали. Каждая из этих составляющих выполняет определенные функции и обеспечивает получение лакокрасочного покрытия с определенными художественными, физико-механическими и эксплуатационными свойствами.
Лаки - из натуральных или синтетических смол и высыхающих масел, разведенных в воде или органических растворителях, образуют твердую однородную пленку, чаще всего светопроницаемую. Они придают изделиям декоративный вид, например, подчеркивают текстуру ценных пород дерева, а также применяются для создания антикоррозийных и других защитных покрытий. Лаки "дружат" с деревом, металлом или минеральной основой. Для защитно-декоративной отделки металлических и минеральных поверхностей, как правило, используют окрашенные или белые лаки
Краски - включают пигмент - измельченный в пудру цветной минерал. Кроме того, они содержат пленкообразующее вещество и летучий компонент- воду или органический растворитель.
Эмали - представляют собой смесь лака с пигментом. Создаваемые с их помощью покрытия отличаются прочностью, красотой и долговечностью.
Грунтовки - служат для создания чернового покрытия. Их задача - надежно объединить поверхностную пленку с подложкой.
Шпатлевки - предназначенные для выравнивания поверхностей, они содержат различные наполнители.
Обозначения некоторых отечественных лакокрасочных материалов по химическому составу пленкообразующего вещества: алкидно-акриловые - АС; алкидно-уретановые - АУ; полиуретановые - УР; полиакриловые - АК; битумные - БТ; полиэфирные - ПЭ; глифталевые - ГФ; масляные - МА; пентафталевые - ПФ; карбамидные - МЧ; нитроцеллюлозные - НЦ; эпоксидные - ЭП; перхлорвиниловые - ХВ; поливинилацетатные - ВА; эпоксиэфирные - ЭФ.
Немаловажный параметр любого лакокрасочного материала - экологичность. В этом отношении выделяются лаки на водной основе - они без токсичных веществ и практически без запаха. Почти все материалы с органическими растворителями сильно пахнут, и поэтому требуется проветривать помещение во время работы. Общей тенденцией последних лет является разработка и максимально широкое использование не содержащих органических растворителей лаков, что делает их пожаро- и взрывобезопасными и позволяет работать с ними без средств защиты органов дыхания.
Применение
Еще одним важным фактором при выборе лака является место (объект) их применения. Здесь можно выделить четыре большие группы. В первую входят паркетные лаки. В последние годы для отделки полов вместо двухкомпонентных используют однокомпонентные алкидно-полиуретановые и акрилатно-полиуретановые, которыми покрывают двери, мебель и другие деревянные изделия.
Вторая группа - это так называемые лодочные лаки. Их отличает очень высокая прочность и устойчивость к атмосферным воздействиям, поэтому они также применяются для отделки садовой мебели и прочих изделий из дерева, находящихся вне помещений и подвергающихся воздействию солнечных лучей, дождя и снега, жары и холода.
Самой многочисленной является группа лаков для декоративно-защитной отделки различных деревянных поверхностей внутри и вне помещений. Особую группу составляют мебельные лаки.
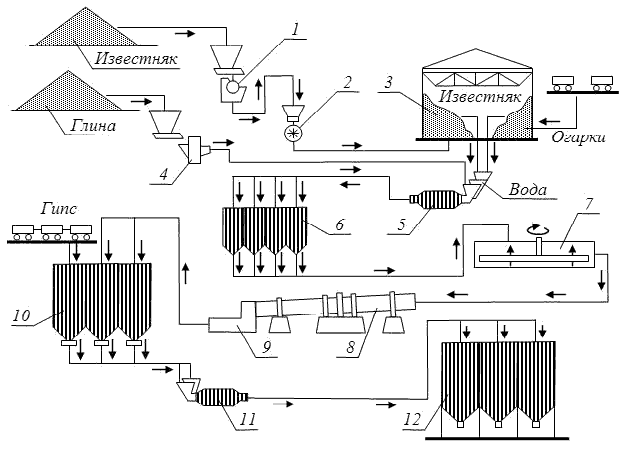
ТЕХНОЛОГИЧЕСКАЯ СХЕМА ПРОИЗВОДСТВА ЦЕМЕНТА «МОКРЫМ» СПОСОБОМ И ЭТАПЫ ТЕХНОЛОГИИ
Технология производства портландцемента - мокрый способ
Мокрый способ целесообразно применять, если в глине имеются посторонние примеси при значительных колебаниях химического состава сырья и его высокой влажности. К недостаткам этого способа относится высокий расход топлива на обжиг - в 1,5 - 2 раза больший, чем при сухом.
Рис. 1. Технологическая схема получения цемента по мокрому способу:
1 - щековая дробилка; 2 - молотковая дробилка; 3 - склад сырья; 4 - мельница «Гидрофол»; 5 - мельница мокрого помола; 6 - вертикальный шламбассейн; 7 - горизонтальный шламбассейн; 8 - вращающаяся печь; 9 - холодильник; 10 - клинкерный склад; 11 - мельница; 12 - силос цемента.
