Разработка проекта плоского железобетонного ребристого перекрытия по заданному плану перекрываемого помещенияРефераты >> Архитектура >> Разработка проекта плоского железобетонного ребристого перекрытия по заданному плану перекрываемого помещения
Техническое задание
Разработать проект плоского железобетонного ребристого перекрытия по заданному плану перекрываемого помещения. Проект перекрытия составить в двух вариантах: в монолитном и сборном железобетоне.
Состав проекта
По варианту в монолитном железобетоне:
1. схему балочной клетки,
2. расчет плиты,
3. арматурный чертеж плиты.
По варианту в сборном железобетоне:
1. схему разбивки перекрытия на сборные элементы,
2. расчет элементов настила и прогона,
3. арматурный чертеж настила и прогона,
4. деталь узла сопряжения прогона с колонной.
Исходные данные
Полезная нагрузка Р= 17 кН / м2
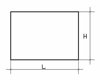
Схема перекрываемого помещения
L= 54 м
H= 38 м
1. Компоновка балочного перекрытия и назначение
основных размеров элементов
где L=54 м, Н=38 м
lгл=6 м, lвт=5,4 м
Определение толщины плиты
hпл=>lпл / 30 , где lпл= 2 м
hпл=>2 / 30 = 0,066 = 0,07 м = 7 см
Определение параметров главных и второстепенных балок
hгл=(от 1/8 до 1/12) lгл , hвт=(от 1/10 до 1/15) lвт ,
где lгл=6 м где lвт=5,4 м
назначаем hгл=60 см назначаем hвт=50 см
bгл=( от 0,3 до 0,5 ) hгл bвт=( от 0,3 до 0,5 ) hвт
назначаем bгл=30 см назначаем bвт=25 см
Сечение балки
2. Расчет балочной плиты
2.1. Статический расчет балочной плиты
При расчете из перекрытия мысленно вырезается (перпендикулярно второстепенным балкам ) полоса шириной 1м, которая и рассматривается как многопролетная неразрезная балка, несущая постоянную и временную нагрузки.
Постоянная нагрузка в большинстве случаев бывает равномерно распределенной, а временная ( полезная ) может быть распределенной по любому закону или сосредоточенной. В нашем случае примем ее также равномерно распределенной.
Все нагрузки сведем в таблицу № 1.
Таблица № 1.
| Нагрузка | gn кН / м2 | n | g кН / м2 | g* кН / м |
| Вес плиты | 1,68 | 1,1 | 1,85 | 1,85 |
| Пол | 1,62 | 1,2 | 1,95 | 1,95 |
| Сумма | 3,8 | |||
| Полезная | 17 | 1,2 | 20,4 | 20,4 |
где gn пл=hпл* g бетона=0,07*2400=1,68 кН / м2,
тип пола “чистый цементный пол по шлакобетону”
При обычном статическом расчете неразрезных балок предполагается шарнирное опирание их на опоры, не препятствующее
повороту опорных сечений. Плита же ребристого перекрытия, будучи монолитно связанной с балками, не может свободно поворачиваться на промежуточных опорах. Это упругое защемление плиты на промежуточных опорах отражается главным образом на изгибающих моментах средних пролетов. Для косвенного учета упругого защемления плиты во второстепенных балках в качестве условной расчетной постоянной и временной нагрузок принимают
q’=g*+p*/2=3,8+20,4 / 2= 14 кН / м
p’=p*/2=20,4 / 2= 10,2 кН / м
Статически неопределимая многопролетная неразрезная сводится к расчету пяти пролетной балки если фактическое число пролетов больше или равно пяти. Таким образом, в плите с пятью и пролетами и более необходимо найти пять значений изгибающих моментов: М1, М2, М3, МВ, МС.
Изгибающие моменты в расчетных сечениях определим из формулы:
М=a *q’l2пл + b *p’l2пл,
где a*- коэф. влияния от действия постоянной нагрузки q’
b*- коэф. влияния от действия временной нагрузки p’
Расчеты представлены в таблице № 2.
Таблица № 2.
| Сечение | Схема загружения | a* | a*q’l2пл кН / м | b* | b*p’l2пл кН / м | М=Мq’+Mp’ кН / м |
| 1 | 1 | 0,0779 | 4,3624 | 0,0989 | 4,03512 | 8,39752 |
| 2 | 2 | 0,0329 | 1,8424 | 0,0789 | 3,21912 | 5,06152 |
| 3 | 1 | 0,0461 | 2,5868 | 0,0855 | 3,4884 | 6,0752 |
| В | 3 | -0,1053 | -5,8968 | -0,1196 | -4,87968 | -10,77648 |
| Вгр | -7,75148 | |||||
| С | 4 | -0,0799 | -4,4744 | -0,1112 | -4,53696 | -9,01136 |
| Сгр | -5,98636 |
