Особенности проектирования строительных конструкций гражданских зданийРефераты >> Строительство >> Особенности проектирования строительных конструкций гражданских зданий
Содержание
1. Работа под нагрузкой обрешётки настила подшивки. Конструирование и расчёт.
2. Нагрузки, действующие на здание. Понятие о работе конструкции зданий из дерева под нагрузкой.
3. Понятие о работе под нагрузкой несущих стеновых панелей панельных зданий.
Список литературы
1. Работа под нагрузкой обрешётки настила подшивки. Конструктирование и расчёт
Расчёт шага обрешётки и длины кровли из цементно-песчаной черепицы
Для определения количества рядов черепицы на проектируемой кровле вначале рассчитывают шаг (Шо6р.) обрешётки (рис.1. ): Шобр.= Lчер. - Н, где Lчep. (длины черепицы "Франкфуртская NOVO") = 420 мм; Н (нахлёстка черепиц) = 75…108 мм в зависимости от уклона.
Рис. 1. Поперечный разрез черепичной кровли
Зная длину стропила Lстр. можно определить количество рядов черепицы (n):
где
Шкарн. (шаг стропил у карниза) = 32…39 см (см. рис. 1.15) в зависимости от положения водосточного желоба;
4 см - расстояние от конька до верхней грани обрешётки.
На многоскатных кровлях шаг обрешётки и количество рядов черепицы рассчитывают для каждого ската.
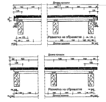
Длина кровли (длина обрешётки) зависит от длины здания и применяемой боковой черепицы (рис. 2). Точная подгонка длины кровли обеспечивается применением половинчатой черепицы и свободной укладкой черепицы (с люфтом 3 мм в каждом стыке черепицы).
Рис. 2 Схема для расчёта длины кровли с боковой цементно-песчаной (а) и облегчённой (б) черепицей
1 - боковая левая черепица; 2 - половинчатая черепица; 3 - цельная рядовая черепица; 4 - боковая правая черепица; 5 - шуруп с уплотнительной шайбой.
Расчёт шага обрешётки (длины ската) и длины кровли из керамической черепицы (на примере черепицы "ОПАЛ")
Размеры этой черепицы, расчёт длины ската и кровли приведены на рис.3,4,5
Рис 3 План черепицы, поперечный и продольный разрезы.
Рекомендуемый уклон кровли - 30°.
Вес черепицы - 1,8 кг.
Расход на 1 м2 ~ 34 шт.
Средняя длина черепицы в кровле ~ 360 мм;
Средняя ширина черепицы в кровле ~ 180 мм
Шаг обрешётки: при двойной укладке - 145…165 мм (см. рис.4) и при корончатой укладке - 290…330 мм (см. рис.5).
Рис.4. Поперечный разрез кровли (скат кровли) при двойной (а) и при корончатой (б) укладке черепицы.
LAP - расстояние от конька до обрешётки равно 100 мм при уклоне кровли до 30°; 90 .100 мм от 30 до 45° и 75…90 мм - > 45°;
LA - шаг обрешётки;
LAT1 и LAT2 - шаг обрешётки на свесе.
Длина ската будет равна: L = LAT1 + LAT2 + LAF + LA x n, где n - количество рядов черепицы.
Рис.5 Продольный разрез кровли с применением на фронтоне боковой черепицы (а) и без применения такой черепицы (б).
здание настил конструкция кровля
2. Нагрузки, действующие на здание. Понятие о работе конструкции зданий из дерева под нагрузкой
На здания действуют статические постоянные и кратковременные нагрузки.
Самыми распространенными видами нагрузок и источниками напряжений являются:
· давление и тяга ветра;
· собственный вес и прочие постоянные нагрузки;
· эксцентриситет постоянных нагрузок;
· горизонтальные силы, вызванные человеком, животными или транспортом;
· вес оборудования, монтируемого на бетонных слоях;
· колебания средней температуры железобетонных слоев;
· разница внутренней температуры слоев;
· разница температуры между слоями;
· усадка и ползучесть слоев;
· осадка фундамента;
· нагрузки, возникающие во время перевозки и монтажа.
Давление и тяга ветра сосредотачиваются на наружном слое, с которого напряжение через связи переходит на внутренний слой и далее через стык на остальную часть конструкции. Собственный вес наружного слоя через связи и закладные переходит на внутренний слой. Нагрузки, вызываемые человеком, животными, транспортом и предметами учитываются как линейные или отдельные сосредоточенные нагрузки. Вес оборудования, закрепляемого на панели, учитывается как постоянная нагрузка. Особо значительным может оказаться вес рекламного оборудования.
Следствием колебаний средней температуры слоев является изменение длины стены, а следствием разницы температур - изгибы. Если вышеупомянутые подвижки панелей не могут происходить свободно, в стене образуются вынужденные силы, которые могут привести к образованию трещин, прогибов и других повреждений.
Показатели деформации, возникающие в период складирования, во многом зависят от способа опирания панели. Крайними случаями являются свободное опирание и полностью закрепленное опирание.
Обычно бетонные панели складируются в вертикальном положении, с опиранием на нижний край и на один из верхних углов. Если панель находится не в вертикальном положении, то на длинных (более 6м) и только что отформованных панелях могут появиться прогибы.
Материал наружного и внутреннего слоев
Для полносборных железобетонных конструкций применяют все основные виды бетона: тяжелый, легкий на пористых заполнителях и ячеистый. Марка бетона выбирается на основании требований по долговечности и прочности.
Сбор нагрузок с кровли
|
№ п/п |
Наименование нагрузки |
Норма нагрузка кгс/м2 |
Коэф. надежности по нагрузке |
Расчет. нагрузка кгс/м2 |
|
Постоянная | ||||
|
1 | Кровельное покрытие |
8 |
1,1 |
8,8 |
|
2 |
Цементно-песчанная стяжка(2000=7 кгс/м3, 8=20 мм) |
40 |
1,3 |
52 |
|
3 |
Утеплитель (пенополистирол)- (1600=Г кгс/м3, 8=160 мм) |
256 |
1,3 |
332,8 |
|
4 |
Пароизоляция-5мм |
5 |
1,1 |
5,5 |
|
5 |
Железобетонная плита (2400=f кгс/м3, 8=200 мм) |
480 |
1,1 |
528 |
|
ИТОГО постоянная: |
789 |
927,1 | ||
|
6 |
Снеговая нагрузка |
180 |
1,4 |
252 |
