Технико-экономическое обоснование выбора фундамента мелкого заложенияРефераты >> Строительство >> Технико-экономическое обоснование выбора фундамента мелкого заложения
Выбор возможных вариантов фундаментов: в качестве возможных вариантов фундамента принимаем:
- фундамент мелкого заложения;
- свайный фундамент на забивных призматических сваях.
1.3 Сбор нагрузок, действующих на фундамент
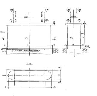
В соответствии с [2, п. 2.1*] установлено 18 видов постоянных и временных нагрузок, которые могут действовать на конструкции мостов и, следовательно, передаваться на опору. На рисунке 1. показаны следующие основные нагрузки:
вертикальные нагрузки -
масса пролетных строений Рп, являющаяся суммарной равнодействующей сил Рп/2, соответствующих давлению от примыкающих к данной опоре двух пролетных строений;
сила воздействия на опору Ртр от временной подвижной вертикальной нагрузки, являющаяся равнодействующей сил Ртр/2, полученных от загрузки примыкающих к опоре пролетов; масса опоры Ро - собственная масса надфундаментной части опоры.
горизонтальная нагрузка -
горизонтальная составляющая Т силы воздействия на опору Ртр от временной подвижной вертикальной нагрузки.
Рисунок 1. – Опора моста с действующими нагрузками
Таблица 2. Нагрузки, действующие на фундамент
|
Наименование нагрузки |
Условное обозначение |
Ед. изм. |
Выражение для определения |
Кол-во |
|
Масса пролетных строений |
Рп |
кН |
1350 | |
|
Сила воздействия от временной вертикальной подвижной нагрузки |
Ртр |
кН |
6075 | |
|
Горизонтальная сила |
Т |
кН |
750 | |
|
Вес опоры моста |
Ро |
кН |
373.5 |
2. Проектирование фундамента мелкого заложения на естественном основании
2.1 Определение глубины заложения подошвы фундамента. выбор отметки обреза фундамента
2.1.1 Определение глубины заложения подошвы фундамента
Нормативная глубина сезонного промерзания определяется по формуле:
dfn=do√Mt,
где М, — коэффициент, численно равный сумме абсолютных значений среднемесячных отрицательных температур за зиму в данном климатическом районе; do - глубина промерзания (см), зависящая от вида грунта, принимается равной: песков средней крупности-23см.
dfn=do√Mt=23*√42=149.06см=1.5м
Расчетная глубина сезонного промерзания грунта определяется по формуле:
df=khdfn ,
где kh, - коэффициент, учитывающий влияние теплового режима сооружения и принимаемый для отапливаемых зданий в зависимости от конструкций полов и температуры внутри помещений, а для наружных и внутренних фундаментов, неотапливаемых зданий ,kh = 1.1.
df=khdfn=1.1*149.06=164.56см=1.6м
2.1.2 Выбор отметки обреза фундамента
Обрез фундамента принимаем на 0.5м ниже горизонта самых низких вод
2.2 Определение площади подошвы фундамента и расчетного сопротивления основания
Размеры обреза фундамента в плане принимаю больше размеров надфундаментной части опоры на величину с=0.2м в каждую сторону для компенсации возможных отклонений положения и размеров фундамента при разбивке и производстве работ (рис.1).
Минимальная площадь подошвы фундамента рассчитывается по формуле
Amin=(A + 2c)-(B + 2c),
где А и В - ширина и длина надфундаментной части опоры в плоскости обреза фундамента, принимается по заданию.
Amin=(10.4 + 2∙0.15)(1.5 + 2∙0.15) = 19.26м²
Далее по формуле (1) приложения 24 [2] определяется расчётное сопротивление грунта основания (МПа) при ширине подошвы фундамента b= (В+2с)
R = 1.7{R0[1 + k1(b-2)] + k2γ(d -3)},
где R0 = 343 кПа— условное сопротивление грунта, МПа; b = 2м — ширина подошвы фундамента, м; d = 5.7м — глубина заложения фундамента, принимается от поверхности грунта до подошвы фундамента; γ - осредненное по слоям расчётное значение удельного веса грунта, расположенного выше подошвы фундамента, вычисленное без учёта взвешивающего действия воды, МН/м³, по формуле:
γ = ∑ γi hi / ∑hi ,
где γi - удельный вес отдельных слоев грунта, лежащих выше подошвы фундамента, кН/м3; hi — толщина отдельных слоев грунта выше подошвы фундамента, м; k1 и k2 -коэффициенты, принимаемые по таблице 4, прил. 24 [2].
k1= 0.1 мֿ¹
k2 = 3
R = 1.7{343[1 + 0.1(2-2)] + 3∙19.9(5.7 -3)}=274.02 кПа
2.3 Проверка принятых размеров фундамента
Расчёт преследует цель определить средние, максимальные и минимальные давления под подошвой фундамента и сравнить их с расчётным сопротивлением грунта:
p=N1/A ≤ γcR/γn ,
pmax=N1/A + M1 /W ≤ γcR/γn ,
pmin=N1/A - M1 /W ≥0 ,
где p, pmax и pmin — соответственно среднее, максимальное и минимальное давления подошвы фундамента на основание, кПа; N1 - расчётная вертикальная нагрузка на основание с учётом гидростатического давления воды, если оно имеет место, кН; М1 - расчётный момент относительно оси, проходящей через центр тяжести подошвы фундамента, кН∙м; A — площадь подошвы, м2; W- момент сопротивления по подошве фундамента, м3;
W= bl²/6
где l- длина подошвы фундамента, м; b - ширина подошвы фундамента, м; R -расчётное сопротивление грунта под подошвой фундамента, кПа; γс=1,2 - коэффициент надёжности по назначению сооружения; γп=1,4 - коэффициент условий работы.
Определяем нормальную N1 и моментную нагрузки М1 , действующие на основание
N1 = 1,2(Р0+Рп+Рф+ Рг) + 1,13∙Ртр,
М1 = 1,2Т(Н+hФ),
где Рф и Рг — соответственно нагрузки от веса фундамента и грунта на его уступах (с учётом взвешивающего действия воды, при УПВ выше подошвы фундамента), кН; Н — высота опоры моста, м; hф — высота конструкции фундамента, м. Расчётные величины Ро, Рп, Ртр, Т даны в таблице 2.
Путем последовательных подборов размеров фундамента и глубины заложения подошвы, принимаем:
d = 5.7 м – глубина заложения фундамента
hф =6.2 м – высота фундамента
a=11 м – длина подошвы фундамента
b= 2 м – ширина фундамента
A = a∙b = 11∙2= 22 м² - площадь подошвы фундамента
