Организация работы холодного цеха ресторана первого класса на 75 мест
N=n*t/3600*Т*λ
N= 235620 / (3600*13*1,14) = 4,42~4
Таким образом, в холодном цехе будет работать четыре повара по линейному графику (в одну смену).
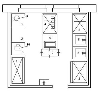
12. План холодного цеха с расстановкой оборудования
![]() |
1. холодильный шкаф ШХ-0.8;
2- холодильный шкаф ШХ –0.6
3- стол производственный.
4- секция-стол с охлаждаемым шкафом и горкой СОЭСМ-3
5- низкотемпературный прилавок СН-0,15.
6- секция-стол с охлаждаемым шкафом СОЭСМ-2;
7- передвижной стеллаж.
8- моечная ванна ВМ-2СМ
9- машина для нарезки вареных овощей
10 – маслоделитель ручной
Список использованных источников
1. Правила оказания услуг общественного питания. Утв. Постановлением Правительства РФ от 15.08.97 № 1036.
2. ГОСТ Р 50647-94 «Общественное питание. Классификация предприятий»
3. ГОСТ Р 50763-95 «Общественное питание. Кулинарная продукция, реализуемая населению. Общие технические условия».
4. ГОСТ Р 50764-95 «Услуги общественного питания».
5. ГОСТ Р 50935-96 «Общественное питание. Требование к обслуживающему персоналу».
6. ОСТ 28-1-95 «Общественное питание. Требование к производственному персоналу».
7. ГОСТ Р 50647-94 «Общественное питание. Термины и определения».
8. Аграновский Е.Д. Организация производства на предприятиях общественного питания. – М.: Экономика, 1990. -
9. Кулинария: теоретические основы профессиональной деятельности (Текст): Учебное пособие: В 2-х ч. / О.М.Соловьева, Г.К.Миронова, А.П. Елепин. – М.: Академкнига / Учебник, 2007. – Ч.1: 205 с.: ил.
10. Кулинария: теоретические основы профессиональной деятельности (Текст): Учебное пособие: В 2-х ч. / О.М.Соловьева, Г.К.Миронова, А.П. Елепин. – М.: Академкнига / Учебник, 2007. – Ч.2: 205 с.: ил.
11. Никуленкова Т.Т. Маргелов В.Н. «Проектирование предприятия общественного питания» М. «Экономика», 1987г.
12. Нормы оснащения предприятий общественного питания столовой посудой, приборами, мебелью и кухонным инвентарём. Утв. Приказом МТ СССР 38 от 09.022.73г.
13. Радченко Л.А. «Организация производства на предприятиях общественного питания» М. «Феникс», 2008г.-373, [1] с.

