Пирожное бисквитное с белковым кремом. Муссы
Бисквитные пирожные выпускают прямоугольными, круглыми, овальными, ромбовидными, треугольными; в виде мостиков, бочонков, рулетиков, бутербродиков; весовыми и штучными.
Пирожное бисквитное с белковым кремом (нарезное)
Бисквит: мука — 136; крахмал картофельный — 34; сахар-песок — 168;меланж— 280; выход — 484 г.
Сироп для проточки: сахар-песок — 95; эссенция ромовая — 0,4; коньяк или вино десертное — 8,9; выход — 185 г.
Крем белковый на сметане.
Ингредиенты: белок 4 шт., сахар 10ст ложек, сметана 1 стакан
Приготовить белковый крем: охлажденные яичные белки взбить в пышную пену, затем постепенно, продолжая взбивать, ввести сахар и осторожно вмешать сметану.
Технологическая карта
Наименование блюда: пирожное бисквитное с белковым кремом
| наименование продуктов | Брутто 10 порций | Нетто 1 порция | Вес готового продукта |
| Бисквит | |||
|
Мука | 136 | ||
|
Крахмал картофельный | 34 | ||
|
Сахар-песок | 168 | ||
|
Меланж | 280 | ||
| Сироп для промочки | |||
|
Эссенция ромовая | 0,4 | ||
|
Сахар-песок | 95 | ||
|
Коньяк | 8,9 | ||
| Крем белковый на сметане | |||
|
Белок | 4 шт. (92) | ||
|
Сахар | 250 | ||
|
Сметана | 250 | ||
|
Выход (10 шт.) | 1314,3 | 1300 | |
|
Выход (1шт) | 130 | ||
Краткая технология:
Бисквитную лепешку разрезать на два пласта одинаковой толщины.
Первый пласт пропитать ароматизированным сиропом, затем накрыть вторым пластом, пропитать его сиропом и намазать кремом.
Разметить пласт ножом на пирожные и с помощью корнетика нанести на каждое рисунок из крема.
Осторожно разрезать склеенные и отделанные пласты на отдельные пирожные и на противне поставить их в духовой шкаф на 1/2 мин, пока крем слегка не порозовеет. Готовые пирожные переложить на блюдо и посыпать сахарной пудрой.
2.3 Характеристика используемого оборудования
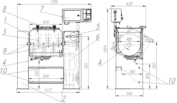
Месильно - сбивальная машина марки БМ-3534
Назначение: Машина предназначена для замеса теста типа бисквитного или песочного, и для сбивания пеносодержащих масс типа "Птичье молоко", пастильной, зефирной и т.п.
Технические характеристики:
|
Емкость загрузочного бункера, м.куб. | 0.1 |
|
Количество рабочих лопастей, шт. | 6 |
|
Количество разновидностей формы лопастей | 3 |
|
Частота вращения лопастей, об/мин.: | 40 .120 |
|
Привод | мотор-редуктор S67DV100L4 (Nm=3,0кВт; na=140 об/мин; Ma =188 Нм) |
|
Питание | трехфазный переменный ток |
|
напряжение, В | 380 +/10% |
|
частота, Гц | 50 |
|
Габаритные размеры |
|
|
длина, мм | 1336 |
|
ширина, мм | 628 |
|
высота, мм | 1454 |
|
Масса, кг | не более 270 |
|
срок эксплуатации, лет | 10-12 |
Устройство и принцип работы:
Месильно-сбивальная машина состоит из следующих основных частей: корытообразного бункера поз.1 на двух опорах поз.2 с подшипниковыми узлами; вала поз.3 с рабочими лопастями, проходящего внутри бункера; спускного устройства поз.4 для выгрузки жидкого продукта из бункера поз.1; опрокидывающего механизма поз.5 для переворота бункера и выгрузки вязкого продукта; привода поз.6 и цепной передачи, расположенных внутри правой опоры машины; пульта управления с частотным преобразователем поз.7.
