Товароведная экспертиза хлебобулочных изделий
Рецептура и режим приготовления теста ускоренным способом на молочной сыворотке для производства булочных изделий
|
Наименование сырья, полуфабрикатов и показателей процесса |
Расход сырья и параметры процесса |
|
Мука пшеничная хлебопекарная, кг |
100 |
|
Дрожжи хлебопекарные прессованные, кг |
по рецептуре + (0,5-1,0) |
|
Соль поваренная пищевая, кг |
по рецептуре |
|
Вода, кг |
по расчету |
|
Дополнительное сырье, кг |
по рецептуре |
|
Молочная сыворотка, кг |
10-15 |
|
Влажность, % |
Wхл+(0,5 – 1,0) |
|
Температура начальная, °С |
30-34 |
|
Продолжительность замеса, мин |
3-4 (15-20) |
|
Продолжительность брожения, мин |
40-90 |
|
Кислотность молочной сыворотки.° Т, не более |
75 |
|
Кислотность конечная теста, град |
Кхл + 0,5 |
Молочную сыворотку вносят при замесе теста в таком количестве, чтобы получить готовые изделия кислотностью, соответствую щей требованиям нормативно-технической документации на вырабатываемое изделие.
При замесе теста воду дозируют с учетом внесения сыворотки, чтобы получить изделие заданной влажности. При выработке сдобных изделий, в рецептуру которых входит большое количество дополнительного сырья, с целью получения изделий требуемой влажности часть сырья, главным образом сахар; вносят при замесе в сухом виде.
Ускоренный способ приготовления теста на концентрированной молочнокислой закваске
Концентрированная молочнокислая закваска (КМКЗ) представляет собой полуфабрикат влажностью 63-66% с конечной кислотностью 14-18 град. Введение КМКЗ при замесе теста обеспечивает повышение кислотности теста до уровня, способствующего быстрому протеканию коллоидных и биохимических процессов, а также активации жизнедеятельности дрожжей. Наличие предшественников вкуса и аромата в закваске позволяет получить хлеб высокого качества при сокращенной продолжительности брожения теста. Высокая кислотность концентрированной молочнокислой закваски обеспечивает ее самоконсервирование на время перерывов в работе на 16 - 24 ч, а также способствует предотвращению заболевания пшеничного хлеба картофельной болезнью. Разрешено увеличивать на 1 град кислотность хлеба при выработке его ускоренным способом на концентрированной молочнокислой закваске.
Приготовление теста ускоренным способом с применением кисломолочной закваски целесообразно осуществлять в агрегате Ш2-ХТД-О1, в комплект которого входит оборудование для приготовления и созревания закваски, для замеса и брожения теста, а также на линиях с использованием тестомесильной машины Ш2-ХТ2-И в сочетании с серийно выпускаемым или нестандартизированным оборудованием. Параметры логического процесса приготовления теста приведены в таблице.
Таблица 4.
Рецептура и режим приготовления теста ускоренным способом на молочнокислой закваске
|
Наименование сырья, полуфабрикатов и показателей процесса |
Расход сырья и параметры процесса при выработке булочных изделий |
|
Мука пшеничная хлебопекарная, кг |
95—97 |
|
Дрожжи хлебопекарные прессованные, кг |
по рецептуре + (0,5—1,0) |
|
Соль поваренная пищевая, кг |
по рецептуре |
|
Вода, кг |
по расчету |
|
Дополнительное сырье, кг |
по рецептуре |
|
КМКЗ, кг* |
7,5—12,5 |
|
Влажность, %, не более |
Wхл + (03—1,0) |
|
Продолжительность замеса, мин |
3-4 |
|
Температура начальная, °С |
30-34 |
|
Кислотность КМКЗ, град |
14-18 |
|
продолжительность брожения теста, мин |
40-90 |
|
кислотность теста конечная, град, не более |
Кхл + 1,0 |
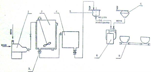
Аппаратурная схема приготовления теста ускоренным способом с использованием КМКЗ на агрегате Ш2-ХТД-01
Рис. 2. Аппаратурная схема приготовления теста из пшеничной муки ускоренным способом с использованием КМКЗ в агрегате Ш2-ХТД-01
1 - смеситель винтовой Ш2-ХВ2-Б; 2 - аппарат для выбраживания КМКЗ Ш2-ХТД-01.01; 3 - насос шестеренчатый Ш2-ХДН; 4 - расходная емкость Ш2-ХТД-01.02; 5 - дозатор жидких компонентов Ш2-ХД2-Б; 6- дозатор сыпучих компонентов Ш2-ХД2-А; 7- тестомесильная машина Ш2-ХТ2-И; 8 - конвейер для брожения теста Ш-ХБВ.
В винтовой смеситель Ш2-ХВ2-Б, предназначенный для приготовления питательной смеси, дозируют воду и муку. Полученную гомогенную смесь насосом подают в емкость Ш-ХТД-01.01, предназначенную для брожения КМКЗ, в которой находится выброженная закваска разводочного цикла. После поступления в емкость заданного количества питательной смеси закваску перемешивают и оставляют для созревания. Во время созревания закваску периодически перемешивают мешалкой, которой оснащена емкость.
Готовую закваску в количестве, необходимом для работы в течение смены, перекачивают насосом Ш2-ХДН в расходную емкость Ш-ХТД-Ш.02, а в оставшуюся закваску снова подают питательную смесь.
Из расходной емкости насосом Ш2-ХДН закваску перекачивают в дозатор жидких компонентов Щ-ХДБ. Этим же дозатором последовательно набирают дозы всех жидких компонентов (воду, жир, дрожжи, соль, сахар). Смесь жидких компонентов сливают в месильную емкость тестомесильной машины Щ2-ХГ2-И, после чего через дозатор сыпучих компонентов И2-ХШ-А подают муку и в течение 3—4 мин замешивают тесто.
Из тестомесильной машины замешенное тесто выгружают в дежи кольцевого конвейера для брожения Ш-ХБВ или емкость конвейера Ш-ХББ, где оно бродит 40-90 минут [7].
Разделка теста
При производстве пшеничного хлеба и хлебобулочных изделий разделка теста включает: деление теста на куски, округление этих кусков, предварительную, или промежуточную, расстойку, окончательное формование изделий и окончательную расстойку тестовых заготовок.
