Технология хранения продукции растениеводстваРефераты >> Ботаника и сельское хоз-во >> Технология хранения продукции растениеводства
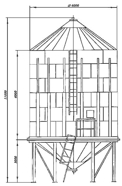
Таблица 8.1. Технические характеристики быстросборного зернохранилища ЗХ-1
| Объем зернохранилища, м3 | 187 |
| Вес хранимого зерна, т | 150 |
| Материал изготовления | дюраль |
| Габаритные размеры зернохранилища ЗХ-1 | |
| Диаметр, м | 6 |
| Высота, м | 11 |
Рисунок 8.1. Внешний вид бункеров ЗХ-1.
Рисунок 8.2. Схема бункера ЗХ-1.
Рисунок 8.3. Загрузка бункеров.
В хозяйстве находится следующее количество зерна с учетом убыли при сушке:
Таблица 8.2. Фактическое наличие зерна в хозяйстве.
| Культура (сорт) | Масса, т | Объем, м³ | ||||
| зерно | семена | фураж | зерно | семена | фураж | |
| Оз. пшеница (Мироновская 808) | 319 | 85 | 234 | 446,6 | 119 | 327,6 |
| Оз. рожь (Верасель) | 295,6 | 61,4 | 234 | 443,4 | 92,1 | 351 |
| Гречиха (Кама) | 263,5 | 28,2 | 235,1 | 500,6 | 53,6 | 446,7 |
Для хранения зерна необходимы бункеры в количестве:
Озимая пшеница:
зерно – 446,6 : 187 = 2,4 ≈ 3,
фураж – 327,6 : 187 = 1,7 ≈ 2,
семена – 119 : 187 = 0,6 ≈ 1.
Озимая рожь:
зерно – 443,4 : 187 = 2,4 ≈3,
фураж – 351 : 187 = 1,8 ≈ 2,
семена – 92,1 : 187 = 0,5 ≈ 1.
Гречиха:
зерно – 500,6 : 187 = 2,7 ≈ 3,
фураж – 446,7 : 187 = 2,4 ≈ 3,
семена – 53,6 : 187 = 0,2 ≈ 1.
Итого необходимо 19 бункеров.
В качестве режима используется хранение зерна в сухом состоянии. При этих условиях исключается повышенный газообмен в зерне и семенах, развитие микроорганизмов и клещей.
Режим хранения в сухом состоянии – основное средство поддержания высокой жизнеспособности семян в партиях посевного материала всех культур и качества зерна продовольственного назначения в течение всего срока хранения. Этот режим наиболее приемлем для долгосрочного хранения зерна и семян.
Основополагающим фактором санитарии элеватора является тщательная уборка и дезинфекция хранилищ - как внутренняя, так и внешняя. Вначале проводится ручная зачистка от остатков зерна днища и стен хранилищ, съемных панелей аэрации, затем зачистка производится при помощи пылесоса. Также очищаются воздуховоды системы аэрации с последующей их фумигацией фосфатными газами, имеющими большую плотность, чем воздух.
Для контроля температуры используют термоподвески GWSL 2000.
В термоподвески вмонтированы цифровые датчики. Термоподвески свисают с крыши бункера. Каждая термоподвеска имеет свою распределительную коробку, расположенную на крыше бункера, или на его внешней стороне. Кабель передачи данных служит для передачи сигнала к центральной операторской станции или к системному интерфейсному блоку.
Термоподвеска (см. рис.№ 3). – твердый стальной многожильный канат, с вмонтированными в него температурными датчиками. Термоподвеска обычно подвешивается к крыше силоса, и если требуется может быть закреплена якорем снизу.
Диаметр: 17 мм
Рабочий диапазон: -30-90°C/0-40°C
Покрытие: Полимер, 1 мм
Разрешение измерения: 0,1 - 1°C (прогр).
Длина: 5 метров
Количество датчиков на подвеске: 1
Расстояние между датчиками: 2
Макс. нагрузка на линию: 7.000 кг
Диаметр бункеров хранения составляет 6 м, для бункеров данного диаметра требуется 3 термоподвески. Всего для хранения зерна и семян используются 12 бункеров, значит необходимо 36 термоподвесок.
Зона 20 - область хранения зерна в силосе; Зона 21 - область крыши; 1 - Кабель передачи данных от одного силоса к другому; 2 – Соединительная муфта для крепления термоподвески (возможно использование крюка); 3 - "Горячие точки" с биологической активностью, которые обнаруживаются датчиками в термоподвесках; 4 – Термоподвески; 5 – Датчики; 6 – Кабель передачи данных к системному интерфейсному блоку, GWAB01; 7 – Силосная распределительная коробка GWNET01/02
Рис. 8.4. Силос с зерном
Необходимость систематического наблюдения за зерновыми массами при хранении вытекает из их свойств и происходящих в них процессов.
Важнейшим показателем, характеризующим состояние зерновой массы при хранении, является температура. Низкая температура во всех участках насыпи (8—10 °С и ниже) свидетельствует о благополучном хранении.
Влияние окружающей среды (наружного воздуха, стен зернохранилищ и т. д.) и физиологические процессы в зерновой массе могут привести к изменению температуры в разных участках насыпи, поэтому ее надо определять в различных слоях зерновой массы. Повышение температуры зерновой массы, не соответствующее изменению температуры воздуха, сигнализирует о начале самосогревания.
Контроль за состоянием зараженности зерновых масс дает возможность своевременно локализовать развитие клещей и насекомых или полностью их уничтожить. Зараженность зерновой массы в складе проверяют раздельным исследованием проб по слоям насыпи (в верхнем, среднем и нижнем), так как вредители могут мигрировать в различные ее участки.
Периодичность наблюдения за партиями зерна зависит от их состояния. Так, в свежеубранных семенах с повышенной влажностью температуру проверяют ежедневно, а в сухих — два раза в декаду. В партиях охлажденного зерна ее достаточно определять раз в декаду или даже раз в 15 дней.
