Спортивные сооружения для зимних видов спортаРефераты >> Физкультура и спорт >> Спортивные сооружения для зимних видов спорта
а) гонки на 20 км, 10 км и эстафета 4 х 7,5 км для мужчин;
б) гонки на 10 км, 5 км и эстафета 3 х 5 км для женщин и юниорок;
в) гонки на 15, 10 км и эстафета 3 х 7,5 км для юниоров.
К устройству трасс для биатлона предъявляются требования, аналогичные требованиям к трассам лыжных гонок. Чтобы упражнения в стрельбе проводились на одном стрельбище и соревнования были зрелищными, трассы биатлона прокладывают петлями длиной 4,3; 2,5 км.
Таблица 2
Параметры трасс для биатлона
Стрельбище для биатлона должно отвечать следующим требованиям:
- дистанция стрельбы 50 м (+1 м),
- мишени на одном уровне с огневым рубежом,
- расстояние между соседними огневыми позициями не менее 2,5 м;
- количество огневых позиций равно удвоенному числу команд плюс две резервных (по одной для стрельбы лежа и стоя);
- соответствие нормам на проектирование открытых тиров.
В непосредственной близости от стрельбища на одинаковом расстоянии от всех огневых позиций располагаются штрафные круги длиной 150 м (+5 м). Перед стрельбищем должна быть отгорожена территория шириной не менее 25 м для судей, технического персонала и участников соревнований.
В районе финиша и передачи эстафеты на период соревнований должны быть оборудованы пункт питания и теплые раздевальные для каждой команды (рис. 1).
4. Сооружения для конькобежного спорта, хоккея и фигурного катания
Искусственного льда для учебно-тренировочных занятий и соревнований в нашей стране недостаточно, и это обостряет проблему поиска рациональных типов сооружений для перспективного строительства с эффективным использованием льда. Главное — формирование новых типов сооружений, объединяющих различные ледяные площадки, поля, конькобежные дорожки, а также ледовые катки в сочетании с другими спортивными сооружениями в многоцелевые комплексы для создания возможности занятий различными видами спорта и круглогодичной эксплуатации всего комплекса.
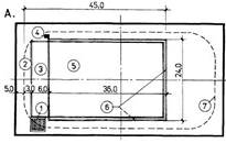
Рис.1 Схема стадиона для биатлона: 1- пулеулавливатель; 2 – мишени; 3 – огневые позиции; 4 – штрафной круг; 5 – старт и финиш; 6 – судейская; 7 – трибуны, раздевальные, пункт питания; 8 – техническая зона; 9 – старт
Эффективное использование сооружений с искусственным льдом зависит от рациональных сочетаний функциональных элементов, входящих в их состав. Основные функциональные элементы: площадка (арена) 61 х 30 м; площадка 45 х 24 м для выступлений балета на льду; конькобежные дорожки длиной 333,3 м и 400 м; поле для хоккея с мячом 116(117) х 75(76) м; новые функциональные элементы — площадка 30 х 20 м для занятий юных фигуристов по «школе»; 250-метровая тренировочная и демонстрационная дорожка с внутренним радиусом 21 м для организации учебно-тренировочного процесса юных конькобежцев. Нетрадиционное размещение площадки для балета на льду - поперек арены с образованием ледяного «кармана» - создает ряд преимуществ: в демонстрационном спортивно-зрелищном зале при одно- или трехсторонней трибуне, когда две меньшие трибуны размещены по торцам арены, зрители на основной трибуне могут воспринимать зрелище фронтально, дополнительные места устанавливаются по боковым сторонам площадки при желании увеличить вместимость зала; габариты ледяного «кармана» 24 х 15 м (рис. 5.18) позволяют использовать его не только для выступлений балета на льду, но и для занятий фигуристов по программе «школы», а при увеличении «кармана» до 30 м создаются идеальные условия для занятий фигуристов.
При размещении площади для балета на льду поперек арены улучшается функциональное использование помещений для артистов, так как зона артистических, обслуживающих балет на льду, и эстрады совпадает, т.е. сокращаются площадь и протяженность обслуживающих вспомогательных помещений.
Рис.2 – План арены для проведения выступления балета на льду (размеры в метрах)
А - вариант расположения площадки вдоль арены для хоккея; Б - вариант расположения площадки поперек арены для хоккея: 1 – помост для оркестра 6х6м; 2 – зона объезда; 3 – зона декораций; 4 – пульт управления светом; 5 – зона выступлении; 6 – рампа; 7 – граница арены
Упомянутые сочетания основных функциональных элементов для учебно-тренировочных занятий и соревнований могут быть развиты и дополнены иными вариантами сочетаний. В зависимости от развития и популярности того или иного вида спорта, от целевой направленности сооружения в целом в условиях конкретного проекта могут варьироваться число хоккейных площадок и арен, площадок для «школы», длина конькобежных дорожек, форма и габариты ледовой поверхности для организации досуга, танцев на льду. Однако функциональные принципы сочетаний основных элементов во всех случаях останутся неизменными: наиболее эффективно использовать ледовую поверхность, при этом создавать возможности для учебно-тренировочной работы, соревнований по большему числу видов спорта; улучшить условия учебно-тренировочной работы с юными фигуристами; организовать занятия по «школе» для конькобежцев; в результате увеличения ледовой поверхности или изменения ее конфигурации может быть достигнут качественно новый уровень использования льда, созданы новые возможности для организации массового катания, игр и танцев на льду, показательных выступлений фигуристов, новогодних елок, цирковых и театрализованных представлений при условии обеспечения фронтального восприятия зрителями происходящего на ледовой сцене действия.
Сооружения с искусственным льдом целесообразно проектировать крытыми, при этом открытые сооружения могут рассматриваться лишь как промежуточные, с последующим поэтапным переходом в ранг полуоткрытых и крытых, поскольку влияние погодных условий на открытые площадки так велико, что это дестабилизирует их эксплуатацию.
При проектировании нужно стремиться придать сооружению множественные качественные признаки, в каждом конкретном случае сообразуясь с технико-экономическими и стоимостными возможностями строительства, следует рассматривать варианты объединения (с возможностью раздельного использования) ледовых поверхностей основных функциональных элементов, а также кооперацию сооружений с искусственным льдом с другими сооружениями (спортивного или иного назначения).
зимний спорт сооружение оснащение
Список литературы
1. Гагина Ю.А. Спортивные сооружения – М., 1999
2. Верхало, Ю.Н. Табель оснащения спортивных сооружений массового пользования спортивным оборудованием и инвентарем: учеб. пособие / Ю.Н. Верхало. - М.: Советский спорт, 2004
