Жидкостно-жидкостная хроматография
Хотя в качестве подвижной и неподвижной фаз выбираются растворители, не смешивающиеся между собой, все же во многих системах наблюдается некоторая взаимная растворимость. Чтобы предотвратить процессы взаимного растворения жидкостей в ходе хроматографирования, подвижную жидкую фазу предварительно насыщают неподвижной. Для сохранения неизменного состава фаз применяют также метод химического закрепления неподвижной фазы на сорбенте. При этом используют взаимодействие растворителя с группами ОН- на поверхности носителя. Адсорбенты с закрепленной на их поверхности жидкой фазой выпускаются промышленностью.
Эффективность колонки связана с вязкостью, коэффициентом диффузии и другими физическими свойствами жидкостей. С уменьшением вязкости подвижной фазы сокращается продолжительность анализа, но с увеличением вязкости несколько возрастает эффективность. В практике обычно используют маловязкие растворители, так как возрастание эффективности колонок при увеличении вязкости не очень велико.
Носитель неподвижной фазы должен обладать достаточно развитой поверхностью, быть химически инертным, прочно удерживать на своей поверхности жидкую фазу и не растворяться в применяемых растворителях. В качестве носителей используют вещества различной химической природы: гидрофильные носители - силикагель, целлюлоза и др. и гидрофобные — фторопласт, тефлон и другие полимеры. [2]
Рис 3. Вид хроматограммы в зависимости от эффективности и селективности хроматографической системы:
а - нормальная селективность, пониженная эффективность;
б - нормальная эффективность и селективность;
в - повышенная селективность, нормальная эффективность. [12]
4. Распределительная хроматография на бумаге (бумажная хроматография)
Кроме обычных носителей, используемых для заполнения колонок, в распределительной хроматографии применяют специфический носитель, позволяющий обходиться вообще без колонки. Таким носителем является специальная хроматографическая бумага, а методика, основанная на ее применении, получила название распределительной хроматографии на бумаге или распределительной бумажной хроматографии. Во многом она сходна с хроматографией в тонком слое (ТСХ). Бумажную хроматографию, как и хроматографию вообще, можно разделить на:
· Распределительную
· Адсорбционную
· Ионообменную
· Препаративную
· Аналитическую.
В распределительной бумажной хроматографии можно выделить:
· нормальную
· обращённо-фазную хроматографию. [2]
По технике выполнения различают следующие виды бумажной хроматографии:
· Одномерную
· Двумерную (хроматографирование производят дважды во взаимно противоположных направлениях: после обработки пробы одним растворителем хроматограмму поворачивают на 90° и хроматографируют вторично уже другим растворителем)
· Круговую
· Электрофоретическую[2]
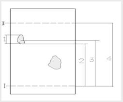
Рис 4. I – линия старта;
II – линия фронта;
1 – длина пятна;
2 – отрезок от линии старта до пятна;
3 – отрезок от линии старта до центра пятна -
;
4 – отрезок от линии старта до линии фронта -
.
Важной характеристикой в бумажной распределительной хроматографии, так же как и в ТСХ, является Rf=x/Xf, где х — смещение зоны компонента; хf — смещение фронта растворителя. Методика определения Rf в бумажной хроматографии не отличается от соответствующей методики в ТСХ, основанной на измерениях в соответствии с рис. 1. В начальный момент времени хроматографируемая проба наносится на начальную (стартовую) линию бумажной полоски и подвергается действию подвижной фазы (растворителя). Если компоненты окрашены, через некоторое время на хроматограмме можно будет видеть отдельные цветные пятна. Первый компонент будет иметь Rf1=x1/xf, второй —R f2=X2/Xf и т. д.[2]
При идеальных условиях коэффициент Rf определяется только природой вещества, параметрами бумаги и свойствами растворителей, но не зависит от концентрации вещества и присутствия других компонентов. В действительности коэффициент Rf в некоторой степени оказался зависящим от этих факторов и техники эксперимента. [2]
Хроматографическая бумага должна быть химически чистой, нейтральной, инертной по отношению к компонентам раствора и подвижному растворителю и быть однородной по плотности. Имеют значение также такие свойства, как структура молекул целлюлозы в бумаге, набухаемость, ориентация волокна и другие, влияющие на скорость движения растворителя и на иные характеристики процесса. [2]
В атмосфере водяных паров бумага поглощает значительное количество влаги (до 20 .25 % своей массы), поэтому, когда неподвижной жидкой фазой является вода, никакого дополнительного увлажнения бумаги не делают. При выборе в качестве неподвижной фазы некоторых органических веществ, гидрофильную бумагу превращают в гидрофобную, пропитывая ее растворами различных гидрофобных веществ (парафина, растительного масла и др.).[2]
В выбранных растворителях компоненты пробы должны иметь разную растворимость, иначе разделения вообще не произойдет. В растворителе, являющемся подвижной фазой, растворимость каждого компонента должна быть меньшей, чем в растворителе неподвижной фазы, но все же составлять вполне заметное значение. Это ограничение связано с тем, что если растворимость вещества будет очень велика, вещество будет двигаться вместе с фронтом растворителя, а если растворимость будет очень мала, вещество останется на начальной линии.[2]
Для разделения водорастворимых веществ в качестве подвижной фазы обычно берут органический растворитель, а в качестве неподвижной — воду. Если вещество растворимо в органических растворителях, вода используется уже в качестве подвижной фазы, а органический растворитель является неподвижной фазой. Это так называемый метод обращенных фаз.[2]
К растворителям обычно предъявляются следующие требования:
· растворители подвижной и неподвижной фаз не должны смешиваться
· состав растворителя в процессе хроматографирования не должен изменяться
· растворители должны легко удаляться с бумаги
· быть недефицитными и безвредными для человека.[2]
Индивидуальные растворители в распределительной хроматографии используют относительно редко. Чаще для этой цели употребляют смеси веществ, например бутилового или амилового спирта с метиловым или этиловым, насыщенные водные растворы фенола, крезола и др., смеси бутилового спирта с уксусной кислотой, аммиаком и т. д. Применение различных смесей растворителей позволяет плавно изменять Rf и тем самым создавать наиболее благоприятные условия разделения.[2]
В бумажной хроматографии вещества различаются по их относительному положению на бумаге после того, как растворитель пройдёт определённое расстояние. Небольшое количество раствора смеси (10-20мкл), которую нужно разделить, наносят в отмеченную точку на бумаге и высушивают. Полученное пятно называют стартовым. Затем бумагу помещают в герметичную камеру и один её конец погружают в растворитель, который является подвижной фазой. Под действием капиллярных сил растворитель движется по бумаге, растворяя и увлекая за собой компоненты образца. До начала движения образец должен полностью раствориться, поэтому скорость растворения компонентов в подвижной фазе является одним из факторов, определяющих эффективность разделения. После того, как растворитель пройдёт определённое расстояние, лист вынимают и сушат. Пятна на хроматограммах могут быть обнаружены по цвету, флуоресценции, с помощью химических реакций, для чего бумагу опрыскивают или погружают в различные реагенты, или же по радиоактивности. Идентификацию проводят обычно путём сравнения с образцами с известными величинами Rf или после элюирования, которое сводится к вырезанию зоны, содержащей пятно, и последующему промыванию её соответствующим растворителем. [5]
