Как помочь насекомым
Переселение шмелей из гнезда в искусственный шмелевник производится так: после захода солнца берут шмелиное гнездо, захватывая частично субстрат, помещают в улеек. Все отверстия в улейке должны быть хорошо закрыты. Шмелиные семьи следует переносить на расстояние не меньше, чем 2 км, иначе шмели могут вернуться к тому месту, где было их гнездо. Шмели лучше приживаются в тех улейках, куда положен утеплительный материал (например, разрыхленный войлок), а также кусочек сота с сахарным сиропом или жидким медом. Чтобы шмели хорошо прижились на новом месте, в первый день летки нужно открывать не раньше десяти часов утра, а вечером дать подкормку из сахарного сиропа, состоящего из одной части сахара и двух частей воды. Подкормка способствует быстрому развитию семьи, особенно она нужна в прохладную и дождливую погоду, а также при слабом цветении медоносов.
Заселение шмелевников следует проводить под руководством учителя-биолога, чтобы по неопытности школьники не допустили разорения шмелиных гнезд.
Шершни
Юный натуралист может позаботиться и о шершнях. Гнезда шерней бывают на чердаках, в сараях или амбарах. Насекомые не представляют здесь никакой опасности. Наоборот, можно получить истинное удовольствие, наблюдая за их удивительным поведением. Помните также: колония шершней распадается ранней осенью. Так что пожить вместе с ними вам придется всего несколько недель.
Если возникнет необходимость убрать свободно висящее гнездо, то пожалуйста, не убивайте насекомых, а попытайтесь переселить их в подходящее место, например в лиственный лес. При этом следует обратить внимание на следующее:
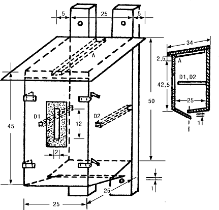
Искусственное гнездовье для шершней.
Лучше всего заручиться поддержкой опытного пчеловода и обезопасить себя соответствующим (защитным) снаряжением, а именно: шляпой с сеткой и рукавицами.
Гнездо лучше снимать после захода солнца или в сырую, холодную погоду. Перенос легче всего удастся, если соты молодых роев небольшие и там находится мало насекомых. При этом гнездо осторожно отрезают ножом от потолка и прикрепляют под дощечкой длиной 20 см, которую можно будет потом подцепить в приготовленном ящике для шмелей.
У гнезд больших размеров удаляются сначала оболочку гнезда недалеко от потолка. Так проделывают в соте верхний паз между двумя сотовыми пластинами, в который просовывают две тонкие деревянные планки длиной 20 см. С их помощью гнездо можно закрепить затем в специальном ящике.
Следите за тем, чтобы в гнезде оставалась матка и как можно больше тружеников. Для этого ящик надо оставить часа на два на старом месте, чтобы насекомые разобрались в новой ситуации. Если у вас появится уверенность, что в ящике собралось наибольшее количество шершней, отверстие можно закрыть и начать перенос на другое место.
Для адаптации насекомых на новом месте в первые дни им надо давать в чашке немного воды с сахаром в соотношении 1:1.
Если в мае или июне шершень заблудится в вашей квартире, возьмите газету и <подведите> насекомое к открытому окну. Просто это большая, чрезвычайно спокойная и миролюбивая матка ищет подходящее место для гнезда.
Большие старые лиственные деревья в лесах, парках, открытом ландшафте и на обочинах дорог надо сохранить как можно дольше. Они дают убежище в своих пустотах шершням и многим другим насекомым и птицам.
Оберегайте обнаруженные на земле гнезд шершней от того, чтобы их никто не растоптал.
Не выбрасывайте на улицу насекомых, если они вдруг заняли птичий ящик-гнездо. С птицами от этого ничего не случится; шершни при использовании этого ящика являются в определенном смысле <второй сменой>.
Природных гнезд в пустотах сегодня не хватает для того, чтобы сохранить шершней. В качестве замены этих пустот можно использовать специальные ящики, они годятся и для переселения насекомых. Их надо расположить на южных окраинах лиственных и смешанных лесов и в дальнейшем смотреть за ними. Хорошо подходят для этого перестойные лиственные деревья и островки спелых лесонасаждений, но не в сырых местах. Ящики крепите в укромных местах к дереву алюминиевыми гвоздями или крепко привязывайте их на высоте 4 м от земли. Пространство возле ящиков должно быть свободно от веток. Поскольку шершни разных колоний не уживаются друг с другом, рекомендуем располагать ящики из расстоянии приблизительно 100 м. После отмирания роя осенью соты надо удалить, а ящики почистить.
Если насекомые не занимают ящики, смените место расположения.
Что важно знать при сооружении ящиков:
1. В качестве материала используйте необструганные и непропитанные доски и планки.
2. Приведенные здесь размеры - это минимальные размеры. В подходящих местах ящики могут быть выше.
3. Крышу ящика надо покрыть толем.
4. Планка под крышей ящика предназначена для постройки мягкого первого сота.
5. Планки, расположенные посередине высоты ящика, служит в качестве боковых опор сот.
6. Щель для залёта шершней должна быть обшита тонкой жестью (как защита от дятлов). Длина щели должна позволять залетать шершням и в том случае, если гнезда большие.
7. Пол ящика должен быть сделан под углом, в вершине которого предусмотрена щель. Отверстие в полу предназначено для отвода (вывода) помета и влаги, вентиляции, а также служит в качестве <аварийного выхода>.
8. Две крепежные планки на тыльной стороне ящика предназначены для того, чтобы ящик не шатался на дереве.
Божьи коровки
Кто не знает обыкновенных божьих коровок, или солнышек, маленьких симпатичных красных жучков с черными точками? Они большие наши помощники в борьбе со злейшими вредителями садов и огородов - тлей.
Если в вашей местности много тли, но нет божьих коровок, этих полезных жучков можно развести в домашних условиях.
Вначале коровок нужно собрать. Зимой даже в естественной обстановке у большинства видов коровок наблюдается значительная гибель, которая, безусловно, возрастает при содержании в искусственных условиях. Поэтому сбор жуков лучше проводить весной - будут собраны лишь здоровые особи, благополучно перенесшие зиму.
Если места сбора коровок удалены от места их содержания, то существенное значение приобретает транспортировка жуков. Ранней весной и осенью эта операция не представляет больших трудностей, так как в это время жуки мало активны (особенно осенью), держатся скученно и их в большом количестве можно помещать в фанерные ящики (с вентиляцией) или в деревянные садки, затянутые марлей или капроном. Ящики и садки заполняют сухими листьями, мелкими веточками, в крайнем случае - древесной стружкой. В них перевозит жуков в любое место.
Весной в садки и ящики, в которых транспортируют жуков, кладут сухой и увлажненный изюм, комочки ваты, смоченные 10-15-процентным раствором сахара и водой. Дно закрывают увлажненным мхом-сфагнумом. Соблюдение этих правил крайне необходимо, так как в это время жуки нуждаются в пище и особенно влаге, и быстро гибнут от их отсутствия.
