Система запуска двигателя БТР-50Рефераты >> Военная кафедра >> Система запуска двигателя БТР-50
При запуске двигателя сжатый воздух поступает в полость а между колпаком и распределительным диском, а отсюда через золотниковое отверстие диска и каналы б в корпусе воздухораспределителя в трубопроводы, подсоединенные к цилиндрам.
Распределительный диск устанавливается таким образом, что открытие отверстия в корпусе воздухораспределителя (рис. 3), а следовательно, и подача воздуха в цилиндр начинаются за 6±3° до в.м.т. на такте сжатия, считая по углу поворота коленчатого вала (в процессе эксплуатации воздухораспределитель не регулируется).
Так как золотниковое окно расположено на дуге 60°, то без учета ширины отверстий в корпусе золотник обеспечивает впуск воздуха в цилиндры на протяжении 120° поворота коленчатого вала, причем сразу в два цилиндра, например в Зл и во 2п (положение /). В положении // устанавливают золотник при заливке масла в цилиндры прибором ПЗМ. В этом положении, практически открыто только одно отверстие, что обеспечивает равномерное распределение масла по цилиндрам.
Для установки золотника в указанное положение необходимо:
— проворачивая коленчатый вал вручную по ходу вращения,
совместить деления (
) на градуированном диске 2 ,
соединительной муфты привода топливного насоса, что соответствует началу подачи топлива в 1л цилиндр. Зафиксировать это положение с помощью стрелки, укрепленной на картере двигателя, для чего подвести стрелку к ближайшему целому делению на шкале муфты, соединяющей двигатель с силовой передачей;
— повернуть коленчатый вал по ходу на 27° от сделанной отметки, если соединительная муфта находится в положении “Зима”, и 30°— в положении “Лето”. В этом положении в центре прорези в золотнике будет находиться отверстие, ведущее в Зп цилиндр (рис. 3, положение //);
— переместить стрелку-указатель до ближайшего целого деления на шкале муфты, соединяющей двигатель с силовой передачей, разметить шкалу на шесть делений по 60° и пронумеровать их;
— последовательно проворачивая коленчатый вал каждый раз на 60°, залить масло во все цилиндры с соблюдением установленных правил.
Заключение:
Система запуска двигателя сжатым воздухом не является основной, но позволяет более эффективно использовать аккумуляторные батареи. Так, если при первом запуске двигателя в зимних условиях нагрузка на аккумуляторные батареи максимальна, то в этот период эффективнее, на мой взгляд, использовать систему запуска двигателя сжатым воздухом. А уже при повторном запуске использовать аккумуляторные батареи. Эффективное использование системы запуска двигателя сжатым воздухом достигается при соблюдении правил её эксплуатации и своевременного технического обслуживания.
6. Приложение:
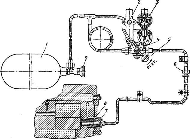
Рис. 1. Система воздушного пуска двигателя:
1-баллон; 2-зарядный штуцер; 3 - манометр редуктора; 4 - редуктор- 5 - рукоятка редуктора; 6- разъемное устройство, используемое при консервации двигателя; 7 - воздухораспределитель; 8 - воздухопровод; 9 - запорный вентиль

Рис. 2. Узел воздухораспределителя:
а-колпак; б-крышка; в - штифт; г - муфта валика; д - распределительный диск;
е — валик; 1, 2, 3, 4, 5 и S — отверстия для подачи воздуха в цилиндры
Рис.3. Схема работы воздухораспределителя.
|
Рис. 4. Воздухораспределитель: 1- корпус воздухораспределителя; 2 и 8- зажимы; 3- колпак; 4- прокладка; 5- упорные шайбы; 6- крышка; 7 и 16- поворотные уголки; 9 и 12- штифты; 10- валик; 11- пружина; 13- регулировочная втулка; 14- распределительный валик; 15- прокладка; а- полость; б- воздушные каналы; в- смазочные отверстия.
Литература:
1. Танковые двигатели В-2 и В-6, М., Военное издательство МО СССР, 1975 г.
2. Бронетранспортёры БТР- 50ПК и БТР 50П, М., Военное издательство МО СССР, 1972 г
