Пожарная опасность трубчатых печейРефераты >> Технология >> Пожарная опасность трубчатых печей
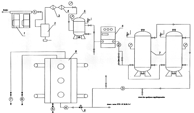
Технологическое оборудование:
1. Компрессорный модуль [2 шт.].
2. Блок влаго-маслоочистки воздуха
с конденсатоотводчиком.
3. Фильтр предварительной очистки.
4. Фильтр тонкой очистки.
5. Воздухосборник- В-4-1бГС-УХЛ1
(V=4м3, Р=5-6кГс/см2).
![]()
6. Мембранная азотная установка АПТ-М8.
7. Ресивер В-25-16ГС-УХЛIс азотом
(95-96 % об., V-25мэ ,Р=4,5-5,5 кГс/см2) [2шт.].
8. Печь ПТБ-10 №1.
![]()
9. Клапан с электроприводом
и дистанционным управлением
![]()
![]() | ||||||||
![]() | ||||||||
![]() | ||||||||
![]() | ||||||||
![]() | ||||||||
Технологические линии:
Воздух с компрессора. (Ду50)
Азот в ресиверы. (Д/25-50)
Азот из ресиверов в азотную
линию. (Ду 100-150)
Азот в печь ПТБ-10. (Ду 100-150)
Природный газ в печь ПТБ-10.
Вход нефти в печь ПТБ-10.
Выход нагретой нефти.
Позитивные особенности использования
установок азотного пожаротушения:
· Разрешения и рекомендации ГПС МВД РФ и Госгортехнадзора РФ.
Применение азота для пожаротушения разрешено нормами пожарной безопасности Государственной противопожарной службы МВД РФ (НПБ-22-96; 54-96; 51-96).
Мембранные азотные установки рекомендованы Госгортехнадзором РФ к применению на нефтегазо- добывающих предприятиях. Исполнение узлов установки АПТ не требует регистрации органами Госгортехнадзора (ПБ-10-115-96).
· Изменяет ли использование азота для тушения картину возникновения
причин пожара при проведении расследования?
Не изменяет абсолютно.
· Возможность нанесения объекту тушения дополнительного ущерба в
процессе ликвидации пожара?
Отсутствует.
· Экологическая чистота.
Отсутствуют вредные выбросы, твердые и жидкие отходы.
· Обеспечение специальной безопасности для персонала.
Не требуется применения специальных средств защиты персонала при работе
установки.
· Уровень квалификации персонала для допуска к эксплуатации установки.
Обычные требования допуска к работе на нефтегазодобывающем предприятии,
обучение персонала производится в ходе пуско-наладки установки на площадке
Заказчика.
· Простота эксплуатации.
Не требуется постоянное присутствие оператора, отсутствуют движущиеся части
и механизмы (кроме компрессоров).
· Возможность автоматизации.
Установка АГТТ обеспечена типовыми приборами автоматизации, сигнализации
и контроля. Режим работы установки поддерживается автоматически.
· Возможность увеличения производительности установки АПТ по азоту.
Достигается простым увеличением числа аппаратов и легко модернизи-
руется на действующей установке.
VIII. Извлечения из « Правил пожарной безопасности
в нефтяной промышленности (ППБО-85) » ( глава 7)
7.5.7. Установки с огневым подогревом
(трубчатые печи, блочные огневые нагреватели)
7.5.7.1. Площадка перед форсунками должна иметь твердое покрытие и уклон в сторону лотка, соединенного с промышленной канализацией через гидравлический затвор.
Для смыва пролившегося жидкого топлива должен быть устроен водопроводный стояк.
7.5.7.2. Пуск печей может быть разрешен только лицом, ответственным за эксплуатацию.
7.5.7.3. Система, подводящая газ к горелкам, должна быть испытана в соответствии с Правилами безопасности в газовом хозяйстве.
7.5.7.4. Запрещается при разжигании форсунок факелом пропитывать его ЛВЖ.
Тушить факел, используемый для растопки, следует в несгораемом ящике или в ведре с сухим песком.
7.5.7.5. На топливном трубопроводе должны быть установлены задвижка (на расстоянии не менее 10 м от фронта форсунок), позволяющая одновременно прекратить подачу топлива ко всем форсункам; редуцирующее устройство, отрегулированное на давление необходимое для горения горелок, а также конденсатосборник предупреждения попадания конденсата в систему автоматики, КИП и горелки.
Аварийная сигнализация автоматических устройств должна выведена в операторную.
7.5.7.6. Если установка не работает, топливный газопровод необходимо герметически отключить от печи и поставить заглушку. При отключении газопровода от печи нельзя открывать продувочные свечи, прежде чем будут надежно закрыты задвижки на всех горелках. Задвижки на продувочной свече должны быть открыты полностью.
7.5.7.7. Стационарная система паротушения печей всегда должна быть в исправном состоянии. Работа печи с неисправной системе паротушения не разрешается.
Коллектор пожаротушения должен быть расположен в удобном для подхода месте и окрашен в красный цвет.
7.5.7.8. Запрещается зажигать потухшие горелки печи от раскаленных панелей или кладки топки печи.
7.5.7.9. Запрещается разжигать горелки без предварительной продувки топки печи паром. Продувочные свечи обвязки печей должны быть выведены в безопасное место по согласованию с органами пожарного надзора.





