Схема внутрицехового электроснабжения до 1000 ВРефераты >> Технология >> Схема внутрицехового электроснабжения до 1000 В
Защита электродвигателей от перегрузки и от обрыва одной фазы осуществляется с помощью тепловых реле типа РТЛ, присоединяемых к пускателю перемычками.
Автоматические воздушные выключатели предназначены для автоматического размыкания электрических цепей при анормальных режимах (КЗ и перегрузках), для редких оперативных переключений (три-пять в час) при нормальных режимах, а также для защиты электрических цепей при недопустимых снижениях напряжения. По сравнению с предохранителями автоматические выключатели обладают рядом преимуществ: после срабатывания автоматический выключатель снова готов к работе, в то время как в предохранителе требуется замена калибровочной плавкой вставки, увеличивающая время простоя ЭП; более точные защитные характеристики; совмещение функций коммутации электрических цепей и их защиты; наличие у некоторых автоматических выключателей независимых расцепителей, позволяющих осуществлять дистанционное отключение электрической цепи и др.
В отличие от предохранителей в автоматических выключателях не применяется какой-либо специальной среды для гашения дуги. Дуга гасится в воздухе, поэтому автоматические выключатели называются воздушными. По числу полюсов автоматические выключатели бывают одно-, двух- и трёхполюсные, изготавливаются на токи до 6000 А при напряжении переменного тока до 660 В и постоянного тока до 1 кВ. Отключающая способность их достигает 200-300 кА. По времени срабатывания (
) различают: нормальные автоматические выключатели с
с; селективные с регулируемой выдержкой времени до 1 с; быстродействующие с
с.
Наименьший ток, вызывающий отключение автоматического выключателя, называют током трогания или током срабатывания, а настройку расцепителя автоматического выключателя на заданный ток срабатывания – уставкой тока срабатывания.
Автоматический выключатель имеет следующие основные элементы: контакты с дугогасительной системой; привод; механизм свободного расцепления; расцепители; вспомогательные контакты.
Основными элементами автоматических выключателей, выполняющими его защитные функции при анормальных режимах в цепи, являются расцепители, при срабатывании которых автоматический выключатель отключается мгновенно или с выдержкой времени. Автоматический выключатель может иметь один или несколько расцепителей.
По принципу действия расцепители разделяются на электромагнитные и термобиметаллические (тепловые). Существуют расцепители максимального тока, которые срабатывают при токе, большем уставки тока срабатывания; расцепители минимального напряжения, которые срабатывают, когда напряжение на катушке становится меньше заданного, и расцепители независимые, которые срабатывают без выдержки времени, когда на их катушку подано напряжение.
Для защиты от коротких замыканий применяют электромагнитные расцепители мгновенного действия или с выдержкой времени, обеспечивающей избирательность действия. Одновременная защита сети от КЗ и перегрузки осуществляется за счёт применения комбинированных расцепителей, состоящих из двух элементов – для защиты от КЗ и от перегрузок.
Как правило, автоматические выключатели имеют встроенные в них расцепители. На (рис. 17) представлены различные виды расцепителей, условно показанные для одного вида автоматического выключателя: тепловой (обычно биметаллический) или электронный инерционный расцепитель максимального тока с зависимой от тока выдержкой времени. Эти расцепители осуществляют защиту от перегрузки цепи. Тепловые расцпители (рис.17,а) срабатывают, как и тепловые реле магнитных пускателей за счёт изгибания биметаллической пластины 2, получающей тепло от нагревателя 3, присоединённого к сети через шунт 4, и воздействующей на отключающий механизм автоматического выключателя. Защитная характеристика теплового расцепителя подобна характеристике предохранителя; электромагнитный или электронный расцепитель максимального тока мгновенного срабатывания с независимым от тока временем срабатывания (рис. 17,б). Вид защиты с таким расцепителем иногда называют отсечкой. Она осуществляет защиту от токов КЗ, превышающих 6 – 10-кратные значения номинального тока электрической цепи. Расцепитель максимального тока состоит из катушки 1 и сердечника 5. Когда по катушке протекает ток КЗ, сердечник создаёт механическое усилие, что приводит к отключению автоматического выключателя. Ток срабатывания расцепителя максимального тока можно регулировать. Расцепитель может быть снабжён механизмом выдержки времени, зависимой или независимой от тока. Такие расцепители позволяют осуществить селективную защиту; расцепитель минимального напряжения, состоящий из катушки 1 с сердечником 5 и пружины 6 (рис. 17в) и срабатывающий при недопустимом снижении напряжения в цепи (30-50 %
). Такие расцепители применяют для электродвигателей, сомозапуск которых нежелателен при самопроизвольном восстановлении питания; независимый расцепитель (рис. 17г), служащий для дистанционного отключения автоматического выключателя кнопкой 7 и для автоматического отключения цепи при срабатывании внешних защитных устройств.
Первые два вида расцепителей максимального тока устанавливаются во всех фазах автоматического выключателя, остальные – по одному на выключатель.
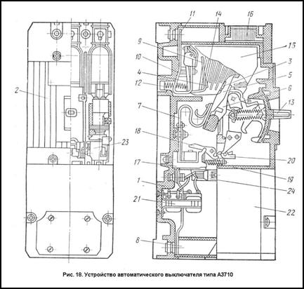
В настоящее время в цеховых электрических сетях напряжением до 1 кВ применяются автоматические выключатели различных конструкций: типов А3700, АВМ, АЕ-20, <<Электрон>> и др. Автоматические выключатели серии А3700 включают типы А3710, А3720, А3730, А3740 на номинальные токи соответственно 160, 250, 400 и 630 А.
На (рис. 18) показан выключатель серии А3700: 1-корпус из пластмассы, на котором смонтированы детали и сборочные узлы, 2-крышка, закрывающая детали выключателя (кроме зажимов). Коммутирующее устройство состоит из подвижных 3 и неподвижных 4 контактов, изготовленных из металлокерамической композиции на основе серебра. Подвижные контакты 3 припаяны к контактодержателям 5, которые укреплены на общей изоляционной траверсе 6 и связаны с механизмом управления. Контактодержатели 5 электрически соединены гибким соединением 7 с максимальными расцепителями и выводами 8 для присоединения внешних проводников со стороны подвижных контактов. Неподвижные контакты 4 припаяны к малоподвижным контактодержателям 9, которые электрически соединены с неподвижными скобами 10 и имеют вывод 11 для присоединения внешних проводников со стороны неподвижных контактов. Контактодержатели 9 опираются на пружины 12. Механизм управления выключателем выполнен по принципу ломающихся рычагов и устроен так, что обеспечивает моментальное замыкание и размыкание контактов 3 и 4 при оперировании выключателем, а также моментное размыкание контактов при автоматическом срабатывании независимо от того, удерживается ли рукоятка 13 выключателя оператором во включенном положении или нет.
