Проектирование инструментально-штамповочного цеха машиностроительного заводаРефераты >> Строительство >> Проектирование инструментально-штамповочного цеха машиностроительного завода
Содержание
Общая часть: исходные данные и район строительства
1. Объёмно-планировочное и конструктивное решения
1.1 Генеральный план
2. Архитектурно-строительная часть
2.1 Фундаменты и фундаментные балки
2.2 Фундаментные балки
2.3 Колонны
2.4 Стропильные конструкции
2.5 Покрытия
2.6 Фонари
2.7 Подкрановые балки
2.8 Стены
2.9 Антикоррозийные и антисептические мероприятия
2.10 Наружная и внутренняя отделка
2.11 Ведомость полов
2.12 Связи
2.13 Окна, ворота, двери
3. Светотехнический расчёт
4. Расчёт административных бытовых помещений
5. Экологические мероприятия
Общая часть: исходные данные и район строительства
Проектируемое промышленное здание располагается в г. Липецк
Климатический район - II
Климатический подрайон - IIВ
Температура воздуха наиболее холодных суток, °С - 38
Температура воздуха наиболее холодной пятидневки, °С - 27
Продолжительность отопительного периода, сут. - 202
Средняя месячная относительная влажность воздуха наиболее холодного месяца, % - 85
Средняя месячная относительная влажность воздуха наиболее теплого месяца,% - 66
Количество осадков за апрель - октябрь, мм - 382
Количество осадков за ноябрь - март, мм - 248
Преобладающее направление ветра за декабрь - февраль - ЮЗ
Преобладающее направление ветра за июнь - август - СЗ
Минимальная из средних скоростей ветра по румбам за июль, м/с - 4,1
Максимальная из средних скоростей ветра по румбам за январь, м/с, - 5,9
Данные взяты по СНиП 23-01-99 "Строительная климатология", Таблица 1 - Климатические параметры холодного периода года, Таблица 2 - Климатические параметры тёплого периода года.
Нормативный скоростной напор ветра - 30 кг/м2
Расчетная снеговая нагрузка - 120 кг/м2
Данные взяты по СНиП 2.01.07-85 "Нагрузки и воздействия".
Класс по функциональной пожарной опасности - Ф 5.1
Класс конструктивной пожарной опасности - С0
Степень огнестойкости здания - I
Данные взяты по СНиП 21-01-97 "Пожарная безопасность зданий и сооружений".
1. Объёмно-планировочное и конструктивное решения
Проектируемое промышленное здание одноэтажное и имеет размер в осях 66,75х49 м.
Здание состоит из 4 пролётов, размерами:
ширина пролётов, м: В1 =18, В2 =12, В3 =18, В4 =18;
высота пролётов, м: Н1 =9,6; Н2 =10,8; Н3 =9,6; Н4 =14,4;
длинна пролётов, м: L1 =48; L2 =48; L3 =48; L4 =48;
По планировочному решению:
в первом пролёте расположен склад литья и ковок по взрывоопасности относящиеся к типу Д
во втором пролёте расположены заготовительный, механический и сборочный участки по взрывоопасности относящиеся к типу Д
в третьем пролёте расположены электромонтажный участок по взрывоопасности относящийся к типу Г и участок окраски относящийся к типу А
в четвёртом пролёте расположены участки контрольно-приёмочный и упаковки по взрывоопасности относящиеся к типу Д
Конструктивная схема здания - несущий каркас. Уровень чистого пола принят на отметке 0,000.
Типы конструкций:
Каркас - железобетонный (колонны, фундаментные балки, подкрановые балки)
Стены - облегчённые металлические панели по серии 1.432.2-32.93
Стропильные конструкции - железобетонные малоуклонные безраскосные фермы
Конструкция покрытия - железобетонные ребристые плиты 1.465.1-17
Фундаменты - столбчатые монолитные из железобетона по серии 1.412
Двери и ворота - металлические
Окна - из алюминиевых сплавов по серии 1.436.4-20
Полы - бетонные, асфальтобетонные и на основе полимеров
1.1 Генеральный план
Проектируемый участок размером 300х300м. Генеральный план выполнен по типу глубинной планировки с учётом места расположения участка, технологических процессов, транспортных потоков и рельефа местности.
Производственная территория промышленного предприятия разделена на четыре зоны:
Предзаводская, включает вспомогательные здания, предназначенные для размещения администрации, медицинских учреждений, лабораторий, бытовых корпусов, проходных, стоянок для транспорта.
Производственная, в которой сосредотачиваются производственные цехи основного и вспомогательного назначения.
Подсобная, в которой располагаются энергетические объекты, подземные и наземные инженерные коммуникации.
Складская, в которой располагаются здания для хранения материалов, заготовок, готовой продукции, транспортные здания и сооружения.
На проектируемом генеральном плане связь между отдельными зонами соответствует технологическому процессу, а производственный поток имеет наименьшую протяжённость.
В предзаводской зоне запроектированы следующие здания и сооружения: контрольно пропускной пункт, столовая, медицинское учреждение, административно бытовой корпус, автомобильная парковка вместимостью 120 автомобилей и ж. д. диспетчерская. В производственной зоне располагаются инструментально-штамповочный цех, ремонтные автотранспорта и технического оборудования. В подсобной зоне расположены теплоэлектроцентраль и электростанция.
На плане показана трассировка автомобильных дорог и магистралей и запроектированы пешеходные и пассажирские пути, не пересекающиеся с грузовыми путями.
По вертикальной планировке все сооружения располагаются в наземной и надземной зонах.
Генеральный план выполнен по всем требованиям в соответствии с СНиП II-89-80* "Генеральные планы промышленных предприятий" и ГОСТ 21.508-93 "Правила выполнения рабочей документации генеральных планов предприятий, сооружений и жилищно-гражданских объектов"
2. Архитектурно-строительная часть
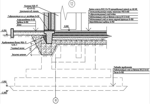
2.1 Фундаменты и фундаментные балки
Фундаменты - столбчатые монолитные из железобетона по серии 1.412. Под спаренные колоны индивидуального изготовления с учётом характеристик фундаментов по серии 1.412.
Железобетонные конструкции запроектированы по СНиП 52-01-2003 "Бетонные и железобетонные конструкции". Опалубка инвентарная стальная из стали класса Ст3 по ГОСТ 25781.
Бетон, используемый для монолита по ГОСТ 26633-91:
по классу прочности В30
по классу морозостойкости F200
марка щебня - 800, для бетона по классу прочности В30
Каркасы из арматуры, соединения арматурных стержней, закладные детали и сварные соединения запроектированы по ГОСТ 10922-90 "Арматурные и закладные изделия сварные, соединения сварные арматуры и закладных изделий железобетонных конструкций"
Класс стали применяемый для арматуры и закладных деталей А-IV.
Гидроизоляция фундамента - отмостка из асфальтобетона (класса прочности В15) h = 30 мм на на уплотнённом щебне h = 100 мм. Горизонтальная гидроизоляция предусмотрена на отметке 0.000 h = 30 мм из цементно-песчаного раствора 1: 2.
2.2 Фундаментные балки
Фундаментные балки железобетонные типа ФБ6 по серии 1.415-1.
Внутренние и наружные самонесущие стены опираются на фундаментные балки, посредством которых передают нагрузку на фундаменты колонн каркаса. Фундаментные балки укладывают на специально заготовленные бетонные столбики, устанавливаемые на обрезы фундаментов.
