Проектирование основания и фундамента 13-этажного жилого дома в городе Великий УстюгРефераты >> Строительство >> Проектирование основания и фундамента 13-этажного жилого дома в городе Великий Устюг

5.2 Расчет свайного фундамента под колонну 13 этажного здания
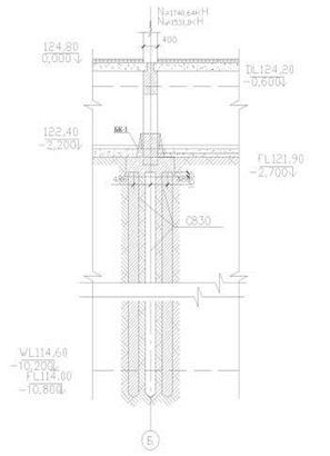
Ширина ростверка:
bp=(0,9+2х0,1+0,3)=1,4 м

- коэффициент, зависящий от вида свайного фундамента, для ленточного под стену -7,5, для отдельно стоящего -9
n – количество свай
Фактическая нагрузка на одну сваю:
1,2 – коэффициент перехода от 2 группе предельных состояний к 1 группе п.с.
Qp=1,3х1,3х24х0,5=20,28
Qк=0,4х0,4х24х2,3=8,83
Qn=0,82х0,6х22=8,44

5.3 Расчет свайного фундамента под наружную стену 12-ти этажного жилого дома по II предельному состоянию
Определяем ширину условного фундамента под наружную стену 13 этажного здания:
Вусл=d+2lсвхtgαср+Ср
Где d=0,03 – диаметр сваи, м
lсв=7,9 – длина сваи, м

tgαср=tg6o=0,105
Ср=0, так как однорядная
Вусл=d+2lсвхtgαср+Ср=0,03+2х7,9х0,105+0=1,68 м
Объем условного свайного фундамента:
V=1,4х10,2=14,28 м3
Объем ростверка:
V=0,5х1,2х1=0,6 м3
Объем стеновой части стены:
V=0,6х2,4 =1,44м3
Объем ростверка и объем стеновой части стены:
Vр=1,44+0,6=2,04 м3
Объем сваи на 1 пог. м. свайного фундамента:
Vсв=0,824х0,09х7,9=0,585 м3
Vобщ=0,585+2,04=2,62 м3
Объем грунта на 1 пог. м. условного свайного фундамента:
Vобщ=V-Vобщ=14,28–2,62=11,66 м3
Вес грунта на 1 пог. м. свайного фундамента:
Gгр=
Gф=2,62х24=62,88кН
Аусл=1,68х1=1,68 м2
Расчетная нагрузка, допускаемая на сваю по:

Расчетное давление:
1.
2.
3.
4.
5. Kz=1 (так как ширина ленточного фундамента b≤10 м)
6. b=1680 мм
7.
8. d1=hs+hsfx(γcf/γII’)= 7,9+0,2х (22/19,25)=8,13 м
9. dB=2,1–0,5+0,2=1,8 м
6. Расчет осадок свайного фундамента методом послойного суммирования
= 20 кН/м3 – для песка средней крупности и плотности
Так как, нижележащие грунты не обладают расчетным сопротивлением Ro, принимаем угол откоса – = 450.
6.1 Расчет осадки ленточного фундамента под наружную стену
Ширина условного фундамента:
По эпюре природных давлений определяем природное давление в уровне условного свайного фундамента zgo и zgo:
zgo=10,2х20,6=210,12 кПа.
zgo=483,5–210,12=273,38кПа.
![]()
=0,98
Результаты расчета осадки фундамента песчаного слоя
|
№п.п. |
ξ |
|
hi, см |
α |
σzp кПа |
σzg, o кПа |
0,2σzg кПа | |
|
1 |
0 |
0 |
33,6 |
1 |
273,38 |
210,12 |
42,024 | |
|
2 |
0,4 |
0,336 |
0,977 |
267,0923 |
210,12 |
42,024 | ||
|
3 |
0,8 |
0,672 |
0,881 |
240,8478 |
210,12 |
42,024 | ||
|
4 |
1,2 |
1,008 |
0,755 |
206,4019 |
210,12 |
42,024 | ||
|
5 |
1,6 |
1,344 |
0,642 |
175,51 |
210,12 |
42,024 | ||
|
6 |
2 |
1,68 |
0,55 |
150,359 |
210,12 |
42,024 | ||
|
7 |
2,4 |
2,016 |
0,477 |
130,4023 |
210,12 |
42,024 | ||
|
8 |
2,8 |
2,352 |
0,42 |
114,8196 |
210,12 |
42,024 | ||
|
9 |
3,2 |
2,688 |
0,374 |
102,2441 |
210,12 |
42,024 | ||
|
10 |
3,6 |
3,024 |
0,337 |
92,12906 |
210,12 |
42,024 | ||
|
11 |
4 |
3,36 |
0,306 |
83,65428 |
210,12 |
42,024 | ||
|
12 |
4,4 |
3,696 |
0,28 |
76,5464 |
210,12 |
42,024 | ||
|
13 |
4,8 |
4,032 |
0,258 |
70,53204 |
210,12 |
42,024 | ||
|
14 |
5,2 |
4,368 |
0,239 |
65,33782 |
210,12 |
42,024 | ||
|
15 |
6 |
5,04 |
0,223 |
60,96374 |
210,12 |
42,024 | ||
|
16 |
6,4 |
5,376 |
0,208 |
56,86304 |
210,12 |
42,024 | ||
|
17 |
6,8 |
5,712 |
0,196 |
53,58248 |
210,12 |
42,024 | ||
|
18 |
7,2 |
6,048 |
0,185 |
50,5753 |
210,12 |
42,024 | ||
|
19 |
7,6 |
6,384 |
0,175 |
47,8415 |
210,12 |
42,024 | ||
|
20 |
8 |
6,72 |
0,166 |
45,38108 |
210,12 |
42,024 | ||
|
21 |
8,2 |
6,888 |
0,158 |
43,19404 |
210,12 |
42,024 | ||
|
22 |
8,38 |
7,0392 |
0,154 |
42,10052 |
210,12 |
42,024 | ||
|
23 |
8,39 |
7,0476 |
0,15372 |
42,02397 |
210,12 |
42,024 | ||
|
24 |
8,4 |
7,056 |
0,15 |
41,007 |
210,12 |
42,024 |
