Проектирование основания и фундамента 13-этажного жилого дома в городе Великий УстюгРефераты >> Строительство >> Проектирование основания и фундамента 13-этажного жилого дома в городе Великий Устюг
6.2 Определение деформационных характеристик грунтов, входящих в активную зону сжатия для фундамента под наружную стену 13 этажного здания
Определение модуля деформации по штамповым испытаниям.
W = 0.88 – безразмерный коэффициент, зависящий от жесткости и формы штампа.
=0.3 коэффициент относительной поперечной деформации для песка.
d = 1000 мм – диаметр штампа.
= 16.00 – 7.98 – приращение осадки, соответствующее принятому интервалу напряжений.
Вывод: Модуль деформации по штамповым испытаниям для песка средней плотности средней крупности насыщенного водой – 9985,03 кПа.
Определение модуля деформации по компроссионным испытаниям
По эпюре природных напряжений:
zgo=210,12кПа.
zp=273,38 кПа.
P=483,5 кПа
Коэффициент сжимаемости mo=(lz-l’)/zp =(0,5857–0,5838)/273,38=6,9х10-5 кПа-1
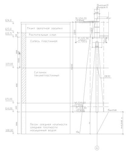
6.3 Расчет осадки свайного фундамента под наружную стену 13 этажного жилого дома
(0,8/10724)*((273,38+267,09)/2+(267,09+240,84)/2+(240,84+206,4)/2+(206,4+175,51)/2+(175,51+150,35)/2+(150,35+130,4)/2+(130,4+114,81)/2+(114,81+102,24)/2+(102,24+92,13)/2+(92,13+83,65)/2+(83,65+76,54)/2+(76,54+70,53)/2+(70,53+65,33)/2+(65,33+60,96)/2+(60,96+56,86)/2+(56,86+53,58)/2+(53,58+50,75)/2+(50,57+47,84)/2+(47,84+45,38)/2+(45,38+43,19)/2+(43,19+42,10)/2+(42,10+42,024))*33,6=5,9 см ≤ 8 см.
S=5,9 см ≤ 8 см.
Что удовлетворяет требованиям СНиП для данного типа зданий.
6.4 Расчет осадок методом эквивалентного слоя свайного фундамента под наружную стену 13 этажного здания. (Расчет осадок методом Цытовича Н.А.)
кПа-1
м
-для средней жесткости
Список использованной литературы
1. СНиП 2.01.07–85. Нагрузки и воздействия. Госстрой СССР, 1986 г.
2. СНиП 3.02.01–87. Земляные сооружения, основания и фундаменты, Госстрой СССР, 1987 г.
3. СНиП 2.02.03–85. Свайные фундаменты, М, 1986 г. – 48 с.
4. Методическое пособие Часть 1, Часть 2.
