11-этажный жилой дом с мансардойРефераты >> Строительство >> 11-этажный жилой дом с мансардой
Отопление. В убежище предусматривается отопление. Оно осуществляется от общей системы (отопительной системы здания). Для регулирования температуры и отключения отопления в отопительной системе устанавливают запорную арматуру (трубы окрашиваются в коричневый цвет).
В помещениях убежища для укрываемых людей устанавливают двухъярусные скамьи и нары: нижние для сидения из расчета 0,45х0,15 м, верхние для лежания 0.55х1,8 м на человека. Высота скамей для сидения 0.45 м; расстояние по вертикали от верха скамей до мест второго яруса для лежания 1,1 м. По отношению к общей вместимости убежища мест для лежания должно быть 20%. В убежите должны быть дозиметрические приборы, приборы химическом разведки. защитная одежда, средства тушении пожара, аварийный запас инструмента, средства аварийного освещения. запас продовольствия и воды, санитарное имущество, а также документы, определяющие характеристику и правила его содержания, паспорт, план и табель оснащения, схемы внешних и внутренних сетей с указанном отключающих устройств, журнал проверки состояния убежища.
Организация обслуживания убежищ и военное время возлагается на службу убежищ и укрытии предприятии, личный состав которых укрывается в этих убежищах. На каждое убежище выделяется звено обслуживания во главе с командиром звена, который является комендантом убежища.
Содержание и использование убежищ. В городах, как правило, строят убежища двойного назначения, которые используют и мирное время для нужд народного хозяйств, а в военное - для укрытия людей. Это позволяет значительно удешевить эксплуатационные расходы на содержание защитных сооружений.
В мирное время убежища можно использовать для хозяйственных нужд, пол помещения культурно-бытового назначения, красные уголки, различные конторы, небольшие мастерские, классы для занятий различных кружков, учебные пункты Г0, стрелковые тиры. На крупных предприятиях а убежищах можно разместить бытовки, складские помещения, стоянки электрокаров, учреждения общественного питания и др.
Двойное использование убежищ необходимо предусматривать еще на стадии их проектирования. Использование убежищ в мирное время для производственных и хозяйственных нужд не должно нарушать их защитных свойств. Перевод таких помещений на режим военного времени должен обеспечиваться в возможно короткие сроки.
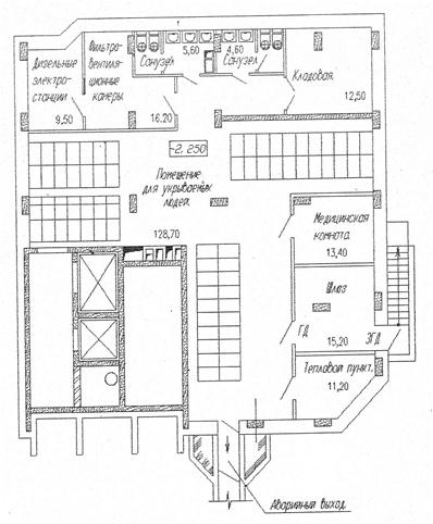
Для данного проекта, при следующих исходных данных:
- вместимость укрытия 140 чел;
- размеры здания в плане 27x20,6 м, общая площадь подвального помещения 556 м2;
- в подвальном помещении существует электрическое освещение;
- вход расположен с торца здания;
- пол подвала находится на 2,8 м ниже поверхности грунта;
- высота перекрытия над подвалом 2,5 м.
Рисунок 13.3 План убежища
Заключение
Дипломный проект "11-этажный жилой дом с мансардой" разработан в соответствии с заданием на дипломное проектирование. Особое внимание при разработке проекта было уделено расчётно-конструктивному разделу. Расчёты выполнены с использованием программного комплекса "LIRA v.9.0". Проведены антисейсмические мероприятия.
Разработана технологическая карта реконструкции здания, выполнены расчёты по организации и управлению строительства. В проекте производства работ разработан сетевой график.
Все расчеты произведены в соответствии с нормативной документацией, в соответствии с требованиями СНиП.
Литература
1. Технология строительных процессов: Учеб./ А.А. Афанасьев, Н.Н. Данилов, В.Д. Копылов и др.; Под ред. Н.Н. Данилова, О.М. Терентьева. – 2-е изд., перераб. – М.: Высшая школа., 2000. – 464 с., ил.
2. Технология строительных процессов: Учеб./ А.А. Афанасьев, Н.Н. Данилов, В.Д. Копылов и др.; Под ред. Н.Н. Данилова, О.М. Терентьева. – 2-е изд., перераб. – М.: Высшая школа., 2000. – 464 с., ил.
3. Атаев С.С. Технология индустриального строительства из монолитного бетона. – М.: Стройиздат, 1989. – 336 с.: ил.
4. ЕНиР. Сб. Е4. Монтаж сборных и устройство монолитных железобе-тонных конструкций. Вып. 1. Здания и промышленные сооружения/ Госстрой СССР. – М.: Стройиздат, 1987. – 64 с.
5. ЕНиР. Сб. Е1. Внутрипостроечные транспортные работы/ Госстрой СССР. – М.: Прейскурантиздат, 1987. – 40 с.
6. ЕНиР. Сб. Е22. Сварочные работы. Вып. 1. Конструкции зданий и промышленных сооружений/ Госстрой СССР. – М.: Прейскурантиздат, 1987. – 56с.
7. Методические указания к курсовому и дипломному проектам по возведению монолитных железобетонных конструкций по дисциплинам «Технология строительных процессов» и «технология возведения зданий и сооружений» для студентов всех форм обучения специальности 29.03 – Промышленное и гражданское строительство./ Краснодар. политехн. ин-т; сост. Р.Р. Степанов, И.М. Степанов. Краснодар, 1993. 63 с.
8. Монтаж строительных конструкций: Методические указания к выбору средств механизации монтажных работ для студентов всех форм обучения специальностей 29.03, 29.04 и 29.05 по предмету «Технология возведения зданий и сооружений»/ Сост. Р.Р. Степанов, И.М. Степанов, В.С. Дрешпак; Кубанск. гос. технол. ун-т. Каф. технологии, организации и экономики строительства. – Краснодар: Изд-во КубГТУ, 2001 – 43 с.
9. Методические рекомендации по выполнению контрольной работы по дисциплине «Техническое нормирование и сметное дело в строительстве» для студентов заочной формы обучения специальности 29.03 – «Промышленное и гражданское строительство»/ Кубан. гос. технол. ун.; сост. В. А. Пархоменко. – Краснодар, 2000, - 40 с.
10. Нормативы по теплозащите зданий СНКК-23-302-2000. Краснодар 2001
11. СНиП 2.01.01.82 – Строительная климатология и геофизика. Госстрой России, Москва 1999.
12. СНиП II-3-79* – Строительная теплотехника. Минстрой России 1995.
13. Проспекты и каталоги по опалубочным системам PERI.
14. СНиП 2.01.07-86* Нагрузки и воздействия. Нормы проектирования. М., 1988 г.
15. СНиП 2.02.01-83 Основания зданий и сооружений. Нормы проектирования. М., 1988 г.
16. СНиП 2.01.01-82. Строительная климатология и геофизика. Стройиздат, 1983 г.
17. СНиП 2.01.02-85 Противопожарные нормы. Нормы проектирования. М., 1986 г.
18. СНиП II-4-79 Естественное и искусственное освещение. Нормы проектирования. М., 1980 г.
19. СНиП 12-03-01, 12-04-02. Безопасность труда в строительстве. Ч. 1,2 – М.: Стройиздат, 2001, 2002 гг.
20. СНиП 2.09.04-87 Административные и бытовые здания. М.: Стройиздат, 1987 г.
21. Конструкции гражданских зданий. Т.Т. Маклакова, В.П. Житков., М., Стройиздат, 1986 г.
22. Краткий справочник строителя. А.И. Нифонтов, В.В. Рудаков., Киев, 1987 г.
23. Железобетонные конструкции. Общий курс. В.Н.Байков, Э.Е. Сигалов., М., Стройиздат, 1991 г.
24. Проектирование и расчет железобетонных и каменных конструкций. Н.Н. Попов, А.В. Забегаев. Москва «Высшая школа», 1980 г.
25. Справочник проектировщика. М Стройиздат, 1987 г. Под ред. Мурашева В.А.
