Земляные работы при планировке и разработке строительной площадкиРефераты >> Строительство >> Земляные работы при планировке и разработке строительной площадки
Окончательно принимаем прицепной решетчатый каток ЗУР-25.
Техническая характеристика катка ЗУР-25
|
Тип катка |
прицепной |
|
Ширина уплотняемой полосы, м |
2,9 |
|
Толщина уплотняемого слоя, м |
0,5 |
|
Марка трактора |
Т-100 |
|
Мощность двигателя трактора, кВт (л.с.) |
79 (108) |
|
Масса катка, т |
15 |
Так как для уплотнения отсыпаемого бульдозерами грунта катку достаточно 7.29 часов в смену, то оставшееся время используется для дополнительных проходок. Число проходок будет равно:
3.Разработка котлована.
3.1 Подсчет объема работ в котловане.
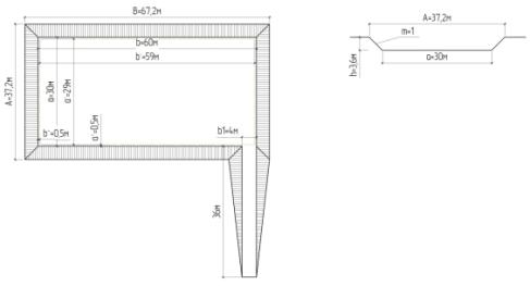
Грунт песок, глубина котлована h=3.6 м, размеры котлована по дну a=30м, b=60м. Коэффициент откоса m=1.
Размеры котлована по верху: А=а+2mh=30+2∙1∙3.6=37.2м
В=b+2mh=60+2∙1∙3.6=67.2м
Объем котлована:
Размеры подземной части сооружения в плане:
Где а
=b
=0.5м – рабочие зазоры на уровне дна котлована.
Объем пазух для обратной засыпки:
Объем грунта для обратной засыпки:
Для въезда и выезда техники устраивается однополосная въездная траншея шириной b1=4м, уклоном 1:10, т.е. mʹ=10. Объем въездной траншеи:
Объем грунта, оставляемого для обратной засыпки траншеи:
Общий объем грунта, оставляемого для обратной засыпки:
Объем грунта, вывозимого за пределы строительной площадки:
3.2 Выбор экскаватора.
На разработку грунта в котловане берем 18 смен.
Объем грунта, разрабатываемого экскаватором:
Требуемая норма времени в машино-часах на разработку 100
грунта:
По этой величине по таблицам ЕНиР выбираются возможные марки экскаваторов. Для выбора наиболее экономичного варианта рассматриваются два экскаватора. Один – оборудованный прямой лопатой, второй – обратной. Нормы времени выбранных экскаваторов должны быть наиболее близки к требуемой. Норма времени принимается по ЕНиР с учетом, что грунт песок с объемной массой 1,82 т/м3 для разработки экскаватором является грунтом I группы. Экскаваторы выбираются с гидравлическим приводом, оборудованные ковшом с зубьями, погрузка грунта в основном в транспорт.
Таблица 7. Выбор наиболее экономичного варианта экскаватора
|
№ |
§ ЕНиР |
Марка экскаватора |
НВР, маш-час |
|
|
руб. |
|
1 |
Е2-1-8 |
ЭО-4321 прямая лопата q=0.8 м3 |
1.1 |
50 |
|
550 |
|
2 |
Е2-1-9 |
ЭО-4121А обратная лопата q=0.65 м3 |
1.6 |
42 |
|
672 |
Окончательно принимаем экскаватор ЭО-4121А обратная лопата q=0.65 м3, так как норма времени наиболее близка к требуемой.
3.3 Выбор автосамосвалов для вывоза грунта
Выбор возможных марок автосамосвалов выполнен в табл. 8. Для заданного по исходным данным грунта (песок с объемной плотностью γ=1,82 т/м3) принято: группа грунта I, Кн=0.9, Кр=1.12. Для выбранного экскаватора ЭО-4121А обратная лопата q=0.65 м3,
Таблица 8. Выбор автосамосвала по грузоподъемности
|
|
|
Марка автосамосвала |
|
Недогруз (-) или перегруз (+) |
|
6 |
5.68 |
Маз 503 |
7 |
-19% |
|
7 |
6.63 |
МАЗ 503 |
7 |
-5% |
|
8 |
7.57 |
МАЗ 503 |
7 |
+8% |
|
9 |
8.52 |
КАМАЗ 5511 |
10 |
-15% |
|
10 |
9.46 |
КАМАЗ 5511 |
10 |
-5% |
|
11 |
10.41 |
КАМАЗ 5511 |
10 |
+4% |
Для дальнейшего расчета принимаются автосамосвалы МАЗ 503 и КАМАЗ 5511, для которых отклонение от фактической грузоподъемности не превышает 10%.
