Проект производства работ на строительство трехэтажного жилого дома в г. КалугаРефераты >> Строительство >> Проект производства работ на строительство трехэтажного жилого дома в г. Калуга
3.4 Объединение работ в комплексы по циклам
|
№ комплекса |
№ п/п |
Наименование работ |
Кол-во чел. Дни. |
Всего по комплексам |
|
1 |
2 |
3 |
4 |
5 |
|
Нулевой цикл | ||||
|
1 |
1 |
Разработка грунта экскаватором |
8,5 |
8,5 |
|
2 |
1 |
Добор грунта вручную |
12,4 |
17,4 |
|
2 |
Устройство песчаной подушки |
5,4 | ||
|
3 |
1 |
Монтаж фундаментных подушек |
8,1 |
49,1 |
|
2 |
Монтаж фундаментных блоков |
41 | ||
|
4 |
1 |
Устройство горизонтальной гидроизоляции |
5,2 |
42,1 |
|
2 |
Устройство вертикальной гидроизоляции |
4,5 | ||
|
3 |
Засыпка пазух |
33 | ||
|
5 |
1 |
Подсыпка грунта под полы подвала |
15,8 |
24,1 |
|
2 |
Монтаж перекрытий над подвалом |
6 | ||
|
3 |
Заливка швов |
2,3 | ||
|
Итого |
141,2 | |||
|
Надземный цикл | ||||
|
1 Этаж | ||||
|
6 |
1 |
Кирпичная кладка наружных стен |
63,6 |
66,04 |
|
2 |
Устройство подмостей |
1,5 | ||
|
3 |
Заполнение оконных проёмов |
1,04 | ||
|
7 |
1 |
Кирпичная кладка внутренних стен |
39,6 |
68,33 |
|
2 |
Устройство подмостей |
0,9 | ||
|
3 |
Кирпичная кладка перегородок в 1/2 кирпича |
7,1 | ||
|
4 |
Устройство подмостей |
0,5 | ||
|
5 |
Монтаж плит перекрытия |
7,7 | ||
|
6 |
Монтаж лестничных площадок |
0,2 | ||
|
7 |
Монтаж лестничных маршей |
0,2 | ||
|
2 Этаж | ||||
|
8 |
1 |
Кирпичная кладка наружных стен |
63,6 |
66,04 |
|
2 |
Устройство подмостей |
1,5 | ||
|
3 |
Заполнение оконных проёмов |
1,04 | ||
|
9 |
1 |
Кирпичная кладка внутренних стен |
39,6 |
68,05 |
|
2 |
Устройство подмостей |
0,9 | ||
|
3 |
Кирпичная кладка перегородок в 1/2 кирпича |
7,1 | ||
|
4 |
Устройство подмостей |
0,5 | ||
|
5 |
Монтаж плит перекрытия |
7,7 | ||
|
6 |
Монтаж лестничных площадок |
0,2 | ||
|
7 |
Монтаж лестничных маршей |
0,2 | ||
3.6 Выбор средств механизации
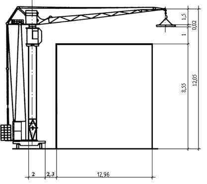
Вертикальная привязка крана КБ-100АС
Высота крана:
Hкр=Hзд+Hзап+Нзл+Нстр=8,55+1+0,22+3=196+2.3+
=17.51
Технические характеристики:
Грузоподъемность - 5 тон.
Вылет стрелы – 20 м.
Высота подъёма – 33 м.
Скорость – 10-2 м/с
Подъём груза – 0,5
Посадка груза - 0,1
Скорость перемещения – 1,8
Установленная мощность электродвигателя 38,2 кВт
Подъёмник ТП-2 (С-447)
Подъёмник предназначен для подъема строительных материалов при строительстве зданий до 6 и 9 этажей. Подъёмник стационарный, при работе мачта подъёмника крепится к стене специальными креплениями.
Модель ТП-2 (С-447)
Грузоподъемность – 0,5т
