Проект производства работ на строительство трехэтажного жилого дома в г. КалугаРефераты >> Строительство >> Проект производства работ на строительство трехэтажного жилого дома в г. Калуга
Высота подъёма до 17м
Скорость подъёма груза 0,38 м/с
Мощность электродвигателя 3 кВт
Габарит груза платформы:
Длина – 1,5м
Ширина – 1м
Масса – 1400кг
4. Разработка технологической карты
4.1 Область применения карты
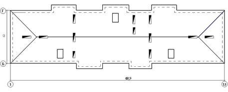
Технологическая карта разработана на устройство стропильной крыши трёх этажного дома с размерами в осях 14,4м и 48,9м. Площадью скатов 692,3м²
4.2 Технико-экономические показатели
Трудоемкость на весь объём работ:
Нормативная: 361,5чел-час.
Принятая: 320чел-час.
Выработка на одного рабочего в смену:
Нормативная: 19,56м²
Принятая: 17,31м²
Продолжительность выполнения работ.
Объём работ 692,3м²
4.3 Технология выполнения строительного процесса
До начала монтажа стропильной системы должны быть выполнены все работы по монтажу чердачного перекрытия. Работу по установке стропилначинают с укладки по внутренним стенам лежней, а по наружным мауэрлатов. Мауэрлаты предварительно антисептируют путём глубокой пропиткой или обмазки пастойантисептированные мауэрлаты укладывают с прокладкой по ним двух слоёв толя со стороны стены.
На лежни устраивают стойки через 6 м, временно раскрепляют схватками, ставят подкосы и укладывают прогон. Затем на прогоне и мауэрлатах производят разбивку положения стропильных ног. Врубка стропильных ног в мауэрлат производится врубкой в зуб. У конька стропильные ноги попарно соединяют в пол дерева. Для придания пространственной жёсткости стропильных ног к ним крепят на гвоздях ригели, скрепляя каждую пару стропильных ног с обеих сторон. Далее после установки стропильных ног по ним устраивают обрешётку. Обрешётка выполняется из бруска сечением 50мм × 50 мм. Бруски обрешётки укладываются вдоль конька через 510мм.
На карнизных свесах выполняется сплошная дощатая обрешётка. Устройство обрешётки начинают сразу же вслед за установкой первых четырех – пяти стропильных ног.
3.4 Подсчёт объёмов работ
Sкр=2Sтр+2Sтрап
Sтр=14×7=49 м²
2Sтр=Sтр+Sтр=49+49=98 м²
Sтрап= H(a+b)/2=7(48,9×36)/2=297,15 м²
2Sтрап=297,15*2=594,3 м²
Sкр=2Sтр+2Sтрап=98+594,3=692,3 м²
4.5 Калькуляция трудовых и денежных затрат
|
Обоснование ЕНиР и д.р. |
Состав работ |
Ед. изм. |
Объём работ |
Норма времени на ед. изм. Чел-час. |
Расценка на ед. изм. Руб-коп. |
Затраты труда на весь объём работ чел-час. |
Стоимость затрат труда на весь объём работ. |
|
§ 6-1-8 2 |
Укладка на место мауэрлатов |
100м² |
6,923 |
1,5 |
0-78,1 |
10,4 |
5,4 |
|
§ Е 6-1-8 3б |
Установка на место стропил |
100м² |
6,923 |
35 |
18-23 |
242,3 |
126,2 |
|
§ Е 6-1-8 |
Укладка выверка и правка обрешетки |
100м² |
6,923 |
14,5 |
7-55,0 |
99,5 |
52,3 |
|
§ Е 6-1-9 |
Сборка всего каркаса слуховых окон |
100м² |
6,923 |
1,35 |
0-70,3 |
9,3 |
4,9 |
|
Итого |
361,5 |
188,7 | |||||
4.6 Материально-технические ресурсы
|
Наименование |
Ед. изм. |
Кол-во |
|
Материалы, полуфабрикаты, изделия. 1. Доски б – 50мм 2. Бруски 3. Гвозди 4. Бревно для стропил 5. Антисептическая паста 6. Толь 7. Поковки |
м³ м³ кг м³ кг м² кг |
0,7 6 13 21 30 9 20 |
|
Оборудование инструменты и приспособления. 1. Пила поперечная 2. Пила - ножовая 3. Уровень 4. Отвес 5. Молоток 6. Топор 7. Рулетка металлическая 8. Нивелир с рейками 9. Электродрель 10. Инвентарные подмости на козелках 11. Дисковая электропила 12. Подъемник |
шт шт шт шт шт шт шт шт шт шт шт шт |
2 2 1 2 3 3 2 1 1 7,5 1 1 |
4.8 Организация труда рабочих
Состав рабочих по профессии и квалификации (5 человек) звено состоит из плотников:
1разр (подсобный рабочий) – 1 чел.
2разр – 2 чел.
3разр – 1 чел.
4разр – 1 чел.
Распределение работы между исполнителями:
Сначала два плотника (4разр-1 и 2разр-1) производят заготовку и укладку мауэрлатов. В это время оставшиеся рабочие (1разр-1, 2разр-1 и 3разр-1) начинают выполнять работы по установке стропил, закончив укладку мауэрлатов, рабочие (4разр-1 и 2разр-1) присоединяются к рабочим (1разр-1, 2разр-1 и 3разр-1), делают врубку стропильных ног, установку стоек, укладку прогонов они заканчивают вместе. Затем всё звено плотников приступает к укладке брусков обрешётки, уложив некоторые количество брусков обрешётки, уложив некоторые количество трое рабочих (4разр-1, 2разр-1 и 1разр-1) начинают выполнять работы по устройству слуховых окон, а в это время рабочие (3разр-1 и 2 разр-1) делают работы по устройству обрешётки.
4.9 Контроль качества
Организация и схема операционного контроля качества работ.
|
Наименование операции |
Контроль качества работ. | ||||||||
|
Производителем работ |
Мастером |
Состав |
Способ |
Время | |||||
|
1 |
2 |
3 |
4 |
5 | |||||
|
Подготовительные работы |
− |
Должны быть выполнены работы по монтажу чердачного перекрытия, устройства карниза, возведению и монтажу дощатых труб и вентиляционных стояков сверх чердачного перекрытия и крыши. Все элементы стропил (мауэрлаты, подкосы, стропильные ноги) заранее заготовляются по шаблонам и подают на чердачное перекрытие. |
Визуально |
До начала монтажа | |||||
|
Укладка мауэрлатов |
− |
Мауэрлаты антисептируют путём пропитки и обмазки устройство гидроизоляции со стороны стены (2 слоя толя) |
Визуально |
Инструментально | |||||
|
По внутренней стены укладывают лежни по наружным мауэрлатах |
До укладки мауэрлатов | ||||||||
|
Устройство стоек |
- |
На лежень устанавливают стойки, временно закрепив их схватками, устраивают подкосы. Прогоны, подкосы и стойки скрепляют стальными скобами. |
Визуально | ||||||
|
Устройство стропил |
- |
Производят разработку на прогоне и мауэрлатах проектного положения стропильных ног, выбирают гнёзда и укладывают в них стропильные ноги. Скрепление стропильной системы производится скобами и болтами. |
Инструментально | ||||||
|
Проверка правильности проектного положения всех установленных элементов |
Инструментально | ||||||||
|
1 |
2 |
3 |
4 |
5 | |||||
|
Устройство слуховых окон |
- |
После прибивки брусков делают в обрешётке вырезы для слуховых окон и монтируют их. | |||||||
|
Устройство обрешётки |
- |
Устройство обрешётки начинают после установки четырёх стропильных ног. Бруски прибивают от карниза к коньку | |||||||
