Расчет и конструирование балочной клеткиРефераты >> Строительство >> Расчет и конструирование балочной клетки
Относительный прогиб однопролетной балки, нагруженной равномерно распределенной нагрузкой
По таблице 19 СНиП 2.01.07-85* в зависимости от пролета определяем нормируемый прогиб. Для пролета l=8м
Условие выполняется, то есть сечение балки настила удовлетворяет требованиям жесткости.
Подсчитаем расход и стоимость материалов при втором варианте компоновки балочной клетки.
Расход металла на 1 м2
Расход железобетона 1 м2∙0.1 м=0.1 м3.
Стоимость 1 м2 настила: С=0.038 т∙10000 р+0.1 м3∙1000=480 р
1.3 Вариант 3 (усложненная компоновка) – пролет балок настила 3 м, шаг балок настила 1.6 м, пролет вспомогательных балок 8 м, шаг вспомогательных балок 3 м
Рис. 3
Расчет балки настила.
Принимаем железобетонный настил толщиной tн=0.1 м и плотностью железобетона
ρ=2500 кг/
Временная нагрузка задана
Нагрузка от собственного веса железобетонного настила составит
Выделяем грузовую площадь на 1 балку настила (рис. 3).
Нормативное значение нагрузки, действующей на балку настила
Расчетное значение нагрузки, действующей на балку настила
Максимальный изгибающий момент равен
Максимальная поперечная сила
Требуемый момент сопротивления поперечного сечения балки равен
По сортаменту прокатных профилей (СТО АСЧМ 20-93) выбираем двутавр № 18 со следующими геометрическими характеристиками:
Wx=143 см3;
Ix=1290 см4;
Sx=81.4 см3;
Р=18.4 кг/м;
d=0.51 см;
b=9 см;
h=18 см.
Значения касательных напряжений в сечении изгибаемого элемента должны удовлетворять условию
Условие выполняется, следовательно опорные сечения балок настила удовлетворяют условию прочности по касательным напряжениям.
Расчет по 2 группе предельных состояний для изгибаемых элементов заключается в определении вертикального относительного прогиба и сравнение его с нормируемым.
Относительный прогиб однопролетной балки, нагруженной равномерно распределенной нагрузкой
По таблице 19 СНиП 2.01.07-85* в зависимости от пролета определяем нормируемый прогиб. Для пролета l=3м
Условие выполняется, то есть сечение балки настила удовлетворяет требованиям жесткости.
Расчет вспомогательной балки.
Рис. 4
Временная нагрузка задана
Нагрузка от собственного веса железобетонного настила составит
Нагрузка от балок настила
где А – шаг колонн в продольном направлении;
В – шаг колонн в поперечном направлении;
Р – нагрузка от 1 м балки настила.
Выделяем грузовую площадь на 1 вспомогательную балку (рис. 3).
Нормативное значение нагрузки, действующей на балку настила
Расчетное значение нагрузки, действующей на балку настила
Где
- коэффициент надежности по нагрузке для металлических конструкций (СНиП 2.01.07-85*).
Максимальный изгибающий момент равен
Максимальная поперечная сила
Требуемый момент сопротивления поперечного сечения балки равен
По сортаменту прокатных профилей (СТО АСЧМ 20-93) выбираем двутавр № 50 со следующими геометрическими характеристиками
Wx=1598 см3;
Ix=39727 см4;
Sx=919 см3;
Р=78.5 кг/м;
d=1 см;
b=17 см;
h=50 см.
Значения касательных напряжений в сечении изгибаемого элемента должны удовлетворять условию
Условие выполняется, следовательно опорные сечения балок настила удовлетворяют условию прочности по касательным напряжениям.
Расчет по 2 группе предельных состояний для изгибаемых элементов заключается в определении вертикального относительного прогиба и сравнение его с нормируемым.
Относительный прогиб однопролетной балки, нагруженной равномерно распределенной нагрузкой
По таблице 19 СНиП 2.01.07-85* в зависимости от пролета определяем нормируемый прогиб. Для пролета l=8м
Условие выполняется, то есть сечение балки настила удовлетворяет требованиям жесткости.
Подсчитаем расход и стоимость материалов при третьем варианте компоновки балочной клетки.
Расход металла на 1 м2
Где Р1 и Р2 – вес 1 метра профиля балки настила и вспомогательной балки.
Расход железобетона 1 м2∙0.1 м=0.1 м3.
Стоимость 1 м2 настила: С=0.0377 т∙10000 р+0.1 м3∙1000=477 р.
Таким образом наиболее экономичным является 1 вариант компоновки балочной клетки.
2. Расчет и конструирование главной балки
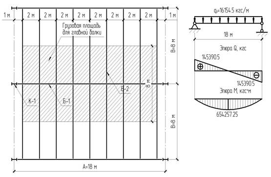
Балки настила опираются на главные балки равномерно с шагом 2 метра, пролет главных балок составляет 18 м. Таким образом, на главную балку будут действовать 9 сосредоточенных сил, примем их как равномерно распределенную нагрузку.
Рис. 5
Нагрузка, действующая на главную балку будет включать в себя:
· Полезную нагрузку;
