Расчет и конструирование балочной клеткиРефераты >> Строительство >> Расчет и конструирование балочной клетки
Условие выполняется, то есть подобранное сечение удовлетворяет условию устойчивости центрально сжатого элемента относительно оси Х.
После подбора сечения стержня колонны по устойчивости относительно материальной оси Х необходимо определить расстояние между ветвями колонны из условия равноустойчивости. Приближенно определяем требуемую гибкость относительно свободной оси (для колонны с раскосной решеткой λy=λx). Задаемся решеткой из равнополочных уголков 50*5 мм в двух плоскостях Аd=2∙4.8=9.6 см2. Гибкость определяем по формуле
Α1 – коэффициент, определяемый по табл. 8.1 Беленя Е.И. «Металлические конструкции».
Гибкости λy соответствует значение радиуса инерции
Расстояние между ветвями
Полученное значение должно быть не менее ширины полки двутавра плюс зазор, необходимый для оправки внутренних поверхностей стержня. В данном случае bтр=155+100=255 мм. Таким образом принимаем расстояние между ветвями колонны 470 мм.
Геометрические характеристики составного сечения колонны
Этому значению приведенной гибкости соответствует значение продольного изгиба φу=0.924. Так как это значение больше φх, проверка устойчивости относительно оси Y не нужна.
3.2 Расчет соединительных элементов сквозной колонны
Расчет соединительных элементов сжатых составных стержней должен выполняться на условную поперечную силу Qfic, принимаемую постоянной по всей длине стержня
Усилие в раскосе определим по формуле
Где n – количество раскосов, участвующих в восприятии поперечной силы, α – угол между раскосом и поясом, принимаемый в диапазоне 45-55°.
φmin – коэффициент продольного изгиба, определяемый в зависимости от гибкости раскоса, равной
φmin=0.871
Суммарное напряжение сжатия раскоса
Где
- напряжение в раскосе от сжатия колонны;
– напряжение в раскосе от действия поперечной силы.
Условие выполняется, следовательно устойчивость раскоса обеспечена.
3.3 Расчет оголовка колонны
Конструкция оголовка колонны должна обеспечить принятое ранее шарнирное крепление балки на опорах. Самым простым способом реализации шарнирного опирания является постановка балки на колонну сверху, что обеспечивает простоту монтажа. Расчетным элементом при таком опирании является ребро, поддерживающее плиту оголовка, толщину которой назначают конструктивно в пределах 20-25 мм. Толщину ребра оголовка определяют из условия сопротивления на смятие под полным опорным давлением
Где lр=b+2∙tпл=25+2∙2.5=30 см - длина участка смятия (b – ширина опорного ребра, tпл – толщина плиты оголовка);
N – опорное давление главной балки;
Rр – расчетное сопротивление смятию, принимаемое равным Run;
Run=3700 кгс/см2 по табл. 51*СНиП ∥-23-81 «Стальные конструкции», при листовом прокате стали С235 толщиной 20 мм.
По ГОСТ 82-70 назначаем 28 мм.
Швы, крепящие ребро к плите должны быть рассчитаны на действие той же силы N. Задаемся катетом шва кf,min=7 мм≤kf=10 мм≤ кf,max=1.2∙t=1.2∙8.4=10.08 мм. Определим необходимую высоту швов из условия прочности по металлу шва
из условия прочности металла на границе сплавления:
Назначим высоту ребра из условий размещения сварных швов 66 см, при этом следует иметь ввиду, что эти швы по отношению к линии действия усилия N являются фланговыми, а их длины назначаются не более
85∙βf∙kf=85∙0.7∙1=59.5 см
Назначаем высоту опорного ребра 59 см.
3.4 Расчет базы колонны
Колонна имеет жесткое крепление к фундаменту. Принимаем диаметр анкерных болтов 30 мм. Фундамент проектируется из бетона В20 с расчетным сопротивлением сжатию Rb=115 кгс/см2.
Определяем требуемую площадь плиты из условия обеспечения прочности фундамента
Ширина опорной плиты базы колонны назначается конструктивно
Где h – высота ветви колонны;
а – свес плиты, принимаемый ориентировочно равным 5-10 см.
Тогда необходимая длина плиты
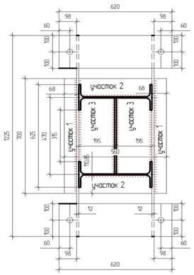
Исходя из размеров колонны и удобства размещения анкерных болтов назначаем плиту 56*70 см.
Расчетной нагрузкой на плиту является давление, равное напряжению в фундаменте
Погонная нагрузка на участок плиты равна:
Определим изгибающий момент на различных участках в плите. Расчет участка плиты следует производить как консоли, при а/h˂0.5:
Если а/h˃0.5, то правильнее рассматривать плиту как пластину при опирании на три канта:
При опирании на четыре канта:
Где коэффициент β принят по таблице 8.7 Беленя Е.И. «Металлические конструкции»;
α - принят по таблице 8.6 Беленя Е.И. «Металлические конструкции»;
Участок 1 работает как консольная балка с пролетом а=6.8 см.
Участок 2 работает как пластина, опертая на три стороны, однако при а/h=0.27˂0.5 расчет ведется как для консольного участка
Участок 3 работает как пластина, опертая на четыре канта. При b/а=46.17/19.5=2.4 по таблице 8.6 Е.И. Беленя «Металлические конструкции» принимаем α=0.125.
