Расчет устойчивости башенного кранаРефераты >> Строительство >> Расчет устойчивости башенного крана
Рисунок 3. Грузовая характеристика крана
Грузовая характеристика дает возможность оценить грузоподъемность крана в зависимости от вылета стрелы. С увеличением вылета максимальная грузоподъемность падает (что объясняется увеличением плеча опрокидывающей нагрузки).
3.4 Статический расчет на собственную устойчивость крана
Для определения собственной устойчивости крана рассматривается случай, когда кран стоит без груза, с максимально поднятой стрелой (α = 60°).
Для расчетов принимается, что кран установлен на горизонтальной поверхности (γ = 0).
Стрела располагается в направлении перпендикулярном к передвижению крана.
Удельная ветровая нагрузка принимается W = 250Н/м2.
Кран опрокидывается назад, ребро опрокидывания проходит по заднему рельсовому пути.
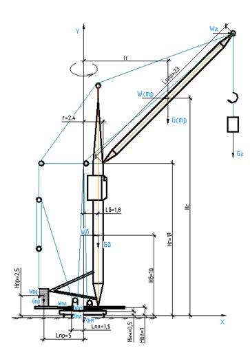
Рисунок 4. Расчетная схема для определения грузовой устойчивости
Веса элементов крана определены в п. 3.2, формула 8
Плечи нагрузок от весов элементов крана определяются как
, где (14)
liид - расстояние от центра тяжести элемента до оси вращения крана;
b1 - расстояние от оси вращения крана до вертикальной оси опрокидывания назад
|
Неповоротная часть |
|
|
Поворотная платформа |
|
|
Противовес |
|
|
Башня |
|
Плечо нагрузки от веса стрелы определяется как
(15)
|
α=60º |
|
Моменты, создаваемые весами элементов крана, определяются по формуле 11
|
Неповоротная часть |
|
|
Противовес |
|
|
Башня |
|
|
Стрела |
|
Ветровая нагрузка определяется по формуле 7
|
Неповоротная часть |
|
|
Поворотная платформа |
|
|
Противовес |
|
|
Башня |
|
Ветровая нагрузка на стрелу крана определяется по формуле 6
|
α=60º |
|
Моменты, создаваемые ветровыми нагрузками, определяются по формуле 10
|
Неповоротная часть |
|
|
Поворотная платформа |
|
|
Противовес |
|
|
Башня |
|
|
Стрела |
|
Коэффициент собственной устойчивости определяется как
, где (16)
Му - удерживающий момент;
Мо - опрокидывающий момент.
В данном случае к опрокидывающим относятся моменты, создаваемые ветровой нагрузкой, а моменты, создаваемые весами элементов крана относятся к удерживающим с соответствующим знаком.
(17)
Так как рассчитанный коэффициент собственной устойчивости Ку = 6,76 > 1,15, можно сделать вывод что данный кран устойчив и дополнительных мероприятий по обеспечению собственной устойчивости не требуется.
4. Выбор каната грузоподъемного механизма крана
Схема механизма подъема груза, соответствующая заданию, приведена на рисунке 5
Рисунок 5. Схема механизма подъема грузов
Кратность полиспаста m = 2, число обводных блоков n = 1
КПД канатной системы определяется как
, где (18)
η - КПД отдельного блока
Натяжение каната определяется как
, где (19)
Gгр - вес груза (принимается максимальный – 144,02кН (14.69т));
