Контроль качества геофизического исследования скважин
ΔР СИ / ΔИО СИ = (4 – 3),
требования к методикам передачи размера должны быть достаточно жёсткими.
Рис. 3.1. Типовая поверочная схема скважинных средств измерений.
Типовая калибровочная схема для скважинных геофизических параметров приведена на рис. 3.1. В качестве исходных образцовых средств, как правило, используются стандартные образцы состава и свойств горных пород в виде моделей пластов, пересечённых скважиной, либо калибровочные установки.
Градуировкой средства измерений называется процедура определения градуировочной характеристики. Различают два типа градуировочных характеристик: типовые и индивидуальные. Типовые определяются для группы средств, выпускаемых серийно. Индивидуальные градуировочные характеристики определяются непосредственно для конкретного экземпляра. При построении градуировочных характеристик выполняют совместные измерения на входе и выходе СИ. Обычно измеряют несколько входных величин (x1, x2 … xm) и соответствующие выходные величины (y1, y2 … ym). По этим экспериментальным данным строят градуировочную характеристику.
Поверкой средств измерений называют совокупность действий, выполняемых для определения и оценки погрешностей средств измерений с целью выяснения соответствия их точностных характеристик регламентированным значениям и пригодности средства измерения к применению. Определение метрологического параметра поверяемого СИ сводится, как правило, к определению характеристик основной погрешности и при необходимости функций влияния условий измерений на погрешность СИ. Для получения оценки среднего квадратичного отклонения случайной составляющей погрешности проводят многократные измерения (не менее 10) при двух значениях измеряемого параметра, соответствующих приблизительно (10±10) и (90±10)% нормированного диапазона измерений.
Под калибровкой понимают установление и контроль стабильности функции преобразования измерительного канала ГИС и масштабирование выходного сигнала в единицах измеряемого параметра. Необходимость калибровки измерительного канала ГИС вызвана технологическими особенностями его функционирования, важнейшие из которых – необходимость транспортировки информационно-измерительной системы (ИИС) на скважину в разобранном виде с последующей сборкой и настройкой перед проведением измерений, сложность структуры измерительного канала, состоящего из ряда самостоятельных структурных элементов, имеющих собственные нормируемые метрологические характеристики.
Одним из способов контроля является использование физической модели, имитирующей сигналы, как в однородной среде. Современный математический аппарат индукционного метода позволяет рассчитывать кажущиеся значения удельной электрической проводимости, регистрируемой зондом индукционного метода известной конструкции как в однородной среде с проводимостью σ0, так и в непроводящей среде в присутствии тонкого кольца с заданными геометрическими и электрическими параметрами. Сравнение выражений для ЭДС, возникающих в измерительных катушках зонда в этих двух случаях, является основой организации градуировки, поверки, а также калибровки аппаратуры с помощью имитаторов (тест-колец): сопоставляют выходные сигналы аппаратуры и рассчитанные дискретные значения проводимости σк текст-кольца. Кольцо представляет собой замкнутый одновитковый контур, состоящий из последовательно включённых индуктивности L, сопротивления R и ёмкости конденсатора C. Схема расположения кольца приведена на рис. 3.2.
Рис. 3.2. Схема положения кольца.
Здесь L1 и L2 – расстояния от имитирующих катушек И1 и И2 до генераторной катушки Г, b – радиус кольца, z – расстояние от плоскости кольца до измерительной катушки И1, ток в генераторной катушке изменяется по закону J = J0∙eiωt. Рабочая частота зонда ƒ = ω/2π. Комплексное сопротивление цепи кольца на рабочей частоте R + iX. Активное сопротивление R складывается из потерь в высокоомном проводе и в конденсаторе, включённом в разрыв цепи. Реактивное сопротивление X = 1/ωC – ωL. В этом случае ЭДС, наводимая в j-ой измерительной катушке, равна:
, где N = J∙S∙n – момент генераторной катушки; S, n – её площадь и число витков; k = ω/c – волновое число; с = 3∙108 м/с – электродинамическая постоянная; μ0 = 4π∙10-7 Гн/м – магнитная проницаемость воздуха. Остальные геометрические обозначения даны на рис. 4.4. Расчёт ЭДС для многовитковых генераторной и измерительных катушек выполняется на основе принципа суперпозиции.
Рассчитывается разность фаз Δφ между ЭДС ε1 и ε2, наведёнными в измерительных катушках И1 и И2.
Методика метрологической аттестации основана на зависимости величины Δφ от электрических параметров R и X тонкого кольца, его радиуса b и положения z относительно катушек. При изменении z от 0 до L1, величина Δφ имеет два максимума и один минимум. При выполнении условия b < L1L2/(L1+L2) величина Δφ в точке минимума отрицательна и, следовательно, существуют две точки с нулевой разностью фаз. Выбрав одну из этих точек (ближнюю к катушке И1) как начало отсчёта и передвигая кольцо в сторону катушки И1, можно получить последовательность возрастающих от нулевого до максимального значений Δφ. Величина реактивного сопротивления X, зависящая от радиуса кольца b выбрана так, чтобы значения Δφ были максимальными. Для получения значения Δφ, равного верхнему пределу диапазона измерения, подбирают значение активного сопротивления R. Учитывая, что величина R определяется в основном потерями в кольце, выбирают диаметр провода так, чтобы его сопротивление на рабочей частоте было немного меньше значения R. После этого рассчитывают индуктивность кольца на рабочей частоте. По значениям индуктивности кольца и реактивного сопротивления X рассчитывают необходимую ёмкость конденсатора.
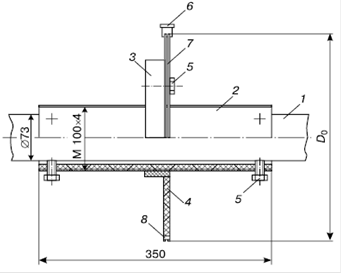
На этой основе разработан имитатор УЭС горных пород ИМ. Устройство имитатора показано на рис. 3.3.
Рис. 3.3. Устройство имитатора.
Собственно имитатор образован кольцом 7, выполненным из манганинового провода и закреплённым на электроизоляционном диске 4. Кольцо имеет два разрыва. В одном вставлен конденсатор 8, в другом – коаксиальный измерительный разъём 6. В рабочем состоянии этот разъём закорочен дисковым замыкателем с пренебрежимо малой остаточной индуктивностью (менее 10-10 Гн). При помощи болтов 5 диск с кольцом может быть соединён с фланцем 3, который укреплён на втулке 2 подвижным резьбовым соединением. Втулка 2 крепится на корпусе прибора 1 болтами 5. Для точной установки имитатора вдоль оси зонда вращают диск 4. При этом вращении фланец 3 и диск 4 с закреплённым на нём кольцом 7 будут перемещаться по резьбе вдоль закреплённой на корпусе втулки 2.
