Применение колтюбинговой технологии в бурении
2.2. Узлы, обеспечивающие
транспортирование колонны гибких труб
Одним из наиболее ответственных узлов агрегата является транспортер. Он должен обеспечивать перемещение колонны гибких труб в заданном диапазоне без проскальзывания рабочих элементов и повреждений наружной поверхности трубы и ее геометрии. Необходимо, чтобы транспортер при перемещении КГТ и вверх, и вниз работал одинаково надежно.
К настоящему времени сложились два направления в конструировании транспортеров – с одной и двумя тяговыми цепями, снабженными плашками, взаимодействующими с колонной гибких труб. Плашки прижимаются к гибкой трубе с помощью гидравлических цилиндров.
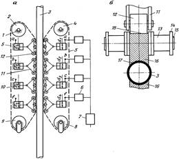
Принципиальная схема транспортера с двумя цепями приведена на рис.7, а. На корпусе 1 слева и справа от гибкой трубы 3 расположены две двухрядные цепи 5, состоящие из пластин 14 и втулок 13. Звенья цепей соединены пальцами 15 и снабжены плашками 16. Плашки расположены между звеньями цепей (рис.7, б). Каждая плашка установлена на двух пальцах, которые друг с другом соединены "в замок", в результате чего их тыльные поверхности 18 образуют непрерывную плоскость. Каждая плашка выполнена с возможностью небольшого (порядка 3 – 5°) углового перемещения относительно одного из пальцев (верхнего) цепи. Это позволяет плашкам проводить самоустановку рабочей поверхности 17 относительно гибкой трубы.
Рис. 7. Принципиальная схема транспортера с двумя цепями (а) и поперечное сечение его узла плашек (б):
a, b, c, f – точки подвода жидкости от вторичных регуляторов к цилиндрам прижима
Тыльные поверхности плашек взаимодействуют с роликами 12, которые не более чем по три штуки закреплены в каретках 11. Последние прижимаются к цепи посредством гидравлических цилиндров 10. Жидкость в полости последних поступает от регуляторов давления 6, к которым попарно присоединены цилиндры, находящиеся слева и справа от гибкой трубы. К регуляторам давления рабочая жидкость гидропривода поступает от насосной станции 7. Для обеспечения постоянного соотношения усилий прижима плашек диаметры d1 – d4 гидроцилиндров 10 могут быть различными.
Цепи с плашками перекинуты через звездочки ведущие 2, 4 и направляющие 8, 9. Для обеспечения синхронности перемещения цепей валы ведущих звездочек кинематически связаны синхронизирующими шестернями (на схеме не показаны). Каждая верхняя звездочка через редуктор соединена с гидравлическим мотором (на схеме не показаны), приводящим ее в действие. Питание гидромоторов осуществляется от насосной станции агрегата подземного ремонта, в состав которого входит описываемое устройство. Конструкция осей, на которых установлены нижние звездочки 8 и 9, предусматривает возможность их вертикального перемещения и с помощью натяжных гидроцилиндров (на схеме не показаны).
Характерные размеры каретки, плашки и цепи следующие: расстояния между осями роликов на каретке и между осями роликов соседних кареток равно шагу цепи, а длина рабочей поверхности плашки меньше или равна шагу цепи.
Работа транспортера для перемещения колонны гибких непрерывных труб агрегата подземного ремонта скважин происходит следующим образом.
При движении трубы 3 гидроцилиндры 10 прижимают каретки 11 с роликами 12 к тыльной поверхности 18 плашек 16, а они, в свою очередь, рабочей поверхностью 17 соприкасаются с поверхностью гибкой трубы 3. Крутящий момент от гидромоторов передается редукторами к ведущим звездочкам 2 и 4, которые обеспечивают перемещение цепей 5 и соединенных с ними плашек в нужном направлении. При движении плашек 16 ролики 12 катятся по их тыльной поверхности 18.
Геометрические соотношения размеров плашек и кареток обеспечивают гарантированное приложение нагрузки, создаваемой гидроцилиндром, к какой-либо плашке в любом ее положении. Заданный размер рабочей части плашки исключает деформирование поверхности трубы в периоды вхождения в контакт с плашкой и выхода из него.
При наличии каких-либо дефектов гибкой трубы (например, местное смятие, вспучивание, нарушение правильной геометрии) отклоняется от своего нормального положения и плашка, контактирующая с поверхностью трубы в этой зоне.
Необходимый закон изменения тягового усилия по длине контакта плашек с трубой устанавливается регуляторами давления 6 и изменениями диаметров цилиндров 10.
Принципиальная схема транспортера с одной цепью приведена на рис. 8. В данном случае перемещение трубы осуществляется посредством одной цепи, несущей на себе шарнирно соединенные плашки (по существу используются две параллельно установленные однорядные цепи, между которыми располагаются плашки). Устройство состоит из корпуса, в верхней части которого размещен вал ведущей звездочки, а в нижней – ведомой. Вращение ведущего вала обеспечивается с помощью цепного редуктора, приводимого в действие от гидромотора. Как и в ранее рассмотренной схеме, в конструкции нижнего вала предусмотрена возможность перемещения его в вертикальном направлении, что позволяет регулировать натяжение цепи. Гидравлические цилиндры находятся на внешней стороне корпуса.
Плашки, захватывающие трубу (рис. 9), выполнены таким образом, что ось пальцев цепей пересекается с осью гибкой трубы и перпендикулярна ей. Это обеспечивает передачу на цепи только вертикально направленных сил без эксцентриситета относительно оси каждой из них. В результате цепь передает только растягивающую нагрузку, изгибающие моменты в любых плоскостях отсутствуют. Внутри корпуса каждой плашки расположены два шарнирно закрепленных захвата, в средней части они снабжены сменными плашками, взаимодействующими с трубой, а на конце, противоположном шарниру, имеют ролики. Именно они взаимодействуют с прижимным устройством в той зоне, где должен быть обеспечен контакт плашек и трубы. На рис. 9 плашки, находящиеся в верхних положениях в зоне звездочек, показаны раскрытыми. При подходе к рабочему участку плашки закрываются и плотно охватывают гибкую трубу.
Рис. 8. Принципиальная схема транспортера с одной цепью
|
: |
1 – узел раскрывающихся плашек; 2 – ведущий вал со звездочками; 3 – цепная понижающая передача; 4 – гидравлические цилиндры натяжения цепей; 5 – ведомый вал со звездочками; 6 – опора транспортера; 7 – герметизатор устья; 8 – гидромотор; 9 – корпус
|
| ||
|
Рис. 9. Поперечное сечение узла плашек, захватывающих трубу: 1 – ось вращения плашек; 2 – каретка; 3, 4 – соответственно вкладыш и корпус плашки; 5 – цепь привода; 6 – стопор; 7 – ролик. | ||
