Комплексная механизация молочной фермыРефераты >> Ботаника и сельское хоз-во >> Комплексная механизация молочной фермы
Введение
Моя ферма по содержанию молочного стада коров располагается в Московской области, Солнечногорского района. Она рассчитана на поголовье в 150 коров и небольшого ремонтного поголовья телочек (28 голов). Цель хозяйства – получение молока высокого качества в большом количетсве.
Молокопродуктивность, как известно, зависит от массы факторов. Поэтому необходимо обеспечивать благополучие животных.
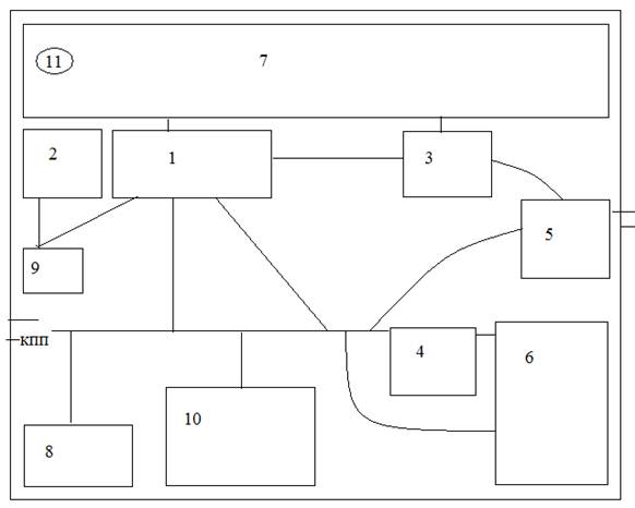
План фермы
1-коровник, 2-телятник, 3-доильный зал, 4,6-кормохранилища, 5-отсек хранения молока, 7-луг, 8-навозохранилище, 9-ветпункт, 10-хозяйственная постройка, 11-водонапорная башня.
КПП должно быть оборудовано в соответствии с санитарно-зоогигиеническими требованиями. Возможно оборудование второго КПП сзади отсека хранения молока для более удобного вывоза его с фермы.
Луг предназначен для моциона животных, а не для выпаса, так как содержание коров будет стойловым привязным, а для процесса молокообразования необходимо движение, обеспечивающее более интенсивный ток крови через вымя.
Хозяйственная постройка предназначена для внутрифермового транспорта. Так же там могут располагаться административные помещения.
Ветпункт должен соответствовать требованиям санитарно-гигиенических правил. Необходимо своевременно заботиться о плановой вакцинации животных (покупка вакцин и т.д.).
Остальные компоненты фермы будут рассмотрены в проекте отдельно.
Коровник для содержания дойного стада
Молочное стадо коров в размере 150 голов содержится привязно. Каждый бокс оборудован привязью, поилкой и местом под кормление.
Оборудование стойловое для коров ОСК-Ф-27
|
№ п/п |
Параметр |
Ед. изм. |
ОСК-Ф-27 |
|
1 |
Количество коров, подлежащих одновременной отвязке |
голов |
27 |
|
2 |
Количество поилок |
шт. |
14 |
|
3 |
Ширина станка |
мм |
1100 |
|
4 |
Масса |
кг |
690 |
1 – стойка ОСМ.27.100
2 – стойка ОСМ.00.530
3 – трубка Ц-Р40х3,0х6100
4 – ограждение ОСМ.27.801
5 – кронштейн ОСМ.27.020
6 – кронштейн ОСМ.00.819
7 – привязь ОСМ.27.010
8 – ошейник ОСМ.27.040
9 – петля ОСМ.27.080
10 – труба ОСМ.27.802
11 – рукоятка ОСМ.27.030
12 – фиксатор ОСМ.27.050
13 – скоба ОСМ.27.601
14 – зажим ОСМ.27.401
15 – муфта Ц 40 ГОСТ 8954-75
16 – колпак Ц 40 ГОСТ 8962-75
17 – угольник 900-1-Ц40
18 – труба ОСМ.00.815
19 – зажим III- 48х48 Ц 15 хр
20 – скоба ОСМ.27.402
21 – поилка индивидуальная ПА.3.010
22 – стойка ОСМ.00.803
23 – скоба ОСМ.00.638
Поилка с подводом воды
1 – стойка ОСМ.00.530
2 – кронштейн ОСМ.00.474
3 – скоба ОСМ.00.638
4 – гайка М10-6Н ГОСТ5915-70
5 – труба ОСМ.00.816
6 – угольник 900-1-Ц20
7 – поилка ПА.3.010
8 – прокладка ОСМ.27.004
9 – скоба ОСМ.00.462
10 – основание ОСМ.00.402
11 – скоба ОСМ.00.632
12 – болт М10 – 6g х 25 ГОСТ 7798-70
13 – шайба 1065Г ГОСТ 6402-70
Чаша поилки ПА.3.010
1 – угольник ПА.155
2 – прокладка ПА.007
3 – клапанный механизм ПА.020
4 – ось ПА.623
5 – рычаг ПА.3.457
6 – чаша ПА.3.101
7 – кронштейн ПА.3.456
8 – кронштейн ПА.3.456-01
Привязь
1 – привязь ОСМ.27.010
2 – ошейник ОСМ.27.040
3 – петля ОСМ.27.080
4 – цепь ОСМ.27.070
5 – скоба ОСМ.27.090
6 – гайка М10-6Н ГОСТ 5915-70
7 – шайба 1065Г ГОСТ6402-70
С учётом поголовья, общая протяженность боксов будет следующей:
1) коровы стоят по обе стороны коровника, то есть с одной стороны стоит 150/2=75 гол.
2) общая ширина боксов с одной стороны будет составят 1100*75=82,5 м
Общий вид коровника будет следующим:
Коровник для коров привязного содержания: 1 - стойловое помещение: 2 - помещение для подстилки; 3 - фуражная; 4 - инвентарная; 5 - тамбур; 6 - помещение навозоудалекия; 7,8 - венткамеры.
Телятник
Поскольку ферма является товарной, ее главная задача – получение молока. Ремонт стада осуществляется как за счет телят, полученных от коров на ферме, так и благодаря покупке животных у других фермеров и в племенных хозяйствах. Поэтому телятник, находящийся на террирории хозяйства рассчитан на небольшое число животных (28 голов). Телочки, не отобранные для ремонта стада, а так же бычки сдаются в районный мясокомбинат.
Так как телят на ферме небольшое количество, то можно укомплектовать помещение более качественным и, следовательно, дорогим оборудованием.
Для этой цели я выбрала люксы для телят фирмы Terborg Agro.
Преимущества люксов:
Альтернатива холодному содержанию телят
Быстрый монтаж и уборка
Повышенная надежность конструкции
Оптимальная вентиляция
Легкий доступ к телятам для кормления и лечения
Полная изоляция телят друг от друга
Быстрый переход к групповому содержанию
Стандартные размеры:
Ширина стойла по центральной оси: 91,4см, 106,7 см, 121,9 см
Длина боксов: 182,9 см, 243,8 см
Высота панелей: 104,1 см, 129,5 см
Таким образом общая длина телятника получается: 28/2*121,9=17 м
Для лучшего психологического состояния животных, а так же для индивидуального наблюдения за маленькими телочками, кормление, поение и уборка в телятнике осуществляется вручную персоналом.
Доильный зал
Для своей фермы я выбрала доильный зал типа «Тандем» (система доильного зала AutoTandem - Westfalia). В этом зале присутствуют следующие отличительные достоинства:
Оптимальный обзор животного
Каждому животному – максимум внимания
Спокойные животные
Оптимальная позиция животного по отношению к доярке
Равномерная нагрузка на доярку
Высокая степень загрузки аппаратов
Меньшие потери времени на каждое доильное место благодаря отдельной смене животных
