Комплексная механизация молочной фермыРефераты >> Ботаника и сельское хоз-во >> Комплексная механизация молочной фермы
привод,
устройство поворотное,
ползун,
скребок левый,
скребок правый,
цепь,
щит управления,
кнопка "Аварийный стоп".
После удаления навоза из коровника, его следует траспортировать в навозохранилище.
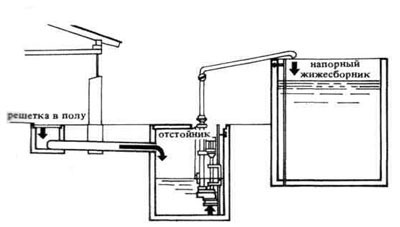
При механизированной системе удаления навоза последний на ленточном транспортере доставляется непосредственно из хлева на площадку. Зоны хранения навоза в хлеву и на площадке следует располагать на одной оси. С целью совершенствования производственного процесса в настоящее время все чаще используют хлева без применения соломенной подстилки, что позволяет внедрять способ удаления навоза в виде навозной жижи. Для этого навоз собирают в помещениях хлева под полом или же в жижесборниках, располагаемых вне хлева (рис. 6).
Жижесборник устраивается из бетона или фасонных камней. Наиболее экономичны при строительстве напорные жижесборники круглой или квадратной в плане формы. Перед жижесборником в систему удаления навоза подключается отстойник. Размеры жижесборников устанавливаются, исходя из поголовья скота и продолжительности хранения навоза.
1. Открытые лотки с уклоном, устраиваемым в коровниках; длина до 10 м. 2. Навозная площадка со стоком для навозной жижи. 3. Ввод открытого лотка в отстойник, предназначенный для осаждения дурно пахнущих веществ. 4. Кирпичный или бетонный жижесборник с отдельными отсеками и отверстиями для откачки жижи в железобетонной крышке. 5. Жижесборник в виде группы секций, выложенных из фасонных камней и размещенных в общей железобетонной обойме, с переливами из секции в секцию. 6. Напорный жижесборник системы Бауэра. Преимущества: простота установки на скальных грунтах и при высоком уровне грунтовых вод. Возможность отказа от крышки, рассчитываемой на проезд по ней средств транспорта, снижает стоимость сооружения. 7. Вспомогательные операции для приготовления навоза по способу Кранца. Навоз наслаивается отдельными кучками. Благодаря возведению отсеков высотой до 3 м создается экономичное навозохранилище. 8. Навозная яма для создания запаса удобрений. Каждый месяц навоз складируется на отдельных участках и вывозится только после созревания. 9. Крытое навозохранилище с подачей навоза из хлева по подвесной дороге. 10. Основные формы навозохранилищ с обслуживанием наземными транспортными средствами, по Кордсу. М 1: 800. а— вывоз с одной продольной стороны, ширина навозохранилища 2,5 м (максимально допустимая при погрузке с одной стороны); б— вывоз с обеих продольных сторон, ширина навозохранилища удвоенная (2,5 х 2); e— вывоз по средним проездам, ширина навозохранилища— учетверенная (2,5 х 4); г — навозохранилище с угловыми проездами. 11. Обслуживание навозохранилищ подвесной дорогой с поворотными кругами или переводными стрелками.
Потребная ёмкость навозохранилищ (данные из справочника Попечительского совета сельскохозяйственной техники)
|
Вид жижесборников и навозохранилищ |
Потребность в м3 на хранение навоза в течение двух месяцев в расчете на 1 гол. |
Потребность в м3 на хранение навоза в течение двух месяцев в расчете на все стадо. |
|
жижеприемник |
1 |
150 |
|
Резервуары для смывания навоза |
4 |
600 |
|
Резервуар для сухого навоза |
3 |
450 |
|
Навозные площадки |
1 |
150 |
Водоснабжение
Для обеспечения молочной фермы водой для различных целей, необходимо иметь свою систему водоснабжения.
Суточная норма потребления воды
|
Животные |
На одну голову (л/сут) |
На все стадо (л/сут) |
|
коровы |
100 |
15000 |
|
телята |
30 |
840 |
|
Итого: |
15840 (16 тыс л/сут) | |
Получение воды будет вестись из артезианской скважины. Таким образом можно добиться более чистой воды, в отличие от воды из естественных водоисточников (озер, рек и т.д.)
Далее вода по системе труб будет поступать в водонапорную башню. Так она будет находится до востребования и, к тому же, нагреваться. Бак башни должен соответствовать суточному потреблению воды на ферме, то есть 16 тыс литрам.
Схема водонапорной башни: 1 - водопроводная сеть; 2, 5 - электрическая задвижка; 3 - обратный клапан; 4 - подающе - отводящий трубопровод; 6 - трубопровод забора неприкосновенного запаса воды; 7 - трубопровод забора регулирующего запаса воды; 8 - шатер; 9 - переливная труба; 10 - грязевая труба; 11 - задвижка; 12 - руль управления задвижкой; 13 - ствол башни; 14 - патрубки для присоединения пожарной техники; 15 - канализационная сеть.
Затем из водонапорной башни вода по трубопроводу будет распределяться по ферме в необходимые места, включая автопоилки животных, рассмотренные в пункте первом.
Заключение
Механизация и автоматизация производства является важной стороной развития хозяйства, в том числе и сельского. Благодаря этим процессам уменьшаются как затраты ручного труда каждого отдельного работника, так и потребность в рабочих кадрах в целом (при высокой степени механизации и автоматизации необходимость в рабочих руках сводится к минимуму). В то же время возрастают требования к квалификации работников.
При правильном подборе механизмов и автоматов производства, возможно добиваться уменьшения экономических затрат, в том числе денежных средств на единицу продукции.
К тому же механизированный подход позволяет обеспечивать благополучие каждого животного на ферме, что очень важно как с производственной точки зрения, так и с моральной.
