Расчет прибыли инвестиционного проекта
Решение:
1. Определим простую норму прибыли по формуле:
2. Определим чистую среднегодовую прибыль по проекту:
|
Год |
Выручка, тыс.грн. |
Текущие расходы (без амортизации), тыс.грн. |
Амортизация (АО), тыс.грн. |
Прибыль, тыс.грн. |
Налог на прибыль, тыс.грн. |
Чистая прибыль (ЧД), тыс.грн. |
|
1 |
1060 |
475 |
1820*24%=436,8 |
148,2 |
37,1 |
111,1 |
|
2 |
1225 |
562 |
1383,2*24%=332,0 |
331 |
82,8 |
248,2 |
|
3 |
1310 |
627 |
1051,2*24%=252,3 |
430,7 |
107,7 |
323,0 |
|
4 |
1425 |
715 |
798,9*24%=191,7 |
518,3 |
129,6 |
388,7 |
|
5 |
1530 |
795 |
607,2*24%=145,7 |
589,3 |
147,3 |
442,0 |
|
1358,5 |
2017,5 |
504,5 |
1513,0 |
Pnet = 1513/5 =302,6 тыс. грн.
3. Определим стоимость оборудования к концу периода реализации проекта:
= 1820-1358,5 = 461,5 тыс.грн.
Тогда простая норма прибыли составит:
26,5 %
4. Период окупаемости проекта определяется по формуле:
,
где ДПср = ДП : 5– среднегодовой денежный поток
5. Денежный поток рассчитывается по формуле:
= 1513 + 1358,5 = 2 871,5 тыс. грн.
Тогда период окупаемости проекта составит:
3,2 года.
Вывод: полученная простая норма прибыли 26,5 % больше принятой на предприятии нормы прибыли равной 25 % и срок окупаемости инвестиций равный 3,2 года меньше установленного на предприятии периода в пределах 4 лет, следовательно, инвестиционный проект может быть принят к реализации, так как соответствует требованиям инвестора.
Задача 7.7
Сравнить проекты с различными периодами продолжительности методом цепного повтора. По результатам расчетов сделать выводы.
|
Проекты |
1 |
2 |
|
Сумма инвестиционных средств, тыс. грн. |
12 000 |
10 000 |
|
Денежный поток, всего, в т.ч. по годам, тыс. грн.: |
22 000 |
19 000 |
|
1-й год |
4 000 |
4 000 |
|
2-й год |
8 000 |
5 000 |
|
3-й год |
10 000 |
6 000 |
|
4-й год |
– |
4 000 |
|
Стоимость капитала предприятия, % |
18 |
19 |
Решение:
1. Определим чистый приведенный доход для каждого из проектов:
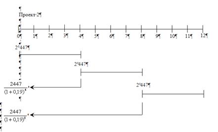
2. Наименьшее общее кратное для двух рассматриваемых проектов составит 12. Таким образом, общий период реализации двух проектов составит 12 лет, в рамках данного периода проект 1 будет реализован 4 раза, а проект 2 – 3 раза.
3. Графическим методом определим суммарное значение чистой текущей стоимости по каждому из проектов с учетом разной продолжительности проектов:
Тогда:
Тогда:
Таким образом, к реализации следует принять проект 1, так как его суммарное значение чистой текущей стоимости выше суммарного значения NPV проекта 2 и составило 7 103 грн.
Задача 6.10
По данным бизнес-плана определить показатели эффективности проекта:
|
Показатели бизнес-плана |
Значение, грн. |
|
Сумма инвестиций |
413 270 |
|
Денежный поток по проекту, в том числе по годам: |
928 870 |
|
1-й год |
227 540 |
|
2-й год |
305 460 |
|
3-й год |
395 870 |
|
Стоимость капитала предприятия, % |
11 |
Сделать выводы о целесообразности реализации инвестиционного проекта на предприятии.
Решение:
1. Рассчитаем чистый приведенный доход проекта по формуле для ординарного денежного потока:
= (227 540×0,9009 + 305 460×0,8116 + 395 870×0,7312) – 413 270 = 742 362 - 413 270 = 329 092 (грн.)
Чистый приведенный доход положителен и составил 329 092 грн., что свидетельствует о необходимости принятия данного проекта, так как проект принесет дополнительный доход на вкладываемый капитал.
