Выбор стратегии деятельности предприятияРефераты >> Менеджмент >> Выбор стратегии деятельности предприятия
Планово – экономический отдел оборудован 3-мя компьютерами , которые снабжены защитными экранами для предохранения служащих от ионизирующего излучения.
В отделе имеется гардеробная для хранения одежды. Уборная находится в 15 м от ПЭО и оборудована рукомойником с питьевой водой. Подача горячей воды отсутствует.
Стены помещения оклеены обоями, потолок побелен, пол покрыт темным линолеумом. В отделе размещаются 9 письменных столов, 2 стеллажа для документов. Такое количество мебели является избыточным , затрудняет перемещение по помещению и может стать препятствием при эвакуации людей в чрезвычайной ситуации. Рекомендуется убрать 4 стола , а также заменить мебель на более компактную и эргономичную.
7.2 ТЕХНИКА БЕЗОПАСНОСТИ
По опасности поражения электрическим током помещение можно отнести к классу без повышенной опасности, так как оно достаточно сухое , а для пола использовано антистатическое покрытие. Это обеспечивает защиту от образования разрядов статического электричества.
Оборудование ПЭО (компьютеры и светильники) работает под напряжением 220 В . Для компьютеров в отделе предусмотрены евророзетки, отвечающие мировым стандартам и обеспечивающие защитное заземление компьютеров. Электропроводка в помещении проходит непосредственно поверх пола и стен, что является нарушением правил техники безопасности. Необходимо обеспечить правильную разноску проводов к электроприборам на рабочих местах , чтобы максимально предотвратить контакт работников с проводкой.
Для обеспечения безопасности работающих планово – экономического отдела предусмотрены следующие мероприятия и средства :
А) применение защитных экранов для защиты от ионизирующего излучения ;
Б)применение рационального режима труда и отдыха с целью предупреждения возникновения психофизиологических вредных факторов;
В ПЭО не отмечены случаи производственного травматизма и профзаболеваний. Всех работников при принятии на работу в обязательном порядке ознакамливают с требованиями к технике безопасности на предприятии.
Соблюдение вышеперечисленных факторов позволило исключить за последние три года возникновение профзаболеваний и травматизма.
7.3 ПОЖАРНАЯ БЕЗОПАСНОСТЬ
В соответствии со СНиП 2.01.02 – 91 здание заводоуправления по степени огнестойкости относится к категории ΙΙΙ . По пожарной опасности здание относится к категории Д, так как в его пределах осуществляются непожароопасные процессы, а также содержатся несгораемые вещества и материалы в холодном состоянии.
Возможные причины возникновения пожара следующие :
1) несоблюдение правил пожарной безопасности;
2) неисправность электросетей и нарушение электротехнических правил;
3) возникновение зарядов статического электричества.
В целях профилактики пожаров проводится инструктаж работающих о правилах пожарной безопасности и правилах поведения в случае возникновения пожара. Для тушения пожара в ПЭО имеется ручной огнетушитель. В здании заводоуправления на каждом этаже имеются также пожарные стволы , действующие от внутреннего противопожарного водопровода, сухой песок, лопаты, асбестовые одеяла.
Автоматические устройства пожаротушения отсутствуют , что является существенным действия. Необходимо оснастить здание заводоуправления автоматическими извещателями теплового, дымового и светового действия , а также спринклерными установками пожаротушения. Для связи служит местная и городская телефонная связь.
Для предотвращения воздействия на людей опасных факторов пожара в здании заводоуправления предусмотрены следующие пути эвакуации :
1) из помещений 1-го этажа через коридор непосредственно наружу;
2) из помещений 2-го, 3-го и 4-го этажей в коридор, ведущий на лестничную клетку, имеющую выход непосредственно наружу.
Количество эвакуационных выходов из ПЭО – 1, с каждого этажа здания заводоуправления – 2, что соответствует противопожарным нормам. На эвакуационных выходах предусмотрена установка световых табло с надписью «Выход».
7.4 ЗАЩИТА ОКРУЖАЮЩЕЙ СРЕДЫ
Для очистки и обезвреживания загрязненного воздуха на ОАО «ХТЗ» используется фильтрующая установка немецкой фирмы «Reidel» с системой сменных фильтров , которые дают стопроцентную очистку воздуха перед выбросом его в атмосферу. Пыль упаковывается в специальные контейнеры и утилируется. Производительность установки - 10000 м³ в час.
Для стока производственных и хозяйственных вод предусмотрено канализационное устройство , которое обеспечивает сток загрязненных вод в заводскую канализацию и дальнейшее поступление ее на очистные сооружения завода. Для очистки сточных вод от металлов и их солей применяются реагентные , ионообменные . биохимические и электрохимические (электролиз) методы; для удаления кислот и щелочей проводится нейтрализация сточных вод.
7.5 РАСЧЕТ МОЛНИЕЗАЩИТЫ ДЛЯ ЗДАНИЯ ЗАВОДОУПРАВЛЕНИЯ ОАО «ХТЗ»
Комплекс защитных устройств , предлназначеных для обеспечения безопасности людей , сохранности зданий и сооружений , оборудования и материалов от взрывов , загораний и разрушений , называется молниезащитой и осуществляется в соответствии с «Инструкцией по проектированию и устройству молниезащиты зданий и сооружений» (СН 305 - 91).
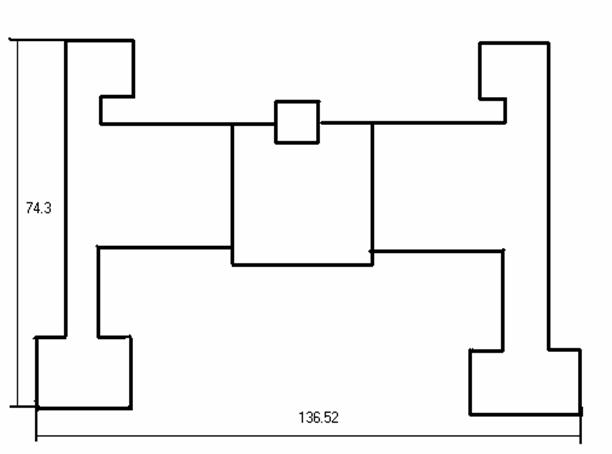
Здание заводоуправления имеет следующую форму :
Рисунок 7.1 – Здание заводоуправления ( вид сверху)
Длина здания составляет 136,52 м, ширина – 74,3 м , наибольшая высота (труба с эмблемой) - 26,0 м. Грунт , на котором построено здание , суглинок с удельным сопротивлением ρ = 100 Ом*м.
Ожидаемое количество (N) поражений здания не оборудованного молниезащитой, определяем по формуле :
N = (A + 6h)* (B + 6h)*h*10^(-n) (7,1)
Где
А и В – соответственно длина и ширина защищаемого здания , м ;
h – среднегодичное число поражений молнией 1 км² земной поверхности в месте расположения здания. Определяется в зависимости от интенсивности грозовой деятельности.
В Харьковской области среднегодовая продолжительность гроз составляет 40 – 60 часов в год, отсюда n = 6.
Подсчитаем значение N :
N = (136.52 + 6*26) * (74.3+6*26)*6=0.4
----------------------------------------
10^6
Данное здание подлежит защите по III категории. При этом для молниеотводов установлена форма защиты типа Б.
Принимая во внимание конфигурацию здания, целесообразно установить на защищаемом объекте 2 тросовых молниеотвода. При этом необходимый радиус rx зоны защиты на высоте 26 м равняется ¼ ширины здания, т.е.:
rx = В/4;
(7,2)
rx = 74,3/4 = 18,575 м.
Высота одиночного тросового молниеотвода h определяется по выражению :
h = (rx + 1.85hx)
---------------- (7.3)
1.7
где hx – высота защищаемого здания.
h= (18.575 + 1.85*26) = 39 м.
----------------------
