Проект балочной площадкиРефераты >> Строительство >> Проект балочной площадки
где
Проверки показали, что прочность балки обеспечена.
2) Проверяем общую устойчивость балки в месте действия максимальных нормальных напряжений, принимая за расчетный пролет l0 – расстояние между балками настила в середине пролета балки, где учтены пластические деформации:
и
где
, так как τ = 0 и С1 = С
В месте уменьшенного сечения балки (балка работает упруго и δ = 1)
Проверки показали, что общая устойчивость балки обеспечена.
3) Проверка прогиба не производится, так как h = 170 > 50 см = hmin
Рисунок 5 – Схема монтажного стыка главной балки
8. Расстановка ребер жесткости
Определяем необходимость постановки ребер жесткости:
λст = 2,2 – при действии местной нагрузки на пояс балки.
Вертикальные ребра жесткости необходимы. Кроме того, в зоне учета пластических деформаций необходима постановка ребер жесткости под каждой балкой настила, т. к. местные напряжения в стенке в этой зоне не допустимы. Определяем длину зоны использования пластических деформаций в стенке по формуле:
Определяем средние значения М и Q на расстоянии х = 157,9 см. от опоры под балкой настила
M2 = [qx·(l – x)]/2 = [170·1,579 (15 – 1,579)]/2 = 1801 кН·м = 180100 кН·см
Q = q·(l/2 – x) = 170·(15/2 – 1,579) = 1006,5 кН
Определяем действующие напряжения:
где W = 20787 см3 из определения высоты и размеров главной балки.
σм = 7,36 кН/см2 (из расчета балки на устойчивость)
Определяем критические напряжения:
где h0 = hcт, λусл = λст = 4,9
Rср = 13,5 кН/см2
Размеры отсека a1/h0 = M = 0,95 и δм/σ = 7,36/8,46 = 0,86
По таблице 7.6. (с. 158 [I]) при δ = 1,9; a/h0 = 0,9 предельное значение σм/σ = 0,109
Расчетное значение σм/σ = 0,86 > 0,109
σкр определяем по формуле:
где скр = 33,1 по табл. 7.4 (с. 155 [I]) при δ = 1,9
Определяем σмкр
где
с1 = 11 по табл. 7.5 (с. 156 [I]) при δ = 1,9
a1/2hст = 157,9/2·166 = 0,47
Подставляем все значения в формулу
Устойчивость стенки обеспечена и постановка ребер жесткости на расстоянии а1 = 157,9 см возможна.
Определяем размеры ребер жесткости ширина bp = hст/30+40 = 1660/30 + 40 = 95 мм
Примем bp = 120 мм
толщина
Примем tp = 7 мм
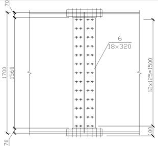
9. Расчет монтажного стыка главной балки
Рисунок 6 – Схема опорной части главной балки
Стык делаем в середине пролета балки, где М = 4781 кН·м и Q = 0.
Стык осуществляем высокопрочными болтами d = 20 мм из стали «селект», имеющий по таблице 6.2
; обработка поверхности газопламенная. Несущая способность болта, имеющего две плоскости трения:
где
γб = 0,85:
т. к. разница в номинальных диаметрах отверстия и болта больше 1 мм;
М = 0,42 и γн = 1,02;
Принимая способность регулирования натяжения болта по углу закручивания, k = 2 – две плоскости трения.
Стык поясов. Каждый пояс балки перекрываем тремя накладками сечениями 500×12 мм и 2×220×12 мм, общей площадью сечения
An = 1,2·(50 + 2·22) = 112,8 см2 > An = 100 см2
Усилие в поясе определяем по формуле:
Mn = MIn/I = 4781·1385704/1792391 = 3696 кН·м
Nn = Mn/h0 = 3696/1,68 = 2200 кН
где I, In, h0 – из расчета главной балки
Количество болтов для прикрепления накладок рассчитываем по формуле:
n = Nn/QВБ = 2200/132 = 16,6
Принимаем 16 болтов.
Стык стенки. Стенку перекрываем двумя вертикальными накладками сечением 320×1560×8 мм.
Определяем момент, действующий на стенку
Мст = MIст/I = 4781·381191/1792391 = 1016 кН·м
Принимаем расстояние между крайними по высоте рядами болтов:
amax = 1660·2·80 = 1500
Находим коэффициент стыка
= Mст/mamaxQВБ = 101600/2·150·132 = 2,56
Из таблицы 7.8 (с. 166 [I]) находим количество рядов болтов по вертикали k.
при
= 2,56 k = 13
Принимаем 13 рядов с шагом 125 мм.
Проверяем стык стенки по формуле:
Проверяем ослабление нижнего растянутого пояса
Ап.нт = 2,0·(50 – 2·5,785) = 86,86 см2 > 0,85 Аn = 0,85·100 = 85 см2
Ослабление пояса можно не учитывать.
Проверяем ослабление накладок в середине стыка четырьмя отверстиями
= 112,8 – 4·2·1,2·5,785 = 57,2 см2 < 0,85An = 85 см2.
Принимаем накладки толщиной 18 мм
= 1,8·(50+2·22) – 4,2·1,8·5,785=85,9 cм2 >0,85An = 85 см2
10. Расчет опорной части главной балки
Опорная реакция балки F = 1275 кН
Определяем площадь смятия торца ребра
где Rсм.т. = 35,5 кН/см2 = 355 МПа (прил. 4 [I]).
Принимаем ребро 280×14 мм,
Ар = 28·1,4 = 39,2 см2 >35,9 см2. Проверяем опорную стойку балки на устойчивость относительно оси Z. Ширина участка стенки, включенной в работу опорной стойки:
