Проектирование сборных железобетонных плит перекрытия, ригелей и колонн многоэтажного производственного зданияРефераты >> Строительство >> Проектирование сборных железобетонных плит перекрытия, ригелей и колонн многоэтажного производственного здания
M+max= βmax∙ q· l02 = 0,0625·80,2 ·6 2 = 180,45 кН · м
M–5= β5 ∙ q· l02 = -0,091 ·80,2 ·6 2 = -262,74 кН · м
M–6= β6 ∙ q· l02 = -0,041 ·80,2 ·6 2 = -118,38 кН · м
M–7= β7 ∙ q· l02 = -0,014 ·80,2 ·6 2 = -40,42 кН · м
4.4 Расчет по предельным состояниям первой группы
4.4.1 Исходные данные
Для ригелей рекомендуется: применять бетоны классов В20-В30, рабочую арматуру - из арматурной стали класса А-III, поперечную – из арматурной стали классов А-IIIили А-II.
4.4.2 Расчет прочности нормальных сечений
По максимальному значению изгибающего момента уточняется размер поперечного сечения ригеля. Ввиду определения изгибающих моментов с учётом образования пластических шарниров значения коэффициентов ξ и α0 ограничиваются соответственно величинами 0,25 и 0,289 в опорном сечении.
По принятым значениям параметров сечения ригеля проверяется условие:
Полезная (рабочая) высота сечения ригеля, см. h0 = h– a= 70 – 5= 65 см
h= 70 см– принятая высота сечения, см;
b= 30 см– ширина сечения ригеля, см;
а – 5 смпри расположении арматуры в два ряда;
а – 3 смпри расположении арматуры в один ряд;
М – наибольший по абсолютной величине опорный изгибающий момент, Н см.
Принимаем:
h= 60 см– принятая высота сечения, см;
b= 25 см– ширина сечения ригеля, см;
h0 = h– a= 60 – 5= 55 см
Подбор требуемого сечения производим в следующем порядке:
· На опоре.
По табл. 7 [2] определяется относительное плечо внутренней пары сил ν = 0,843
Определяется требуемая площадь сечения продольной арматуры, см2;
По сортаменту [2, табл. 8] подбираем необходимое количество стержней арматуры с площадью As≥ As1и диаметром не менее 12 мм.
Принимаю3 Ø 28 А–IIIс Афs= 18,47 см2
· В пролёте.
По табл. 7 [2] определяется относительное плечо поперечной силы ν = 0,898
Определяется требуемая площадь сечения продольной арматуры, см2;
По сортаменту [2, табл. 8] подбираем необходимое количество стержней арматуры с площадью As≥ As1и диаметром не менее 12 мм.
Принимаю4 Ø 18 А–IIIс Афs= 10,18 см2
· Монтажная арматура.
По табл. 7 [2] определяется относительное плечё поперечной силы ν = 0,995
Определяется требуемая площадь сечения продольной арматуры, см2;
По сортаменту [2, табл. 8] подбираем необходимое количество стержней арматуры с площадью As≥ As1и диаметром не менее 12 мм.
Принимаю2 Ø 20 А–IIIс Афs= 6,28 см2
4.4.3 Построение эпюры материалов
Для двухрядной арматуры:
а = 5 см
h0= h– a= 60 –5 =55 см
1-1:
Определение высоты сжатой зоны, см.
Определяется несущая способность сечения, Н∙см,
Мu1= Rb∙ b· х ∙ (h0 – 0,5 · x) ∙ 100 = 13,05 · 25 · 11,39 ·(55 – 0,5 · 11,39) · 100 = 183,22 · 105кН · м
Определение высоты сжатой зоны, см.
Определяется несущая способность сечения, Н∙см,
Мu2= Rb∙ b· х ∙ (h0 – 0,5 · x) ∙ 100 = 13,05 · 25 · 5,69 ·(55 – 0,5 · 5,69) · 100 96,82 · 105кН · м
Для однорядной арматуры:
а = 3 см
h0= h– a= 60 –3 =57 см
3-3:
Определение высоты сжатой зоны, см.
Определяется несущая способность сечения, Н∙см,
Мu3= Rb∙ b· х ∙ (h0 – 0,5 · x) ∙ 100 = 13,05 · 25 · 7,03 ·(57 – 0,5 · 7,03) · 100 = 122,67 · 105кН · м
4-4:
Определение высоты сжатой зоны, см.
Определяется несущая способность сечения, Н∙см,
Мu4= Rb∙ b· х ∙ (h0 – 0,5 · x) ∙ 100 = 13,05 · 25 · 20,66 ·(57 – 0,5 · 20,66) · 100 = 314,57 · 105кН · м
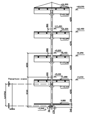
5. Проектирование колонны первого этажа
5.1 Конструктивная схема
Колонны многоэтажных промышленных зданий состоят из сборных ж/б элементов длиной, кроме элемента 1-го этажа, равной высоте этажа. Для опирания ригелей перекрытия колонны снабжены консолями. Стыки элементов колонн для удобства работ по соединению устраиваются на расстоянии 500—800 мм выше уровня панелей перекрытия.
5.2 Расчетная схема, нагрузки, усилия
Нагрузка на колонну собирается как сумма опорных давлений на консоли по всем этажам здания и веса самой колонны.
Полное расчётное усилие, кН, в колонне вычисляется по формуле:
, где
1,1 – сумма коэффициентов;
l2 = 6,3 м – расстояние между разбивочными осями поперёк здания, м;
q = 80,2 кН/ м2 – расчётная полная нагрузка на ригель, кН/м;
P = 44,6 кН – расчётная временная погонная нагрузка на ригель кН/м;
hэ = 4,2 м – высота этажа, м;
nэ = 4 – количество этажей;
qпола = 1,95 кН/ м2 – расчётная нагрузка от веса пола, кН/м2 [табл. 1 ПЗ];
l1 = 5,9 м – расстояние между разбивочными осями вдоль здания, м;
qнкр = 1,3 кН/ м2 – нормативная нагрузка от веса кровли, кН/м2;
γfкр = 1,3 – коэффициент надёжности по нагрузке для кровли;
qсн = 1,2 кН/ м2 – нормативная снеговая нагрузка, кН/м2, [3] для IIрайона проектирования;
bk, hk= 0,3 х 0,3 м– размеры сечения колонны
γкf= 1,1- коэффициент надёжности по нагрузке для собственного веса колонны
Расчетное усилие в колонне от кратковременных нагрузок, кН:
, где
