Безопасность монтажа гражданских зданий и сооруженийРефераты >> Строительство >> Безопасность монтажа гражданских зданий и сооружений
Рис. 3. Устройство для дистанционной расстроповки:
а — полуавтоматический захват для дистанционной расстроповки; 1— обойма; 2— специальный крюк; 3— палец крюка; 4— палец соединения захвата со стропом; 5— рычаг; 6— направляющий стержень с вилкой; 7 - рукоятка; S — пружина растяжения; 9— фиксатор; 10— тарелка; 11— распорная пружина; 12— скоба; 13— строповочный шнур; б — схема устройства для дистанционной расстроповки: 1— монтажная петля; 2— карабин; 3 - крюк; 4—строп; 5— тяга
Рис. 4. Расчетная схема траверс:
а —работающей на изгиб; б—на сжатие (осевые силы)
|
|
|
|
Траверсы: a— для строповки груза за четыре точки; б - разноплечевая; в - для строповки крупногабаритных грузов; 1 - балансирная балка; 2 - серьга для крюка грузоподъемного механизма; 3 - ролик; 4, 5 - винты; 6 - стропы |
Рис. 6. Двухштыревой балансирный захват для подъема колонн: а - общий вид; б - схема подъема колонны; 1- колонна; 2. 3 - нижняя и верхняя рамки; 4 - стальные канаты; 5 - блок; 6 - траверса; 7, 10 - верхний и нижний штыри; 8 - кронштейн; 9 - стальной канат для вытягивания штыря |
Обеспечение прочности и устойчивости конструкций в процессе монтажа
Монтажное состояние конструкций отличается от эксплуатационного:
по условиям опирания и закрепления,
по действующим нагрузкам.
Два состояния во время монтажа:
при подъеме
после установки в проектное положение до момента устройства связей.
при повороте в пространстве (подъем ферм из лежачего положения)
При монтаже - изменение характера внутренних усилий в элементах по сравнению с проектными условиями.
Расстроповку конструкций, установленных в проектное положение, производят только после временного или постоянного их закрепления по проекту (ППР): болтами, пробками, электросваркой с установкой связей, распорок, расчалок и т. п.
Расчалки изготовляют из стального каната, располагают с углами наклона к горизонту не более 45°.
Расстроповку элементов, соединяемых болтами, осуществляют после установки в узле не менее 30 % болтов, в случаях, когда общее их число в узле более 5.
Расстроповку элементов, соединяемых электросваркой, осуществляют после заделки узлов соединений проектными сварными швами или прихваткой. Длина швов должна быть не менее 10 % длины проектных монтажных швов данного соединения, но не короче 50 мм; До расстроповки в дополнение к указанным должны быть установлены временные или постоянные связи, распорки или расчалки согласно ППР (пример).
При монтаже многоэтажных зданий установку конструкций каждого выше лежащего яруса производят только после надежного закрепления элементов конструкций нижележащего яруса (должны быть полностью сварены все стыки и замоноличены бетоном 100 %-ной прочности бетона).
Нормами проектирования строительных конструкций требуется, чтобы в проекте конструкций предусматривалось обеспечение их прочности и устойчивости в процессе монтажа.
Обеспечение безопасности подъема на высоту
Несчастные случаи при монтаже – падение при подъеме и спуске на высоту.
Высотные работы - более 5 м от поверхности земли, перекрытия или рабочего настила, временных монтажных приспособлений.
Подъем и спуск на высоту или глубину более 25 м - грузопассажирские подъемники (лифты).
Используют - приставные лестницы (реже скобы), под углом более 75°. Расположенные на высоте или глубине более 5 м - дуговые ограждения, или канатные.
На высокие колонны лестницы навешиваются звеньями до их подъема,
Применяют приставные лестницы с площадкой.
|
|
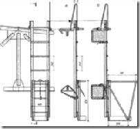
Рис. 13.7. Приставная вертикальная лестница к колоннам: 1 - кронштейн; 2 - рабочая площадка; 3 - нижний упорный элемент; 4 - откидной люк площадки, полуавтоматические захваты |
Наиболее безопасные и комфортные - маршевые лестницы (с ограждением, расположенные под углом 60°, и площадки отдыха через каждые З . 4 м).
Приставные лестницы с перильными ограждениями, установленные под углом 70 .75°, для подъема к рабочим местам на высоте до 18 м.
Обеспечение безопасности при работе на высоте
Основные методы:
- правильная организация рабочих мест;
- средства коллективной защиты: подмости, люльки, монтажные столики, вышки, лестницы, переходные мостики;
- средства индивидуальной защиты;
- сокращение ручного труда.
Две важных проблемы на высоте:
- при переходе с одного рабочего места на другое;
- обеспечение безопасности при установке, выверке и проектном закреплении конструктивных элементов,
Средства коллективной защиты:
|
|
|
|
|
Люлька, совмещенная с лестницей: а) - вариант навески на металлическую ферму; б) то же, на железобетонную |
Инвентарные перильные стойки, прикрепленные к кровельным плитам до начала монтажа: 1 - железобетонная плита; 2 - хомуты; 3- нижний уголок крепления; 4 - деревянные клинья; 5 - перильная стойка; 6 - планки крепления; 7- скрутки из проволоки для закрепления ограждений |
Все основные элементы защитных ограждений следует рассчитывать на прочность, а ограждение в целом — на устойчивость от действия равномерно распределенной горизонтальной и вертикальной нормативной нагрузки400 Н/м, приложенной на поручень. В местах, предназначенных для пребывания не более двух человек, допускается применять в качестве нормативной нагрузки сосредоточенную нагрузку, равную 400 Н, приложенную горизонтально или вертикально в любом месте по длине поручня. Коэффициент перегрузки должен приниматься равным 1,2. Максимальный прогиб от нагрузки не должен превышать 0,1 м. Высота защитных ограждений - не менее 1,1 м.
