Безопасность монтажа гражданских зданий и сооруженийРефераты >> Строительство >> Безопасность монтажа гражданских зданий и сооружений
При закреплении многих конструкций в проектное положение единственным средством защиты является предохранительный пояс.
При работе на высоте необходимо конкретно определять места закрепления карабином предохранительного пояса. это должно быть предусмотрено проектом (проушины, петли отверстия для крепления карабина пояса или страховочных канатов) и изготовлено на заводе.
Безопасность эксплуатации страховочных канатов определяют следующие параметры:
- соотношение между предварительным натяжением каната и его провисанием в середине;
- высота установки от плоскости опирания ступней ног работающего;
- ограничение свободной длины пролета (пример с Геллером).
|
|
|
|
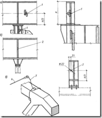
Специальные страховочные устройства, обеспечивающие возможность закрепления карабином пояса: а, б — при монтаже подкрановых балок; в - то же, железобетонных ферм; 1 - детали, приваренные к конструкциям; 2 - в виде отверстия в конструкциях; 3 - удлинители стропа пояса; 4 - строп с карабином пояса, прикрепляемого к удлинителю |
Схема расположения страховочного каната для защиты работника при проведении верхолазных работ и места расположения специальных устройств, ограничивающих провисание страховочного каната: а — на фермах; б — на колоннах |
Верхолазные работы - проводимые на высоте 5 м и более от земли, подмостей, этажа здания и т.д. непосредственно со строительных конструкций, когда единственным средством защиты является пояс монтажника.
В этих условиях - страховочные канаты, изготовленные из гибких стальных тросов, к которым работающий прикрепляется карабином предохранительного пояса.
Первый параметр (табл. 13.2) является одним из важных, так как слишком большое предварительное натяжение приводит к увеличению усилий к канате и необходимости проектирования сложных натяжных устройств, а недостаточное натяжение или его отсутствие - к значительному провисанию каната в середине пролета, что затрудняет движение карабина предохранительного пояса вдоль каната и увеличивает возможную высоту падения работающего.
Таблица 2.Рекомендуемые соотношения между предварительным натяжением каната и его провисанием в середине пролета
|
Расстояние между точками закрепления |
Рекомендуемое предварительное натяжение |
Контролируемое провисание каната в середине пролета, см, при диаметре каната, мм | |
|
8.8; 9.1 |
10.5; 11 | ||
|
12 |
1 |
5.5 |
7.5 |
|
24 |
1 |
22 |
30 |
|
36 |
2 |
24 |
34 |
|
48 |
3 |
28 |
40 |
|
60 |
4 |
33 |
48 |
Контроль усилий предварительного натяжения на практике можно осуществлять простым методом - замером прогиба в середине пролета стальной линейкой или рулеткой в соответствии с табл. 13.2.
Высота установки страховочного каната должна быть не менее 1,5 м от поверхности опоры для ступней ног, при переходе работающего под натянутым канатом (например, по фермам, балкам, ригелям и подобным конструкциям с полками шириной до 300 мм) и не более 1,2 м при переходе в стороне от каната (например, по подкрановым балкам).
Важный фактор - ограничение свободной длины пролета. Под действием падающего человека канат совершает затухающие колебательные движения, прогиб каната достигает значительной величины. При падении человек, закрепленный за канат, может получить тяжелые травмы в результате удара о конструкцию при обратном движении страховочного каната под действием упругих сил. Поэтому пролет ограничивают до 12 м путем устройства дополнительных опор (рис. 13).
Наряду с вышеперечисленными средствами коллективной защиты в настоящее время внедряются защитные сетки из синтетических материалов: капроновые или лавсановые. (рис.14). При этом особое внимание уделяют безопасности их применения в условиях производства огневых работ.
|
|
Рис. 14. Ограждение для улавливания падающих предметов: 1 -сетка; 2— струбцина; 3— предохранительный строп; 4— кронштейн; 5— опора |
Средства коллективной и индивидуальной защиты при монтаже конструкций
(средства подмащивания, лестницы, переходные мостики, ограждения, настилы, сетки, страховочные канаты)
Средства подмащивания:(должны соответствовать ГОСТ 24258-80)
типы конструкций: леса, подмости, вышки, люльки, площадки.
способ установки: свободно стоящие, переставные, передвижные, подвесные, подставные, навесные,…
наличие привода: без привода, с ручным, с машинным
возможность перемещения рабочего места
несущая способность: легкие, тяжелые
Следует применять инвентарные леса. Самодельные – в исключительных случаях, с разрешения главного инженера.
Причины травматизма, связанные со средствами подмащивания:
- применение для подмостей случайных опор;
- установка лесов на не спланированной площадке, на неподготовленное основание;
- установка лесов на не полностью смонтированном перекрытии;
- недостаточное крепление лесов и подмостей;
- отсутствие (или плохое качество) сплошных настилов и ограждений (падение людей с высоты);
- неправильный монтаж и демонтаж подмостей;
- перегрузка;
- обрушение строительных конструкций;
- поражение электрическим током;
- недостаточная освещенность.
Аварии лесов – обычно групповой травматизм. С тяжелыми последствиями.
