Конструирование железобетонных колоннРефераты >> Строительство >> Конструирование железобетонных колонн
Принимают 3Ø16 А-Ш, Аs=6.03 см2.
Коэффициент продольного армирования:
.
Незначительно отличается от предварительно принятого μs=0.005. Следовательно, дальнейшее уточнение расчета можно не производить.
Аналогично производят подбор арматуры и на другое невыгодное сочетаний усилий: М= 77,7 кН·м; N=546,1 кН; М′= 78,1 кН·м; N′=560,5 кН; Мl= 56,6 кН·м; Nl=416,9 кН. По расчету Аs′<0, принимают конструктивно 3Ø16 А-Ш; Аs′=6.03 см2; Аs=1.10 см2, принимают 3Ø16 А-Ш, Аs=6.03 см2.
Окончательно принимают с каждой стороны колонны по 3Ø16 А-Ш; Аs=As′=6.03 см2.
Расчет из плоскости изгиба
Размеры прямоугольного сечения: h1*=0.5 м, b1*=0.6 м. Расчетная длина надкрановой части колонны: l0*=1.5 H1=1.5·4.0=6.0 м. Так как гибкость из плоскости изгиба l0*/h1*=6.0/0.5=12.0 меньше аналогичной величины в плоскости изгиба, то l0/h1=13,3 и расчет колонны из плоскости изгиба не производят.
Расчет прочности наклонных сечений
Действующая на колонну поперечная сила Q= 79,87 кН. При этом сочетании учтены нагрузки, суммарная продолжительность действия которых мала, поэтому γb2=1.1.
По формуле (30) проверяют прочность колонны на действие поперечной силы:
,
где N- действующая продольная сила при принятой комбинации усилий.
Принимают φП=0,23.
Длина проекции наклонного сечения согласно формуле (29)
C=0.25·4.0=1.00 м=100мм.
Поскольку Q=79870 Н< Qb,и=242900 МН, поперечную арматуру устанавливают конструктивно. Конструктивные требования определяются разделом 5 норм [1]. Нормируется расстояние между поперечными стержнями, соотношение диаметров продольной и поперечной арматуры из условия технологии сварки.
Подкрановая часть колонны
Размеры прямоугольного сечения:
b2=0,5 м=500мм; h2=0,8 м=800мм; а = а′ =0,04=40мм; h0=0.8-0.04=0.76 м=760мм.
Расчетная длина
l0=1.5 H2=1.5·8.15=12.22.
Подбор сечений продольной арматуры производят по максимальным усилиям, действующим в сечениях.
Расчет в плоскости поперечной рамы
От полной нагрузки
М= -249,6 кН·м; N=1530.0 кН;
от всех нагрузок, но без учета ветровой и крановой
М′= 46,2 кН·м; N′=884,1 кН.
Вычисляют моменты внешних усилий относительно центра тяжести сечения арматуры соответственно с учетом и без учета ветровой нагрузки:
|MI|<0.82 |MII|=272,1 кН·м<0.82·800,4=616,3 кН·м.
Так как условие (2) выполнено, принимают γb2=1.1 и Rb=9.35 МПа.
Ввиду того, что сечение ΙV-ΙV расположено у заделки колонны, η=1.
Величина эксцентриситета:
℮0=249,6/1530,0=0,163;
℮=0,178·1+0,5·0,8-0,04=0,523 м=523мм.
По формуле (53) определяют относительную величину продольной силы
Так как
где
то по формуле (54)
,
По формуле (57) площадь арматуры
Минимально необходимое армирование подкрановой части в зависимости от гибкости
l0/ h2= 12,22/0,8 = 15,28 <24,
тогда
As=A′s=0,002·b2·h0=0,002·500·760=760 мм2=7,6 см2.
Принимают по 4Ø16 A-III с каждой стороны (As=A′s=8,04 см2).
Аналогично производят подбор арматуры и на другое невыгодное сочетание усилий: M=293,8 кН·м; N= 1437,2 кН; M′=21,8 кН·м; N′= 791,3 кН; As=A′s<0, следовательно, продольную арматуру устанавливают конструктивно.
Расчет из плоскости поперечной рамы
Расчетная длина
: l*0 = 0,8Н2= 0,8·8, 15=6,52 м.
Поскольку
l*0 /h2= 6,52/0,5 = 13,04 м < l0/h*2 = 12,22/0,8 = 15,28
гибкость в плоскости изгиба, расчет из плоскости поперечной рамы не выполняют. Поперечную арматуру в подкрановой части устанавливают конструктивно, так как площадь поперечного сечения подкрановой части больше, чем надкрановой.
Расчет подкрановой консоли
Размеры консоли принимают с учетом конструктивных требований и из условия опирания и крепления подкрановых балок. Тогда
hk =1,45 м; b=0,5м; а = а' = 0,04 м; - h.0к= 1,41 м; lc=0,55; ac = 0,2 м.
Сечение подкрановой консоли рассчитывают от действия нагрузок: от веса подкрановой балки и подкранового рельса 138,7 кН и вертикальной крановой нагрузки 733,6 кН. Тогда Qс =138,7+733,6=872,3 кН.
Проверяют принятые размеры консоли в опорном сечении по формулам (103) и (104):
Qc=872300 Н<0,75(1+0)(1-200/1410)9,35·500·340 =1023000 Н,
а также
Qc= 872300 Н < 2, 5·0,83·500·1410 = 1462000 Н.
Следовательно, размеры достаточны. Поперечное армирование консоли принимают в соответствии с конструктивными требованиями. Прочность бетона на смятие по формуле (105)
Прочность бетона на смятие обеспечена.
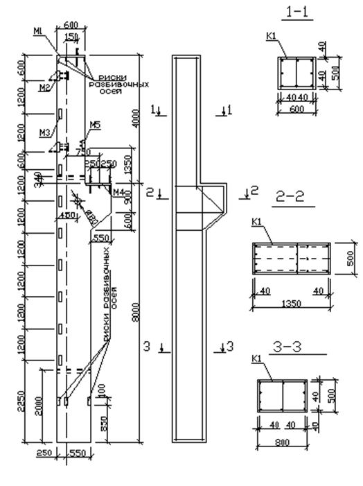
Рисунок 1 – Опалубочный чертеж и армирование колонны
Рисунок 2 – Арматурный пространственный каркас К-1
Определяют площадь сечения продольной арматуры, принимая одинаковое её количество в растянутой и сжатой зонах. При этом изгибающий момент у грани колонны
Мс= 872300·200 = 174460000 Н·мм;
.
Принимают 3Ø12 А-Ш, As = A′s= 3,39 см2.
Поперечную арматуру устанавливают согласно конструктивным требованиям. Опалубочный и арматурные чертежи колонны приведены на рисунке 1 и 2, закладных деталей - на рисунке 3.
1.4 Пример расчета и конструирования двухветевой колонны
Надкрановая часть колонны
Сечение прямоугольное:
bb = 0,5 м; h g = 0,6 м; a = a′ = 0,04 м; ho = 0,6 - 0,04 = 0,56 м.
Расчет в плоскости поперечной рамы
Расчетная длина надкрановой части l0 = 2Н1= 2·4,0 = 8,0.
Гибкость надкрановой части l0/h1= 8,0/0,6 =13,3> 4. Следовательно, необходимо учитывать влияние прогиба на величину эксцентриситета продольной силы.
Рассматривают наиневыгоднейшее сочетание нагрузок:
М = -139,9кН·м; N = 416,9 кН;
М′ = 78,1 кН·м; N′ = 560,5 кН;
Мl = 56,6 кН·м; Nl = 416,9 кН.
Определяют коэффициент условий работы бетона
