Конструирование железобетонных колоннРефераты >> Строительство >> Конструирование железобетонных колонн
;
Qb,u=18 кН<0,6·(1+0,5)·0,68·500·220=67 кН.
Следовательно, принимают
Qb,u=67 кН;
Q=79,87 кН>67кН ,
следовательно необходимо рассчитать поперечную арматуру по формулам(31) - (36).
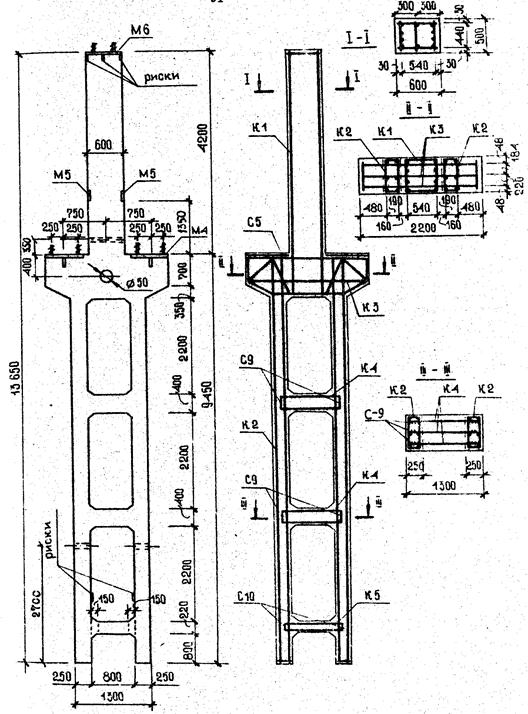
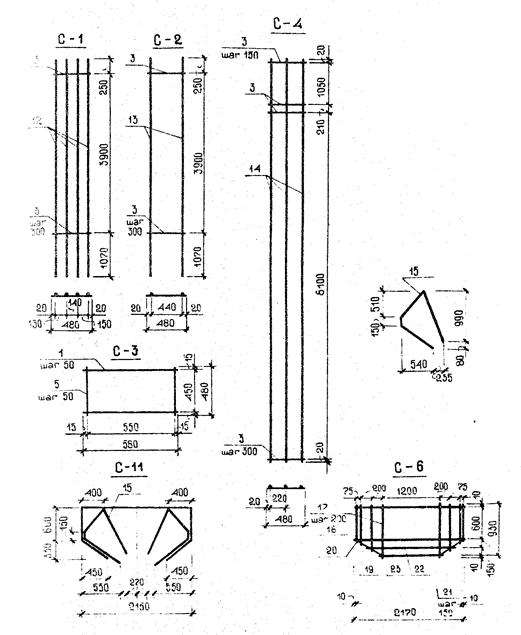
Опалубочный и арматурные чертежи колонны показаны на рисунке 4 – 6, закладных деталей – на рисунке 3.
Рисунок 4 - Опалубочный чертёж и армирование двухветвевой колонны
Рисунок 5 - Арматурные изделия К1…К5 и С-5, С-7…С-10 двухветвевой колонны
Рисунок 6 - Арматурные изделия С-1…С-4, С-6 и С-11 двухветвевой колонны
СПИСОК ЛИТЕРАТУРЫ
1. СНиП 2.03.01-84: Бетонные и железобетонные конструкции / Госстрой СССР. - М.: ЦИТП Госстроя СССР, 1985. - 79 с.
2.СНиП 2.01.07-85: Нагрузки и воздействия / Госстрой СССР. - М.: ЦИТП Госстроя СССР, 1986. – 35 с.
4. Байков В. Н., Сигалов Э. Е. Железобетонные конструкции. Общий курс: Учебник для вузов.- 4-е изд. - М.: Стройиздат, 1985. - 728 с.
4. Железобетонные конструкции: Курсовое и дипломное проектирование / Под ред. А.Я. Барашикова. - Киев: Вища школа, 1987. - 416с.
5. Железобетонные конструкции / Под ред. Полякова Л, П., Лысенко Е.Ф., Кузнецова Л.В. - К.: Вища школа, 1984. - 352 с.
6. Полищук В. П., Черняева Р. П. Проектирование железобетонных конструкций производственных зданий: Учебное пособие. - Тула, 1983. - 109 с.
7. Проектирование железобетонных конструкций: Справочное пособие / А.Б.Голышев, В.Я. Бачинский и др. Под ред. А.Б.Голышева. Киев: Будiвельник, 1985. - 496 с.
8. Руководство по проектированию предварительно напряженных железобетонных конструкций из тяжелого бетона. - М.: Стройиздат, 1977. - 289 с.
Таблица 1 Приложение.
|
Вид сопротивления |
Бетон |
Нормативные | ||||||||
| В15 | В20 | В25 | В30 | В35 | В40 | В45 | В50 | В55 | ||
|
Сжатие осевое (призменная прочность) |
Тяжелый и мелко- зернистый | 11,0 | 15,0 | 18,5 | 22,0 | 25,5 | 29,0 |
32,0 |
36,0 | 39,5 |
|
Растяжение осевое |
Тяжелый | 1,15 | 1,4 | 1,6 | 1,8 | 1,95 | 2,1 | 2,2 | 2,3 | 2,4 |
Таблица 2
|
Вид сопротивления |
Бетон |
Расчетные сопротивления бетона по прочности на сжатие для предельных состояний первой группы | ||||||||
| В15 | В20 | В25 | В30 | В35 | В40 | В45 | В50 | В55 | ||
|
Сжатие осевое (призменная прочность) |
Тяжелый и мелко- зернистый | 8,5 | 11,5 | 14,5 | 17,0 | 19,5 | 22,0 | 25,0 | 27,5 | 30,0 |
|
Растяжение осевое |
Тяжелый | 0,75 | 0,9 | 1,05 | 1,2 | 1,3 | 1,4 | 1,45 | 1,55 | 1,6 |
Таблица 1
|
Бетон |
Начальные модули упругости бетона при сжатии и растяжении Ев·10-3 при классе бетона по прочности на сжатие | |||||||||
| В15 | В20 | В25 | В30 | В35 | В40 | В45 | В50 | В55 | ||
|
Тяжелый: | ||||||||||
|
естественного твердения | 23,0 | 27,0 | 30,0 | 32,5 | 34,5 | 36,0 | 37,5 | 39,0 | 39,5 | |
|
подвергнутый тепловой обработке при атмосферном давлении; | 20,5 | 24,0 | 27,0 | 29,0 | 31,0 | 32,5 | 34,0 |
35,0 |
35,5 | |
