Модернизация сборно-монолитной системы КУБ-2,5Рефераты >> Строительство >> Модернизация сборно-монолитной системы КУБ-2,5
- стакан промыть водой под напором и сделать подливку из цементного раствора М-200, верх которой должен соответствовать проектной отметки низа колонны.
3.1.2. Установка колонн в стаканы производится следующим образом:
- строповка колонны обеспечивается с помощью монтажной цапфы, вставляемой в отверстие, расположенное в верхней части ствола;
- колонна вертикально подается в стакан фундамента;
- при монтаже колонны сечением 400х200 необходимо следить за тем, чтобы в начальный момент подъема до вертикального положения не менялось ее положение "на ребро", т.е. вертикальная грань была равна 400мм;
- используя продольные риски на гранях колонны, производится вертикальная и горизонтальная е установка и фиксация с помощью 4-х стаканных клиньев.
3.1.3. Образовавшиеся пазухи в стакане после установки колонны бетонируются мелкозернистым бетоном В25 с тщательным уплотнением.
3.1.4. Если высота колонны от обреза стакана не превышает 12см, то фиксацию ее клиньями от потери устойчивости можно считать достаточной; если этот размер превышает 12см, то необходима установка специальных подкосов, которые снимаются после монтажа и замоноличивание первого перекрытия.
3.1.5. Во время монтажа колонны необходимо следить за тем, чтобы продольные риски располагались по отношению к примыкающим к ним ограждающим конструкциям согласно рисунка.
3.1.6. Стык колонн предусматривает принудительный монтаж, при котором фиксирующий стержень нижнего торца верхней колонны должен войти в патрубок верхнего торца нижней колонны. Сварка арматуры выполняется при условии растягивающих усилий в стыке.
3.2 Панели перекрытия
3.2.1. Перед монтажом панелей перекрытия необходимо убедится в том, что:
- расстояние между колоннами равны проектным в пределах допусков;
- геометрические размеры панелей (размеры диагоналей, параллельность и др.), арматурные выпуски, закладные детали и т.п. соответствуют проектным требованиям;
- отсутствуют технологические наплывы бетона, мешающие монтажу и сварке.
3.2.2. Вариант монтажа 2-х модульных панелей предусматривает следующую последовательность:
- монтируется 1-модульная надколонная панель НП-
- монтируются 2-модульные панели НМП-
- монтируются 2-модульные панели МСП-
3.2.3. Вариант монтажа 1-модульных панелей предусматривает следующую последовательность:
- монтируется надколонные панели НП-
- монтируется межколонные панели МП-
- монтируются средние панели СП-
3.2.4. Установка надколонных панелей на колонну производится с помощью монтажного кондуктора, специальные болты которого предварительно выставляются на проектную отметку низа панели, уровень установленной панели при необходимости корректируется этими же болтами.
Установленная на проектную отметку НП- крепится к колонне с помощью сварки обечайки плиты с рабочей арматурой колонны, используя стальные посредники в виде уголков, или пластин. После сварных работ кондуктор можно снять.
3.2.5. Установка панелей перекрытия "насухо" в проектное положение производится с помощью бетонных монтажных столиков, предусмотренных конструкцией панелей, при этом арматурные выпуски торцов смежных панелей совмещаются таким образом, что образуется петля, просвет в которой д.б. не менее 12-20мм, после чего:
- проверяется горизонтальная установка панели и по необходимости рихтуется с помощью монтировки и вертикальная установка, которая по необходимости исправляется с помощью прокладок под монтажные столики;
- в просвет петель вставляется арматура D 10АШ либо в виде прямых стержней и привязывается, либо в виде П-образных шпилек;
- проверяется расстояние между колоннами в уровне следующего по высоте перекрытия и, при необходимости, корректируется;
- после установки арматуры стыки панелей перекрытия бетонируются мелкозернистым бетоном В25 с фракцией не более 10мм, одновременно бетонируются и стыки надколонных панелей с колонной с предварительной установкой снизу опалубки в виде инвентарной обечайки;
- в случаях, когда при совмещении арматурных выпусков смежных панелей образуемая в петле щель не дает возможность пропуска арматуры D 10АШ и исправить этот дефект невозможно, следует эти выпуски сварить через стальную прокладку – 50 Х 8, L = 70мм, согласно чертежа.
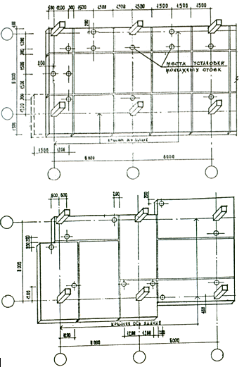
3.2.6. При несимметричности опираемых панелей, либо одностороннем приложении к ним нагрузок, что, как правило, бывает на крайних осях здания, необходима установка монтажных стоек в местах, показанных на чертеже.
Стойки снимаются только после того, как перекрытие следующего (с аналогичной установкой стоек) этажа смонтировано, замоноличено и бетон замоноличивания набрал не менее 70% проектной прочности.
3.3 Диафрагмы
3.3.1. Монтаж диафрагм производится с помощью специальных монтажных петель, находящихся на одном из торцов изделия. Диафрагмы устанавливаются поэтажно друг на друга, опираясь столиками, предусмотренными в их конструкции. При монтаже диафрагмы необходимо соблюдать следующую последовательность работ:
- на смонтированное "на сухо" перекрытие устанавливаются изделия, составляющие сборно-монолитную диафрагму;
- каждое изделие фиксируется монтажными подкосами, которые снимаются после замоноличивания горизонтальных швов верхнего и нижнего уровней;
- одновременно с замоноличиванием перекрытия бетонируется нижний горизонтальный шов с предварительной установкой (во время монтажа перекрытия) стыковочных арматурных каркасов;
- после монтажа следующего по высоте перекрытия бетонируются вертикальные швы между изделиями диафрагмы и т.д.
3.3.2. При монтаже диафрагм в торцах перекрытия (например, лестничный проем) необходима установка специальной опалубки для бетонирования горизонтальных швов.
3.4 Связи
3.4.1. Железобетонные связи устанавливаются "в елочку" по восходящей схеме, при этом необходимо выполнить:
- предварительную попарную сборку элементов связей в треугольник с помощью монтажной распорки;
- приварку опорных столиков к колонне;
- подъем связи и установка ее на столики с приваркой к ним нижних закладных деталей;
- монтаж верхнего перекрытия и приварка к обечайке связевой панели конструкций оголовка вершины треугольника;
